Bénéficiez des services de nos partenaires locaux soigneusement sélectionnés
pour vous accompagner dans votre parcours d'achat immobilier

Maison de ville à 5 minutes à pied de la gare menant à paris gare de lyon en 55 minutes

— Montereau-Fault-Yonne 77130 —
435 000 €
240 m²
7 pièces
parkingbalcon/terrasse

Nos partenaires locaux
7 Pièces ·
240 m² ·
Montereau-Fault-Yonne 77130
· Quartier Ville basse
Nouveauté :

Elégante maison de ville d'une surface habitable de 240m2 s'ouvrant sur un perron couvert menant à un dressing chauffé
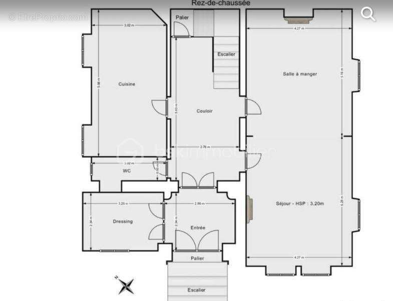
Elle se compose d'une entrée principale, d'un grand et lumineux séjour/salle à manger avec moulures au plafond, cheminées anciennes et parquet point de Hongrie, d'une cuisine indépendante, équipée et aménagée, d'un WC invité avec lave mains et d'un magnifique escalier d'époque conduisant aux étages.
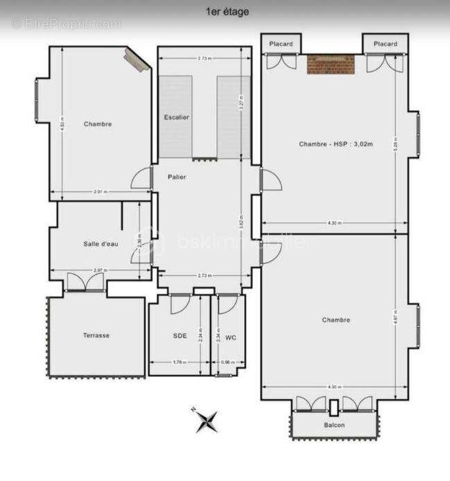
Au premier étage :
Une grande salle d'eau entièrement carrelée avec terrasse, un WC séparé, un coin lavabo/buanderie et trois chambres spacieuses et lumineuses.
Au deuxième étage :
Une salle de bain avec WC, trois grandes chambres dont une avec coin dressing, une buanderie pouvant faire office de Kitchenette.
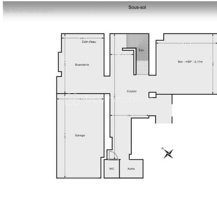
Au sous-sol (entièrement carrelé) :
Garage, buanderie avec coin d'eau, WC, espace bar/salle de jeux, chaufferie,
Bel espace extérieur de 100m2 entièrement clos de murs.
Toiture en ardoises intégralement refaite en 2017.
Chauffage au gaz de ville.
Double vitrage.
Une Visite s'impose contacter nous !!!!

Cette annonce référence 296111 vous est présentée par votre agent commercial BSK Immobilier DAVID JAKSIC (EIRL) immatriculé au RSAC de MELUN (77000) sous le numéro 83288936400010.

Prix du bien : 435 000,00 €
Les honoraires d'agence sont à la charge du vendeur.

A propos des performances énergétiques :
Date de réalisation du diagnostic énergétique : 03/07/2024
Score DPE : 294 kWhEP/m²/an
Score GES : 43 kgepCO2/m²/an
Montant estimé des dépenses annuelles d'énergie pour un usage standard : entre 4940.00 € et 6730.00 € par an. Prix moyens des énergies indexés sur l'année 2024 (abonnements compris).

Les informations sur les risques auxquels ce bien est exposé sont disponibles sur le site Géorisques : www.georisques.gouv.fr
Voir plus

Référence: 296111
Honoraires à la charge du vendeur.
DPE
A
B
C
D
E
F
G
GES
A
B
C
D
E
F
G

Prêt immobilier

Vous souhaitez connaître votre capacité d’emprunt et trouver le meilleur crédit immobilier ?
Réaliser une simulation gratuite

Maison à MONTEREAU-FAULT-YONNE
Maison à MONTEREAU-FAULT-YONNE
Maison à MONTEREAU-FAULT-YONNE
Maison à MONTEREAU-FAULT-YONNE
Maison à MONTEREAU-FAULT-YONNE
Maison à MONTEREAU-FAULT-YONNE
Maison à MONTEREAU-FAULT-YONNE
Maison à MONTEREAU-FAULT-YONNE
Maison à MONTEREAU-FAULT-YONNE
Maison à MONTEREAU-FAULT-YONNE
Maison à MONTEREAU-FAULT-YONNE
Maison à MONTEREAU-FAULT-YONNE
Maison à MONTEREAU-FAULT-YONNE
Maison à MONTEREAU-FAULT-YONNE
Ce site est protégé par reCAPTCHA la Politique de confidentialité et les Conditions d’utilisation de Google s’appliquent.
Obtenir un prêt immobilier au meilleur taux ?

En poursuivant votre navigation sans modifier vos paramètres, vous acceptez l'utilisation de cookies susceptibles de réaliser des statistiques de visite. Cliquez ici pour plus d'informations