Maison 156m² à rostrenen

— Rostrenen 22110 —
680 000 €
156 m² / 290 000 m²
6 pièces
parkingbalcon/terrassejardin

22110 - BRETAGNE - PROPRIÉTÉ ÉQUESTRE - 6 PIÈCES - 4 CHAMBRES - 156 m² - 29 HECTARES - DÉPENDANCES - 10 minutes de l'axe RENNES/QUIMPER

effiCity, l'agence qui estime votre bien en ligne, vous propose cette MAISON DE CHARME, un véritable havre de paix avec une VUE EXCEPTIONNELLE à l'écart de tous regards.

Nichée au cœur d'un terrain de 29 ha de PRAIRIES et BOIS, cette DEMEURE ancestrale sur trois NIVEAUX offre un cadre de vie idyllique. Elle bénéficie d'une EXPOSITION SUD côté jardin, assurant une luminosité naturelle tout au long de la journée.

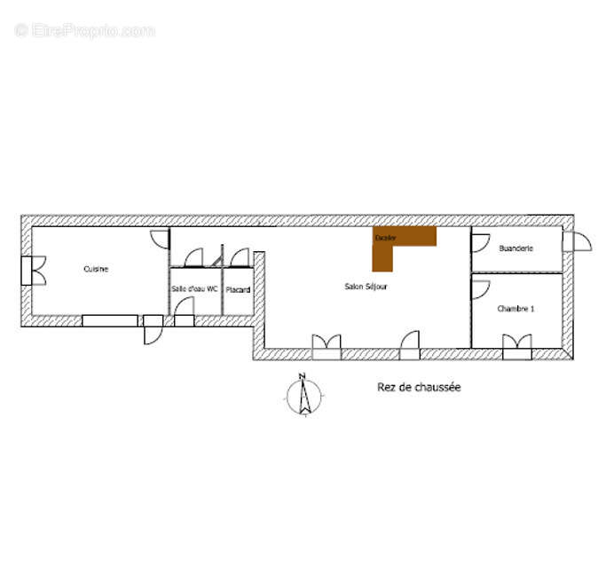
Au rez-de-chaussée, vous découvrirez un SALON - SÉJOUR, une CUISINE équipée baignée de LUMIÈRE avec une MEZZANINE, une CHAMBRE, une SALLE d' EAU avec WC et une TERRASSE de 35 m², parfaite pour profiter des beaux jours.

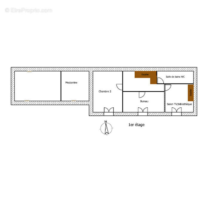
AU 1er étage, vous disposerez d'une CHAMBRE, un BUREAU, une SALLE de BAINS et un SALON TV / BIBLIOTHÈQUE.

Au second, une CHAMBRE avec DRESSING offre tout le confort nécessaire pour accueillir famille et amis.

La propriété dispose à l'extérieur, d'un PUITS, de plusieurs DÉPENDANCES en PIERRE et HANGARS ( avec ÉCURIE, BOXES, STABULATIONS, SELLERIE, STOCKAGE) afin d'y accueillir votre ÉLEVAGE, CHEVAUX ou tous autres animaux dans les meilleures conditions.

Les 29 hectares ATTENANTS et GROUPÉS sont décomposées en 20ha de TERRES AGRICOLES dont 16 ha de prairies déjà clôturées et 9 ha de FORÊT.

Le CALME environnant, l' AUTHENTICITÉ de la propriété sauront vous séduire.

Ne laissez pas passer cette opportunité unique de devenir propriétaire de ce magnifique HARAS, contactez-nous dès maintenant pour organiser une visite!
Les informations sur les risques auxquels ce bien est exposé sont disponibles sur le site Georisque : georisques. gouv. fr
Jean-Bernard Gautron - EI - est Agent Commercial mandataire en immobilier, immatriculé au Registre Spécial des Agents Commerciaux du Tribunal de Commerce de Rennes sous le n°753518919.
Siège social du mandant : effiCity, 48 avenue de Villiers - 75017 PARIS - Société par Actions Simplifiée, société au capital de 132 373,05 euros, immatriculée au RCS Paris 497 617 746 et titulaire de la Carte professionnelle CPI 75[Coordonnées masquées]02 025 - CCI Paris IDF - Caisse de Garantie : GALIAN Assurances 89 rue de la Boétie 75008 Paris
Voir plus

Référence: 184514
Honoraires à la charge du vendeur.
Barème des honoraires
DPE
A
B
C
D
E
F
G
GES
A
B
C
D
E
F
G

Prêt immobilier

Vous souhaitez connaître votre capacité d’emprunt et trouver le meilleur crédit immobilier ?
Réaliser une simulation gratuite

Maison à ROSTRENEN
Maison à ROSTRENEN
Maison à ROSTRENEN
Maison à ROSTRENEN
Maison à ROSTRENEN
Maison à ROSTRENEN
Maison à ROSTRENEN
Maison à ROSTRENEN
Maison à ROSTRENEN
Maison à ROSTRENEN
Maison à ROSTRENEN
Maison à ROSTRENEN
Maison à ROSTRENEN
Maison à ROSTRENEN
Maison à ROSTRENEN
Maison à ROSTRENEN
Maison à ROSTRENEN
Maison à ROSTRENEN
Maison à ROSTRENEN
Maison à ROSTRENEN
Maison à ROSTRENEN
Maison à ROSTRENEN
Ce site est protégé par reCAPTCHA la Politique de confidentialité et les Conditions d’utilisation de Google s’appliquent.
Obtenir un prêt immobilier au meilleur taux ?

En poursuivant votre navigation sans modifier vos paramètres, vous acceptez l'utilisation de cookies susceptibles de réaliser des statistiques de visite. Cliquez ici pour plus d'informations