Bénéficiez des services de nos partenaires locaux soigneusement sélectionnés
pour vous accompagner dans votre parcours d'achat immobilier

Voir tous les partenaires locaux

Appartement 82m² à bordeaux

— Bordeaux 33000 —
399 000 €
82 m²
3 pièces

Nos partenaires locaux
APPARTEMENT DE CHARME AU DERNIER ÉTAGE EN PLEIN CENTRE DE BORDEAUX

Au coeur de Bordeaux, dans le centre historique du centre-ville, découvrez cet appartement situé au dernier étage d'un immeuble en pierre. L'immeuble, composé de seulement 8 lots, se distingue par son excellent état d'entretien et son cachet authentique. Vous bénéficierez d'un emplacement privilégié, dans une rue paisible et calme à deux pas de la place Pey Berland, des commerces de proximité, des transports en commun (tram, bus) et de toutes les commodités du centre historique. Un cadre de vie idéal pour profiter pleinement de la vie bordelaise, entre dynamisme urbain et tranquillité.

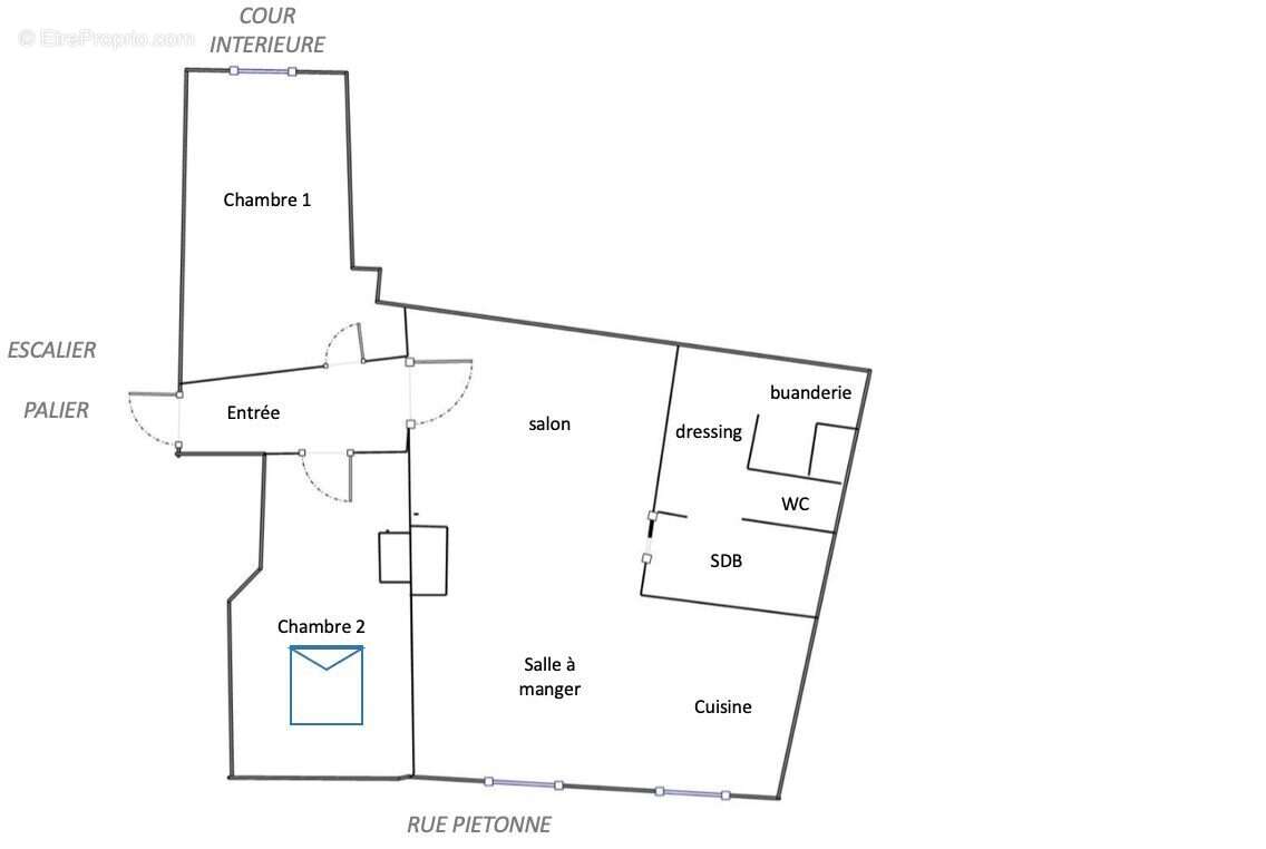
L'appartement développe une surface d'environ 82m², intelligemment répartie pour offrir à la fois confort et fonctionnalité. L'entrée dessert deux chambres distinctes : la première, spacieuse, donne sur la cour intérieure de l'immeuble ; la seconde, avec velux et rangements, bénéficie d'une belle luminosité. La pièce de vie se compose d'un vaste espace salon, d'une salle à manger et d'une cuisine ouverte, pour un ensemble convivial de plus de 37m². Vous trouverez également une salle de bain indépendante, un WC séparé, un dressing, ainsi qu'une buanderie attenante, facilitant l'organisation du quotidien.

L'appartement allie le charme de l'ancien et le confort moderne. Vous apprécierez les murs en pierre apparente qui soulignent l'authenticité du lieu, les menuiseries en double vitrage assurant une isolation optimale, ainsi qu'une cuisine aménagée et équipée, prête à l'emploi. Les volumes, la lumière naturelle et le soin apporté aux finitions en font un bien rare, à la fois chaleureux, fonctionnel et élégant, au coeur de l'un des quartiers les plus vivants et prisés de Bordeaux.

APPARTEMENT DE CHARME AU DERNIER ÉTAGE EN PLEIN CENTRE DE BORDEAUX

Honoraires à la charge du vendeur. Dans une copropriété de 8 lots. Aucune procédure n'est en cours. Classe énergie D, Classe climat B Montant estimé des dépenses annuelles d'énergie pour un usage standard : entre 1460.00 € et 2020.00 € sur les années 2021, 2022 et 2023 (abonnements compris). Les informations sur les risques auxquels ce bien est exposé sont disponibles sur le site Géorisques : georisques.gouv.fr.

Votre conseiller RH Patrimoine : Maxime HERVE
Agent commercial (Entreprise individuelle)
RSAC 133095555 J
RCP 13309666 J
Voir plus

Référence: 292-RHPATRI
Bien en copropriété. Nombre de lots : 8.
Honoraires à la charge du vendeur.
Barème des honoraires
DPE
A
B
C
D
E
F
G
GES
A
B
C
D
E
F
G

Prêt immobilier

Vous souhaitez connaître votre capacité d’emprunt et trouver le meilleur crédit immobilier ?
Réaliser une simulation gratuite

Appartement à BORDEAUX
Appartement à BORDEAUX
Appartement à BORDEAUX
Appartement à BORDEAUX
Appartement à BORDEAUX
Appartement à BORDEAUX
Ce site est protégé par reCAPTCHA la Politique de confidentialité et les Conditions d’utilisation de Google s’appliquent.
Obtenir un prêt immobilier au meilleur taux ?

En poursuivant votre navigation sans modifier vos paramètres, vous acceptez l'utilisation de cookies susceptibles de réaliser des statistiques de visite. Cliquez ici pour plus d'informations