Bénéficiez des services de nos partenaires locaux soigneusement sélectionnés
pour vous accompagner dans votre parcours d'achat immobilier

Appartement t2 récent avec balcon + parking privé - grand-champ centre

— Grand-Champ 56390 —
185 000 €
42 m²
2 pièces
balcon/terrasseascenseuraccès handicapé

Nos partenaires locaux
Grand-Champ centre - 185.000€HAI, frais de notaire offerts

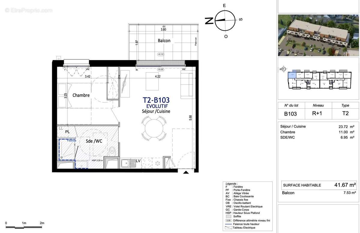
Situé en plein cœur du bourg de Grand-Champ, dans un secteur agréable et dynamique, cet appartement de 41,67 m², avec une chambre, jamais habité, est une opportunité rare à saisir. Il se trouve au premier étage d’un immeuble de deux étages avec ascenseur, dans une résidence de 2025 aux prestations soignées.

L’appartement est composé d’une entrée avec placard, d’un séjour-cuisine de 23,72 m² baigné de lumière grâce à son exposition plein Est, d’une chambre de 11 m² avec placard intégré et d’une salle d’eau de 6,95 m² avec douche, WC suspendu et petit espace buanderie pour machine à laver.

La cuisine est entièrement aménagée et équipée, prête à l’emploi.

À l’extérieur, vous profiterez d’un balcon de 7,53 m², avec grandes dalles céramique couleur caramel, parfait pour vos moments de détente. Une place de parking extérieure privée (PK 16) est incluse.

Le logement offre tout le confort moderne : chauffage individuel au gaz de ville, double vitrage PVC, volets roulants électriques, sol stratifié, VMC hygroréglable type B, fibre optique, digicode et assainissement tout à l’égout. La construction repose sur dalle béton, garantissant robustesse et durabilité.

Côté performances énergétiques, le bien est très économe avec un DPE en classe C (81 kWh/m²/an) et classe climat C (17 kg CO₂/m²/an). La consommation finale est estimée à 78 kWh/m²/an, avec des dépenses annuelles comprises entre 384 € et 520 € (abonnements inclus).

Aucun travaux à prévoir : vous n’avez plus qu’à poser vos valises pour votre plus grand confort !
Cadre de vie idéal : commerces (boulangerie, etc) à 100 mètres, école primaire Yves Coppens à 230m, collège privé Saint-Joseph à 190m, maison de l’enfance à 450m, ludothèque à 120m, parc à proximité. Arrêt de bus à 2min à pied.

Prix : 185 000 € honoraires inclus – Frais de notaire OFFERTS (honoraires 6 % inclus dans le prix).

Contactez-nous dès maintenant pour organiser une visite. Ce bien neuf, parfaitement situé et prêt à vivre, n’attend plus que vous !
Voir plus

Référence: 86098389
Barème des honoraires
DPE
A
B
C
D
E
F
G
GES
A
B
C
D
E
F
G

Prêt immobilier

Vous souhaitez connaître votre capacité d’emprunt et trouver le meilleur crédit immobilier ?
Réaliser une simulation gratuite

Appartement à GRAND-CHAMP
Appartement à GRAND-CHAMP
Appartement à GRAND-CHAMP
Appartement à GRAND-CHAMP
Appartement à GRAND-CHAMP
Appartement à GRAND-CHAMP
Appartement à GRAND-CHAMP
Appartement à GRAND-CHAMP
Appartement à GRAND-CHAMP
Appartement à GRAND-CHAMP
Appartement à GRAND-CHAMP
Ce site est protégé par reCAPTCHA la Politique de confidentialité et les Conditions d’utilisation de Google s’appliquent.
Obtenir un prêt immobilier au meilleur taux ?

En poursuivant votre navigation sans modifier vos paramètres, vous acceptez l'utilisation de cookies susceptibles de réaliser des statistiques de visite. Cliquez ici pour plus d'informations