Bénéficiez des services de nos partenaires locaux soigneusement sélectionnés
pour vous accompagner dans votre parcours d'achat immobilier

Appartement 54m² à jouy-sur-morin

— Jouy-Sur-Morin 77320 —
97 000 €
54 m²
2 pièces
parking

Nos partenaires locaux
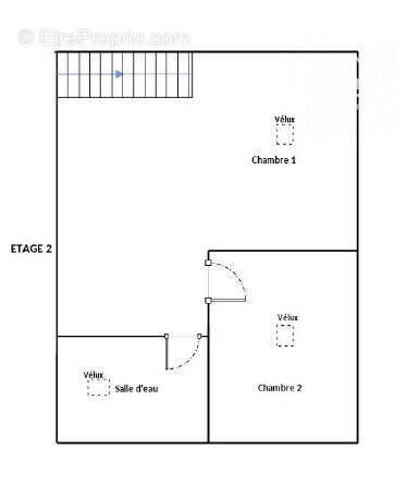
Duplex Charmant et Lumineux de 54 m² avec Vue sur Cour

Imaginez-vous dans ce magnifique duplex de 54 m², baigné de lumière naturelle grâce à ses grandes ouvertures en bois. Situé au premier étage d'un immeuble en excellent état, cet appartement allie charme et modernité. La cuisine aménagée, spacieuse et fonctionnelle, est un véritable atout pour les amateurs de gastronomie. Le salon, baigné de lumière grâce à son exposition ouest, offre une vue apaisante sur la cour intérieure, créant une atmosphère sereine et intimiste.

Le duplex se compose d'une chambre confortable, d'une salle d'eau moderne et de deux toilettes séparées, offrant un confort optimal pour la vie quotidienne. La cave de 4 m², située au sous-sol, est idéale pour ranger vos affaires et objets saisonniers.

Ce duplex est non meublé, vous laissant libre de personnaliser chaque espace selon vos goûts et vos besoins. Le stationnement intérieur sécurisé complète ce bien, offrant une solution pratique pour votre véhicule.

Situé à proximité de toutes les commodités, ce duplex est idéal pour les familles ou les professionnels en quête d'un cadre de vie agréable et pratique. À seulement 5 minutes à pied, vous trouverez une école élémentaire, une alimentation générale, un restaurant et un médecin généraliste. Les transports en commun sont également facilement accessibles, avec un arrêt de bus à 5 minutes à pied. Pour les familles avec de jeunes enfants, une crèche et une maternelle sont également à proximité.

Ne manquez pas cette opportunité de vivre dans un cadre de vie exceptionnel, alliant confort, praticité et charme. Contactez-nous dès maintenant pour organiser une visite et découvrir ce duplex qui pourrait bien devenir votre futur chez-vous.

Honoraires à la charge du vendeur. Dans une copropriété de 8 lots. Quote-part moyenne du budget prévisionnel 840 €/an. Aucune procédure n'est en cours. Classe énergie D, Classe climat B Montant moyen estimé des dépenses annuelles d'énergie pour un usage standard, établi à partir des prix de l'énergie de l'année 2021 : entre 800.00 et 1150.00 €. Les informations sur les risques auxquels ce bien est exposé sont disponibles sur le site Géorisques : georisques.gouv.fr.
Voir plus

Référence: VA10973-CIMMFRANCHISE
Bien en copropriété. Nombre de lots : 8. Charges de copropriété : 840 €.
Honoraires à la charge du vendeur.
Barème des honoraires
DPE
A
B
C
D
E
F
G
GES
A
B
C
D
E
F
G

Prêt immobilier

Vous souhaitez connaître votre capacité d’emprunt et trouver le meilleur crédit immobilier ?
Réaliser une simulation gratuite

Appartement à JOUY-SUR-MORIN
Appartement à JOUY-SUR-MORIN
Appartement à JOUY-SUR-MORIN
Appartement à JOUY-SUR-MORIN
Appartement à JOUY-SUR-MORIN
Appartement à JOUY-SUR-MORIN
Ce site est protégé par reCAPTCHA la Politique de confidentialité et les Conditions d’utilisation de Google s’appliquent.
Obtenir un prêt immobilier au meilleur taux ?

En poursuivant votre navigation sans modifier vos paramètres, vous acceptez l'utilisation de cookies susceptibles de réaliser des statistiques de visite. Cliquez ici pour plus d'informations