Bénéficiez des services de nos partenaires locaux soigneusement sélectionnés
pour vous accompagner dans votre parcours d'achat immobilier

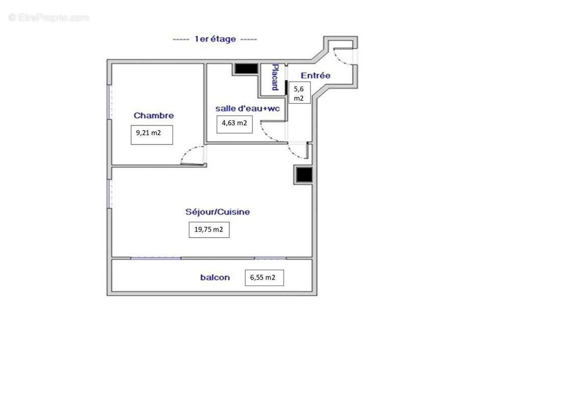
Appartement 40m² à la queue-en-brie

— La Queue-En-Brie 94510 —
159 000 €
40 m²
2 pièces
balcon/terrasse

Nos partenaires locaux
Iad France - Myriam MICELI vous propose : * OPPORTUNITÉ À SAISIR * Parfait pour ACHAT ou INVESTISSEMENT LOCATIF

Dans une PETITE RÉSIDENCE DE 2 ÉTAGES, SÉCURISÉE à proximité du centre-ville et SES COMMERCES et des TRANSPORTS en commun.

Venez visiter cet appartement de 40 m² AVEC BALCON de 6 m² et PLACE DE PARKING PRIVATIVE.

Cet appartement vous propose une GRANDE ENTRÉE avec PLACARD, une pièce de vie LUMINEUSE avec cuisine aménagée et équipée OUVERTE sur le salon, une CHAMBRE ENTIÈREMENT REFAITE RÉCEMMENT et une salle d'eau SPACIEUSE avec WC. La pièce de vie s'ouvre sur un AGRÉABLE BALCON.

Une place de parking privative complète ce bien.

* SES ATOUTS * : Localisation recherchée (Transports et Commerces) / Résidence de charme de 2 étages / Appartement LUMINEUX ET BIEN ENTRETENU / FENÊTRES PVC DOUBLE VITRAGE avec VOLETS ROULANTS / Très bonne isolation (DPE GES : A) / Faibles charges de copropriété.

À VISITER SANS TARDER !
Conseillère immobilier disponible 7j / 7


La presente annonce immobiliere vise 2 lots situés dans une copropriété de 163 lots au total et ne faisant l'objet d'aucune procédure en cours citée à l'article L. 721-1 du code de la construction et de l'habitation. Montant moyen mensuel de charges déclaré par le vendeur : 78.67¤ par mois (soit 944 ¤ annuel). Honoraires d'agence à la charge de l'acquéreur. Prix honoraires inclus : 159000 euros. Prix hors honoraires : 152000 euros. Honoraires TTC à la charge de l'acquéreur (4,61% du prix du bien hors honoraires) : 7000 euros.
Information d'affichage énergétique sur ce bien : classe ENERGIE D indice 222 et classe CLIMAT A indice 6. Les informations sur les risques auxquels ce bien est exposé, y compris l'obligation légale de débroussaillement, sont disponibles sur le site Géorisques : http://www.georisques.gouv.fr.
La présente annonce immobilière a été rédigée sous la responsabilité éditoriale de Mme Myriam MICELI mandataire indépendant en immobilier (sans détention de fonds), agent commercial de la SAS I@D France immatriculé au RSAC de CRETEIL sous le numéro 893685313, titulaire de la carte de démarchage immobilier pour le compte de la société I@D France SAS.
Informations LOI ALUR :
Soumis au régime de copropriété.
Nombre de lots : 163.
Quote part annuelle(moyenne) : 944 euros.
Honoraires charge vendeur. (gedeon_6727_31570934)
Voir plus

Référence: 1805915
Bien en copropriété. Nombre de lots : 163. Charges de copropriété : 944 €.
Honoraires à la charge du vendeur.
DPE
A
B
C
D
E
F
G
GES
A
B
C
D
E
F
G

Prêt immobilier

Vous souhaitez connaître votre capacité d’emprunt et trouver le meilleur crédit immobilier ?
Réaliser une simulation gratuite

Photo 1 - Appartement à LA QUEUE-EN-BRIE
Photo 1
Photo 2 - Appartement à LA QUEUE-EN-BRIE
Photo 2
Photo 3 - Appartement à LA QUEUE-EN-BRIE
Photo 3
Photo 4 - Appartement à LA QUEUE-EN-BRIE
Photo 4
Photo 5 - Appartement à LA QUEUE-EN-BRIE
Photo 5
Photo 6 - Appartement à LA QUEUE-EN-BRIE
Photo 6
Photo 7 - Appartement à LA QUEUE-EN-BRIE
Photo 7
Photo 8 - Appartement à LA QUEUE-EN-BRIE
Photo 8
Ce site est protégé par reCAPTCHA la Politique de confidentialité et les Conditions d’utilisation de Google s’appliquent.
Obtenir un prêt immobilier au meilleur taux ?

En poursuivant votre navigation sans modifier vos paramètres, vous acceptez l'utilisation de cookies susceptibles de réaliser des statistiques de visite. Cliquez ici pour plus d'informations