Bénéficiez des services de nos partenaires locaux soigneusement sélectionnés
pour vous accompagner dans votre parcours d'achat immobilier

Appartement 45m² à argeles-sur-mer

— Argeles-Sur-Mer 66700 —
189 000 €
45 m²
2 pièces
parkingbalcon/terrasseascenseuraccès handicapé

Nos partenaires locaux
Appartement T2 Neuf avec Jardin Privatif à Argelès-sur-Mer - AGENCE IMMOBILIÈRE GEGB

Vivez pleinement Argelès-sur-Mer dans un appartement neuf, spacieux et lumineux avec jardin privatif - Confort moderne et cadre paisible à deux pas du port et des plages.

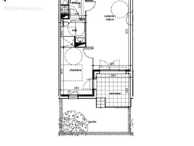
Situé en rez-de-chaussée d’une résidence neuve conforme aux normes RE2020, cet appartement T2 de 45,20 m² se distingue par son agencement optimisé et ses prestations de qualité. Il dispose d’un espace extérieur généreux avec une terrasse de 8,10 m² et un jardin privatif de 17,40 m², idéal pour profiter pleinement du climat méditerranéen.

Détail des surfaces :

Séjour / Cuisine : 24,30 m²
Entrée : 4,50 m²
Salle de bains : 4,90 m²
Chambre : 11,50 m²
Surface totale habitable : 45,20 m²
Terrasse : 8,10 m²
Jardin privatif : 17,40 m²

L’appartement offre un confort optimal grâce à une cuisine équipée, une climatisation réversible dans le séjour, un chauffage individuel dans la chambre, des menuiseries double vitrage et des volets roulants motorisés. La sécurité est assurée par une porte palière 3 points A2P, un visiophone ainsi qu’un parking privatif sécurisé.

Situé dans un quartier calme et recherché, à proximité immédiate du port, des plages et des commerces, ce T2 neuf avec jardin représente une opportunité rare pour un cadre de vie alliant sérénité et praticité.

Lots disponibles dans la résidence :
T2 - 45,20 m² à partir de 193 000 € TTC

T3 - 62,20 à 63,60 m² à partir de 251 000 €

T4 - 80,40 m² à partir de 359 000 €

Frais de notaire offerts - un coup de pouce pour votre futur logement !
Démarrez votre nouvelle vie sans frais supplémentaires.

Pour toute demande d’information ou visite, contactez l’AGENCE IMMOBILIÈRE GEGB, votre spécialiste du neuf sur la Côte Catalane :
[Coordonnées masquées]
www.immo66-gegb.fr

« Les informations sur les risques auxquels ce bien est exposé sont disponibles sur le site Géorisques : www.georisques.gouv.fr »
Voir plus

Référence: 56
Bien en copropriété.
Honoraires à la charge du vendeur.

Prêt immobilier

Vous souhaitez connaître votre capacité d’emprunt et trouver le meilleur crédit immobilier ?
Réaliser une simulation gratuite

Appartement à ARGELES-SUR-MER
Appartement à ARGELES-SUR-MER
Appartement à ARGELES-SUR-MER
Ce site est protégé par reCAPTCHA la Politique de confidentialité et les Conditions d’utilisation de Google s’appliquent.
Obtenir un prêt immobilier au meilleur taux ?

En poursuivant votre navigation sans modifier vos paramètres, vous acceptez l'utilisation de cookies susceptibles de réaliser des statistiques de visite. Cliquez ici pour plus d'informations