Bénéficiez des services de nos partenaires locaux soigneusement sélectionnés
pour vous accompagner dans votre parcours d'achat immobilier

Mulhausen (67) - maison 182m² avec cave et jardin sur 3 ares

— Mulhausen 67350 —
179 300 €
182 m² / 296 m²
8 pièces
jardin

Nos partenaires locaux
Demandez à découvrir cette belle propriété autant pour ses volumes (ancienne maison bi-famille facilement aménageable en maison individuelle) que pour son cadre de vie dans le village alsacien de MULHAUSEN.

Logement à rénover de 182m² sur 2 étages et cave complète avec un extérieur agréable (jardin et terrasse) dans une commune paisible à moins de 10min de VAL DE MODER, d'INGWILLER et de la gare d'OBERMODERN

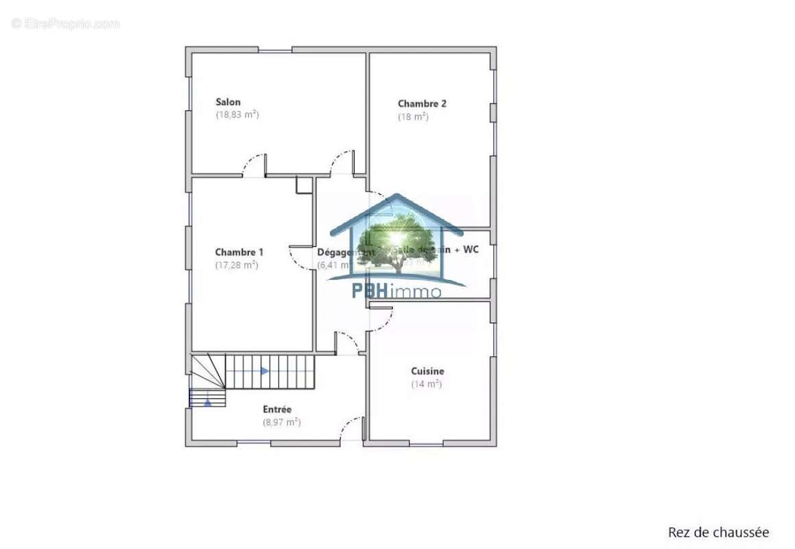
Au REZ-DE-CHAUSSEE : vous trouverez un sas d'entrée (ancienne entrée commune des 2 logements), un dégagement desservant les pièces de vie : cuisine, salle de bain avec WC, 2 chambres et un salon.

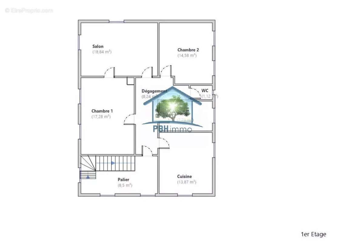
Au PREMIER ETAGE : nous avons un dégagement, une cuisine séparée, une pièce à aménager (idéalement une salle de bain/d'eau), un WC séparé, 2 chambres et un salon.

Pour votre confort, le bien bénéficie d'un chauffage centralisé et du double vitrage

Tous les diagnostics obligatoires ont été effectués (y compris l'audit énergétique et le rapport de surface) et disponible sur demande après visite. (à noter que les consommations indiquées sur le DPE sont théoriques et une obligation légale, elles ne représentent pas forcément les consommations réelles)

Note générale DPE : F. Précisions : Consommation : D (252) , Emissions de gaz à effet de serre : F (78)


Les atouts de ce bien sont :
- Positionnement géographique idéal
- Bon état général et beaux volumes
- Idéal pour investisseur (recréer 2 logements) ou famille qui souhaite un petit extérieur

Prix : 179 300 Euros
Toute offre sérieuse et motivée après visite sera étudiée avec attention.

Votre interlocuteur unique pour cette belle affaire en EXCLUSIVITE : Philippe Firn. négociateur immobilier et responsable régional pour le réseau immobilier national PBHimmo

Pour tout projet de vente ou achat dans le secteur, RDV dans l'une de nos 4 agences dans le Bas-Rhin.

/// Toutes nos offres EN AVANT PREMIERE sur notre page FACEBOOK : PBH IMMO Alsace Moselle ///

Les informations sur les risques auxquels ce bien est exposé sont disponibles sur le site Géorisques : www.georisques.gouv.fr
Voir plus

Référence: 7969
DPE
A
B
C
D
E
F
G
GES
A
B
C
D
E
F
G

Prêt immobilier

Vous souhaitez connaître votre capacité d’emprunt et trouver le meilleur crédit immobilier ?
Réaliser une simulation gratuite

Maison à MULHAUSEN
Maison à MULHAUSEN
Maison à MULHAUSEN
Maison à MULHAUSEN
Maison à MULHAUSEN
Maison à MULHAUSEN
Maison à MULHAUSEN
Maison à MULHAUSEN
Maison à MULHAUSEN
Maison à MULHAUSEN
Maison à MULHAUSEN
Maison à MULHAUSEN
Maison à MULHAUSEN
Maison à MULHAUSEN
Maison à MULHAUSEN
Ce site est protégé par reCAPTCHA la Politique de confidentialité et les Conditions d’utilisation de Google s’appliquent.
Obtenir un prêt immobilier au meilleur taux ?

En poursuivant votre navigation sans modifier vos paramètres, vous acceptez l'utilisation de cookies susceptibles de réaliser des statistiques de visite. Cliquez ici pour plus d'informations