Bénéficiez des services de nos partenaires locaux soigneusement sélectionnés
pour vous accompagner dans votre parcours d'achat immobilier

Maison familiale avec jardin et garage secteur saint-tronc françois mauriac marseille 10ème

— Marseille-10e 13010 —
449 000 €
115 m² / 297 m²
6 pièces
parkingbalcon/terrassejardin

Nos partenaires locaux
Située dans le quartier recherché de Saint-Tronc, rue François Mauriac :
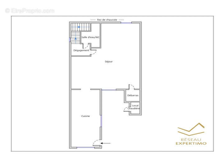
Maison familiale de 141 m2 au total (dont 115 m2 habitables), édifiée sur une parcelle d’environ 300 m2 avec jardin, à rénover entièrement pour révéler tout son potentiel.
La maison s’élève sur 3 niveaux : - Un rez-de-chaussée avec espace de vie, cuisine séparé, salle d’eau avec wc, garage et jardin, - Un étage composé de 3 chambres, 2 salles d’eau avec wc et un balcon, - Les combles ont été aménagés en deux pièces supplémentaires avec salle d’eau et WC, pouvant faire office de chambres, de bureau ou de salle de jeux…
Un jardin privatif et un garage complètent ce bien. Des travaux sont à prévoir. Photos disponibles sur demande.
Disponible immédiatement.
Cette annonce vous est proposée par DJELLOULI Anissa - EI - NoRSAC: 850906694, Enregistré à Chambre de commerce et de l'industrie de MARSEILLE - Annonce rédigée et publiée par un Agent Mandataire -
Voir plus

Référence: 91191
Barème des honoraires
DPE
A
B
C
D
E
F
G
GES
A
B
C
D
E
F
G

Prêt immobilier

Vous souhaitez connaître votre capacité d’emprunt et trouver le meilleur crédit immobilier ?
Réaliser une simulation gratuite

Maison à MARSEILLE-10E
Maison à MARSEILLE-10E
Maison à MARSEILLE-10E
Maison à MARSEILLE-10E
Maison à MARSEILLE-10E
Maison à MARSEILLE-10E
Ce site est protégé par reCAPTCHA la Politique de confidentialité et les Conditions d’utilisation de Google s’appliquent.
Obtenir un prêt immobilier au meilleur taux ?

En poursuivant votre navigation sans modifier vos paramètres, vous acceptez l'utilisation de cookies susceptibles de réaliser des statistiques de visite. Cliquez ici pour plus d'informations