Sous offre agay cap esterel le hameau 3 pieces trame large vue mer panoramique

— La Seyne-Sur-Mer 83530 —
330 000 €
39 m²
3 pièces
parkingbalcon/terrassepiscine

AGAY CAP ESTEREL LE HAMEAU 3 PIECES TRAME LARGE VUE MER PANORAMIQUE EXPO SUD
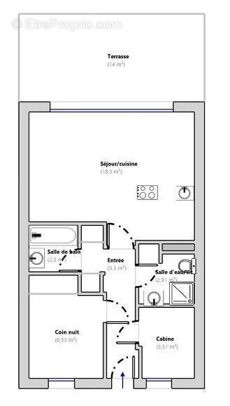
Magnifique 3 pièces trame large situé au premier étage dans un petit bâtiment avec accès direct sans escaliers.
Superbe terrasse couverte et en angle, exposée au Sud et face à l'Ile d'Or. Entrée, chambre cabine avec lit superposé, chambre parentale avec lit double 160cm, salle de bain, salle d'eau et WC avec lave linge et sèche linge, salon avec coin cuisine équipé (lave vaisselle, four pyrolyse, plaques induction, frigo et congélateur), large baie vitrée donnant sur la terrasse avec vue mer panoramique jusqu'à St Tropez. Parking privé en sous sol. Superbe état. Bien rare à ne pas manquer!
Idéal vacances et locatif.
La résidence de vacances Cap Esterel est située dans le massif de l’Esterel, entre Cannes et Saint Raphael, dominant la magnifique baie d’Agay. Sur place vous trouverez un parcours de golf, 5 piscines dont une chauffée, plusieurs tennis, espaces jeux pour les enfants, navette pour la plage du Dramont, plage du Pourousset accessible à pieds, tous commerces (supermarché, boutiques, presse, loto, tabac, etc….), bar, restaurants, et nombreuses animations pour adultes et enfants. Idéal pour investissement locatif et vacances en famille.


“Agay est un paradis où même la poussière est parfumée.” –

Agay, située dans l’une des plus belles rades de la côte entre le Cap Dramont et la pointe de la Baumette, est la porte d’entrée naturelle de l’Estérel. Elle offre trois plages de sable fin et une aire aménagée en terrasse avec accès à la mer par les rochers. Très abritée, elle était appréciée des navigateurs (Agay signifie “favorable” en grec).
Avec l’arrivée du chemin de fer en 1860, de nombreux artistes font escale à Agay : le peintre Louis Valtat, le compositeur Vincent d’Indy, les écrivains Guy de Maupassant et Maurice Donnay y séjournèrent ainsi que Saint-Exupéry (ne pas manquer la Fontaine pour le Petit Prince, dressée en son hommage). Albert Cohen y a situé une partie de l’action de Belle du Seigneur
Bien à l’abri entre le Cap Dramont et la pointe de la Baumette, la rade d’Agay constitue une porte d’entrée naturelle vers le massif de l’Estérel.
Sa configuration en fait d’ailleurs un lieu très apprécié par les navigateurs (Agay signifie d’ailleurs “favorable” en Grec). Vous apprécierez ses trois plages de sable fin, le sommet du Rastel et ses roches rouges, dominant la rade et offrant un panorama à couper le souffle.
Agay dispose également d’un petit espace portuaire de 166 places, donc quelques-unes sont disponibles pour accueil, ainsi qu’un espace de mouillage organisé.

SAINT RAPHAEL
COEUR DE VILLE ET VIEILLE VILLE
De l’ancien “quartier du village” où vivaient les paysans raphaëlois subsistent aujourd’hui les ruelles étroites et ombragées qui constituent la vieille ville.
Chaque jour, ce quartier accueille un marché aux fleurs et aux légumes où vous ne trouverez que des denrées typiquement provençales.
Un peu plus loin, se dresse l’église romane, classée monument historique, qui fut agrandie au XVIIIème siècle, mais bâtie au XIIème siècle ! Son presbytère accueille aujourd’hui le Musée Archéologique de Saint-Raphaël. Sa tour de guet de 22 m, datée aux environs du XIVème siècle, offre un splendide panorama.
Le "Quartier de la Marine", autrefois fréquenté par les pêcheurs de la ville, s'est peu à peu mué en station balnéaire. Un casino, ainsi que de nombreuses villas, y ont été construits afin de créer un véritable centre ville attractif.
Points d'intérêts
Basilique Notre-Dame de la Victoire : édifice construit par Pierre Aublé entre 1882 et 1889, représentatif du style romano-byzantin très en vogue à la Belle Epoque.
Musée de Préhistoire et d'archéologie sous-marine : il recèle des collections issues du patrimoine local, de la préhistoire ainsi que de l'antiquité romaine provenant des fouilles sous-marines.
Musée Louis de Funès : plus de 350 documents sont présentés des photographies personnelles, de tournage et de films, des dessins notamment de Louis de Funès, des lettres comme celles de Jean Anouilh, mais aussi des extraits de films, dont certains inconnus. Visite numérique du Musée.
Promenade des Bains : cette promenade fut réalisée entre 1880 et 1882 sous le nom de "Terrasse des Bains". On peut considérer qu'elle marque le début de l'ère touristique à Saint-Raphaël
Le Jardin Bonaparte : situation dominante sur la baie et le vieux port, avec 20 000 m² de jardin. Sa partie centrale est aménagée comme square public avec des aires de jeu pour les enfants. AZZURRA Immobilier leader de l'immobilier à Cap Esterel
Voir plus

Référence: 569
DPE
A
B
C
D
E
F
G
GES
A
B
C
D
E
F
G

Prêt immobilier

Vous souhaitez connaître votre capacité d’emprunt et trouver le meilleur crédit immobilier ?
Réaliser une simulation gratuite

Appartement à LA SEYNE-SUR-MER
Appartement à LA SEYNE-SUR-MER
Appartement à LA SEYNE-SUR-MER
Appartement à LA SEYNE-SUR-MER
Ce site est protégé par reCAPTCHA la Politique de confidentialité et les Conditions d’utilisation de Google s’appliquent.
Obtenir un prêt immobilier au meilleur taux ?

En poursuivant votre navigation sans modifier vos paramètres, vous acceptez l'utilisation de cookies susceptibles de réaliser des statistiques de visite. Cliquez ici pour plus d'informations