Bénéficiez des services de nos partenaires locaux soigneusement sélectionnés
pour vous accompagner dans votre parcours d'achat immobilier

Maison de village polyvalente à arquian : résidence principale, secondaire ou investissement locatif

— Arquian 58310 —
59 900 €
100 m² / 384 m²
5 pièces
parkingjardin

Nos partenaires locaux
Découvrez cette maison de village offrant de multiples possibilités d'aménagement !
Située à Arquian (58310), cette maison mitoyenne des deux côtés est idéale pour ceux qui recherchent une résidence principale, une résidence secondaire ou un investissement locatif.
Les atouts de cette propriété :

Flexibilité : La configuration actuelle de la maison permet de créer jusqu'à trois logements indépendants : un au rez-de-chaussée, un au premier étage et un au second. Idéal pour une grande famille, pour accueillir des amis ou pour générer des revenus locatifs.
Espaces extérieurs : La véranda donne accès à une cave avec grenier et à un atelier. Un escalier indépendant conduit au premier et au second étage, offrant une entrée privée.
Dépendances : Un double garage, une remise, un débarras et une parcelle de terrain non attenante de quelques mètres complètent ce bien.
Potentiel : Le grenier aménageable offre de belles perspectives d'extension.

Cette propriété est une opportunité unique d'acquérir un bien polyvalent à rénover selon vos envies. Que ce soit pour y vivre à l'année, pour passer vos vacances ou pour réaliser un investissement locatif, cette maison s'adapte à tous vos projets.
À seulement 20min de COSNE, 1h de NEVERS et 2h de PARIS par l’autoroute A77 toute proche (12min).
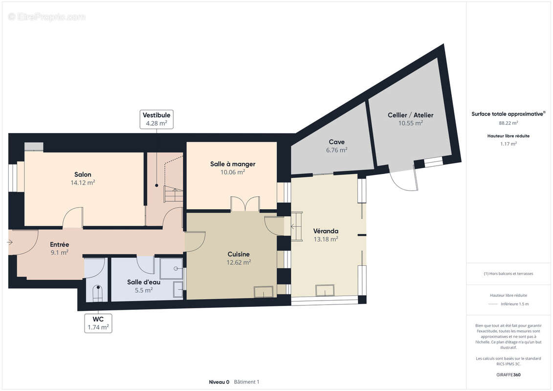
Le lot immobilier se compose comme ceci :
 
Rdc :
 
-       Salon avec placard (14,1m2) pouvant être utilisé en chambre si besoin.
-       Salle à manger (10m2) pouvant être ouvert sur cuisine.
-       Cuisine (12,6m2) avec accès véranda.
-       Entrée-couloir (9,1m2).
-       Salle d’eau avec douche et vasque (5,5m2) + espace buanderie.
-       WC (1,74m2).
-       Cellier/vestibule (4,3m2) avec escalier conduisant au 1er étage.
-       Véranda fermée (13,2m2) avec accès à la cave + grenier + puits.
 
1er étage :
 
-       Palier (6,9m2).
-       Chambre (18m2) avec placard.
-       Chambre (10,8m2) et en enfilade chambre (11,7m2).
-       Le 1er étage est accessible par un escalier intérieur mais également par un second escalier desservi par une entrée privative.
 
2nd étage :
 
-       Grenier aménageable (62,1m2) avec escalier desservi par une entrée privative.
 
Sous-sol :
 
-       Cave (6,7m2).
 
Dépendances extérieures :
 
-       Atelier (10,55m2).
-       Débarras (5,5m2).
-       Remise non attenante (9,9m2) située à quelques mètres.
-       Double garage (34,45m2) situé à quelques mètres.
 
Informations supplémentaires :
 
-       Assainissement collectif.
-       Chauffage électrique.
-       Connexion fibre dans la rue.
-       Parcelle de terrain supplémentaire de 155m2 située à quelques mètres.
 
Ne manquez pas cette occasion unique de devenir propriétaire d’une maison familiale, avec de beaux volumes et un charme authentique.
Contactez-moi sans plus tarder et je me ferais un plaisir de vous faire visiter.
Cette annonce vous est proposée par AGUT Jimmy - EI - NoRSAC: 908 780 109, Enregistré à Greffe du tribunal de commerce de Nevers - Annonce rédigée et publiée par un Agent Mandataire -
Voir plus

Référence: 81868
Honoraires à la charge du vendeur.
Barème des honoraires
DPE
A
B
C
D
E
F
G
GES
A
B
C
D
E
F
G

Prêt immobilier

Vous souhaitez connaître votre capacité d’emprunt et trouver le meilleur crédit immobilier ?
Réaliser une simulation gratuite

Maison à ARQUIAN
Maison à ARQUIAN
Maison à ARQUIAN
Maison à ARQUIAN
Maison à ARQUIAN
Maison à ARQUIAN
Maison à ARQUIAN
Maison à ARQUIAN
Maison à ARQUIAN
Maison à ARQUIAN
Maison à ARQUIAN
Maison à ARQUIAN
Maison à ARQUIAN
Maison à ARQUIAN
Maison à ARQUIAN
Maison à ARQUIAN
Maison à ARQUIAN
Maison à ARQUIAN
Maison à ARQUIAN
Maison à ARQUIAN
Maison à ARQUIAN
Maison à ARQUIAN
Maison à ARQUIAN
Maison à ARQUIAN
Maison à ARQUIAN
Maison à ARQUIAN
Maison à ARQUIAN
Maison à ARQUIAN
Maison à ARQUIAN
Maison à ARQUIAN
Maison à ARQUIAN
Maison à ARQUIAN
Maison à ARQUIAN
Maison à ARQUIAN
Maison à ARQUIAN
Maison à ARQUIAN
Maison à ARQUIAN
Maison à ARQUIAN
Maison à ARQUIAN
Maison à ARQUIAN
Maison à ARQUIAN
Maison à ARQUIAN
Maison à ARQUIAN
Ce site est protégé par reCAPTCHA la Politique de confidentialité et les Conditions d’utilisation de Google s’appliquent.
Obtenir un prêt immobilier au meilleur taux ?

En poursuivant votre navigation sans modifier vos paramètres, vous acceptez l'utilisation de cookies susceptibles de réaliser des statistiques de visite. Cliquez ici pour plus d'informations