Bénéficiez des services de nos partenaires locaux soigneusement sélectionnés
pour vous accompagner dans votre parcours d'achat immobilier

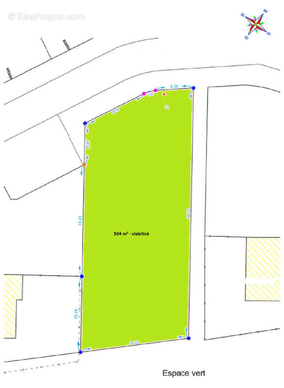
Saint molf - terrain constructible

— Saint-Molf 44350 —
159 600 €
504 m²
jardin

Nos partenaires locaux
Dans un lotissement proche du Bourg, terrain constructible de 504 m². Coefficient d'emprise au sol de 40%. Vendu viabilisé. LIBRE DE CONSTRUCTEUR Pour plus d'informations nous contacter. (5.00 % honoraires TTC à la charge de l'acquéreur.)

Référence: 734
Honoraires d'agence de 5% à la charge de l'acquéreur

Prêt immobilier

Vous souhaitez connaître votre capacité d’emprunt et trouver le meilleur crédit immobilier ?
Réaliser une simulation gratuite

Terrain à SAINT-MOLF
Terrain à SAINT-MOLF
Ce site est protégé par reCAPTCHA la Politique de confidentialité et les Conditions d’utilisation de Google s’appliquent.
Obtenir un prêt immobilier au meilleur taux ?

En poursuivant votre navigation sans modifier vos paramètres, vous acceptez l'utilisation de cookies susceptibles de réaliser des statistiques de visite. Cliquez ici pour plus d'informations