Appartement 67m² à maisons-alfort

— Maisons-Alfort 94700 —
355 000 €
68 m²
3 pièces
parking

Appartement T3 spacieux et au calme sur jardins
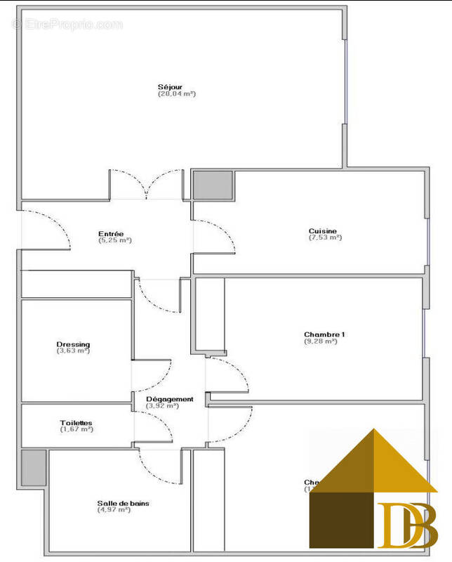
Découvrez cet appartement T3 de 67,52 m², niché au 1er étage d'une résidence de standing, construit en 1986, et situé en centre-ville dans un quartier dynamique et bien desservi.

Composé d'une entrée avec placard-penderie, d'un séjour et deux chambres au calme sur jardins, un grand dressing, une salle bains et un wc séparés. Une cave et un parking en sous-sol complète le tout.

Situé à proximité immédiate de plusieurs commodités, vous profiterez d'un cadre de vie pratique et agréable. À seulement 5 minutes à pied, vous trouverez des crèches, des écoles maternelles et élémentaires, des commerces d'alimentation générale, des restaurants, un parc et jardin pour des moments de détente, ainsi que des médecins généralistes. Les transports en commun sont également bien desservis, avec un bus à 5 minutes à pied et le métro à 5 minutes en voiture. Les tramways sont accessibles en 10 minutes en voiture. Un hôpital est également accessible en 5 minutes en voiture.

Ne manquez pas cette occasion unique de vous installer dans un quartier dynamique et bien desservi. Contactez-nous dès maintenant pour organiser une visite et laissez-vous séduire par le potentiel de ce charmant appartement.

Honoraires inclus de 4.41% TTC à la charge de l'acquéreur. Prix hors honoraires 340 000 €. Dans une copropriété de 52 lots. Quote-part moyenne du budget prévisionnel 1 824 €/an. Aucune procédure n'est en cours. Classe énergie D, Classe climat B Montant estimé des dépenses annuelles d'énergie pour un usage standard : entre 1040.00 € et 1470.00 € sur les années 2021, 2022 et 2023 (abonnements compris). Les informations sur les risques auxquels ce bien est exposé sont disponibles sur le site Géorisques : georisques.gouv.fr.
Voir plus

Référence: VA2133-DEBARROS
Bien en copropriété. Nombre de lots : 52. Charges de copropriété : 1824 €.
Honoraires d'agence de 4.41% à la charge de l'acquéreur
Barème des honoraires
DPE
A
B
C
D
E
F
G
GES
A
B
C
D
E
F
G

Prêt immobilier

Vous souhaitez connaître votre capacité d’emprunt et trouver le meilleur crédit immobilier ?
Réaliser une simulation gratuite

Appartement à MAISONS-ALFORT
Appartement à MAISONS-ALFORT
Appartement à MAISONS-ALFORT
Appartement à MAISONS-ALFORT
Appartement à MAISONS-ALFORT
Appartement à MAISONS-ALFORT
Appartement à MAISONS-ALFORT
Appartement à MAISONS-ALFORT
Appartement à MAISONS-ALFORT
Ce site est protégé par reCAPTCHA la Politique de confidentialité et les Conditions d’utilisation de Google s’appliquent.
Obtenir un prêt immobilier au meilleur taux ?

En poursuivant votre navigation sans modifier vos paramètres, vous acceptez l'utilisation de cookies susceptibles de réaliser des statistiques de visite. Cliquez ici pour plus d'informations