Bénéficiez des services de nos partenaires locaux soigneusement sélectionnés
pour vous accompagner dans votre parcours d'achat immobilier

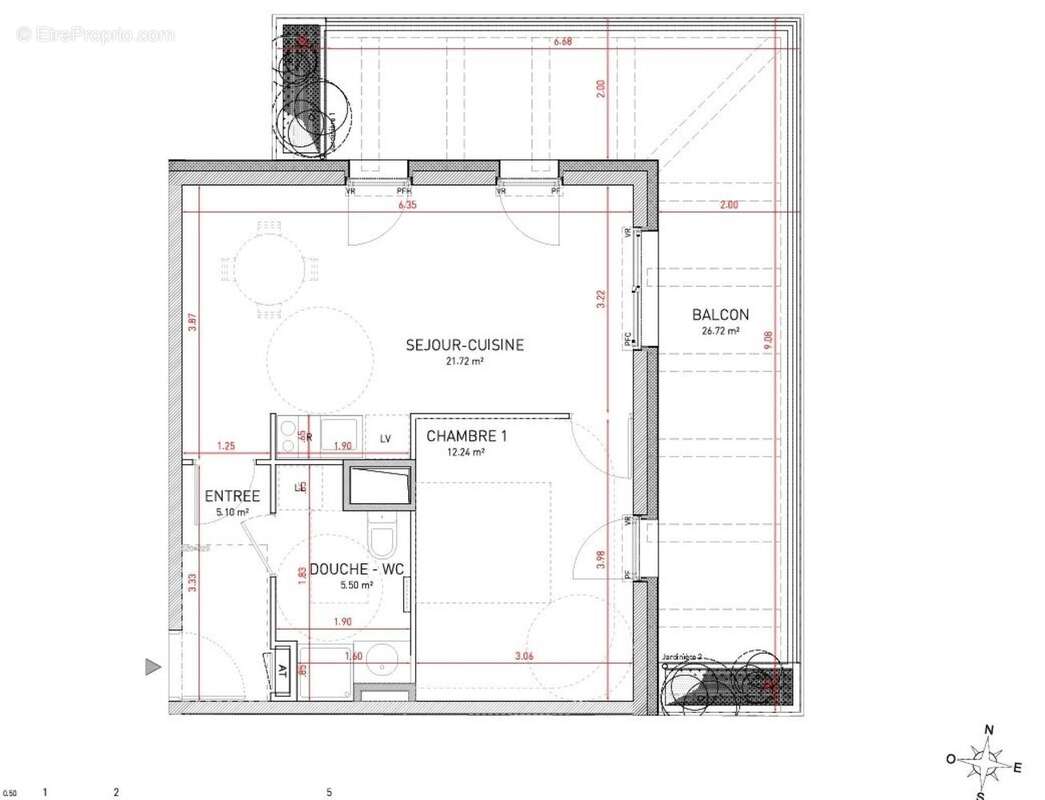
Appartement 45m² à grenoble

— Grenoble 38000 —
178 000 €
45 m²
2 pièces
balcon/terrasseascenseuraccès handicapé

Nos partenaires locaux
Situé dans la charmante ville de Grenoble, une situation idéale dans un environnement tranquille à proximité des transports en commun (bus / tramway / Train) et des principales artères commerçantes du centre ville.

Cet appartement T2 de 45 m² se trouve au 3e étage d'une copropriété moderne construite en 2012.
Doté d'une terrasse de 27 m² offrant un exceptionnel Panorama (exposition Sud Ouest)
Cet appartement très lumineux bénéficie d'une belle pièce de vie avec kitchenette équipée, une chambre, salle bain et wc. Les pièces sont bien agencées, offrant un espace de vie optimisé.
L'environnement urbain offre un cadre dynamique et pratique pour la vie quotidienne.
Possibilité d'un garage dans la résidence.

Le bien comprend 1 lot, et il est situé dans une copropriété de 60 lots (les charges courantes annuelles moyennes de copropriété sont de 980 ¤ et le syndicat des copropriétaires ne fait pas l'objet d'une procédure citée à l'article L. 721-1 du code de la construction et de l'habitation).

Les informations sur les risques auxquels ce bien est exposé sont disponibles sur le site Géorisques : www.georisques.gouv.fr
Prix de vente : 178 000 ¤
Honoraires charge vendeur

Contactez votre conseiller SAFTI : Anthony REBUFFET, Tél. : [Coordonnées masquées], E-mail : [Coordonnées masquées] - EI - Agent commercial immatriculé au RSAC de Chambéry sous le numéro 979589785.
Informations LOI ALUR :
Soumis au régime de copropriété.
Nombre de lots : 60.
Quote part annuelle(moyenne) : 980 euros.
Honoraires charge vendeur. (gedeon_26118_31570314)
Voir plus

Référence: 1396562
Bien en copropriété. Nombre de lots : 60. Charges de copropriété : 980 €.
Honoraires à la charge du vendeur.
Barème des honoraires
DPE
A
B
C
D
E
F
G
GES
A
B
C
D
E
F
G

Prêt immobilier

Vous souhaitez connaître votre capacité d’emprunt et trouver le meilleur crédit immobilier ?
Réaliser une simulation gratuite

Photo 1 - Appartement à GRENOBLE
Photo 1
Photo 2 - Appartement à GRENOBLE
Photo 2
Photo 3 - Appartement à GRENOBLE
Photo 3
Photo 4 - Appartement à GRENOBLE
Photo 4
Photo 5 - Appartement à GRENOBLE
Photo 5
Photo 6 - Appartement à GRENOBLE
Photo 6
Photo 7 - Appartement à GRENOBLE
Photo 7
Photo 8 - Appartement à GRENOBLE
Photo 8
Ce site est protégé par reCAPTCHA la Politique de confidentialité et les Conditions d’utilisation de Google s’appliquent.
Obtenir un prêt immobilier au meilleur taux ?

En poursuivant votre navigation sans modifier vos paramètres, vous acceptez l'utilisation de cookies susceptibles de réaliser des statistiques de visite. Cliquez ici pour plus d'informations