Commerce 260m² à arconnay

— Arconnay 72610 —
488 000 €
260 m²

L'Agence My Home Immobilier vous propose à la vente cet ensemble immobilier, construit il y a une quinzaine d'année, idéalement situé comprenant:
-un salon de coiffure ( bail en cours)
-un centre de soins (2 baux en cours)
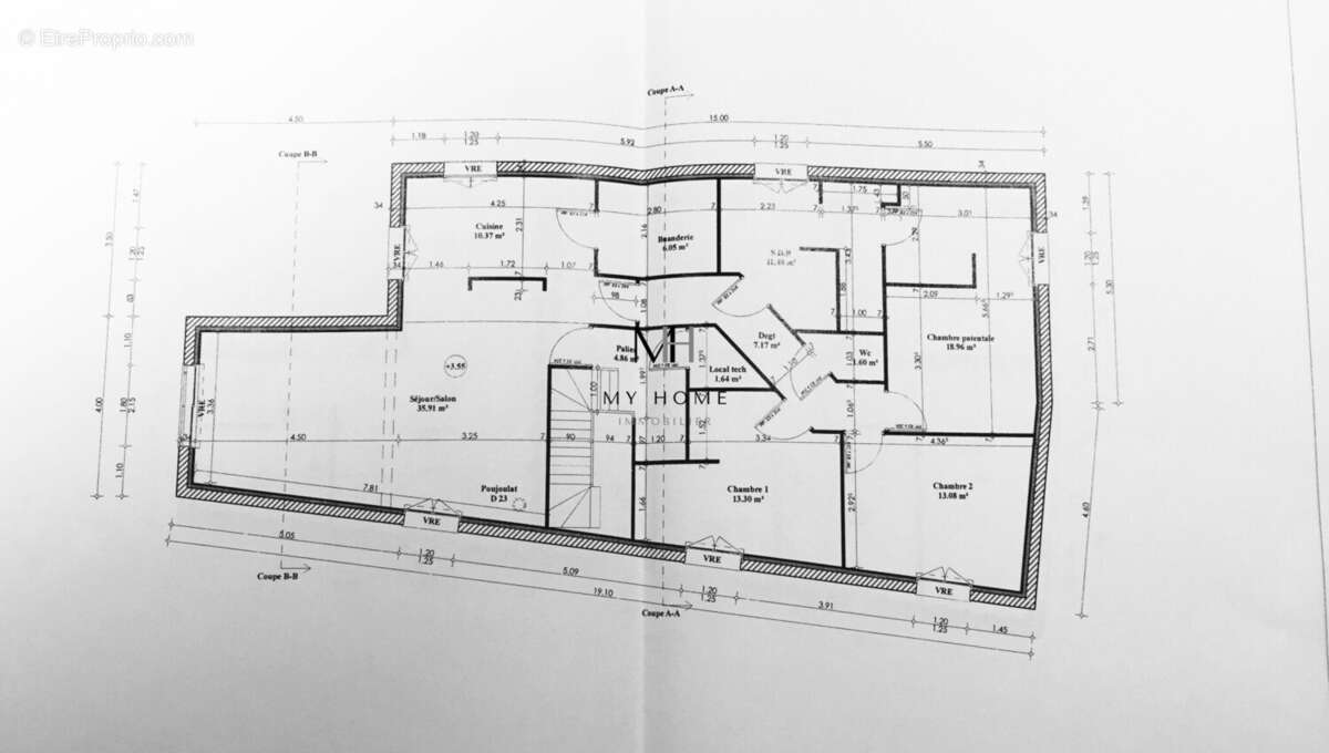
-un appartement de 130m2 composé de 3 chambres, une salle de douche et bain
-deux places de parking
-cour et jardin

Loyer mensuel 3200 euros/mois

Contact et visite auprès de Lucie Motas au O648195890

Honoraires inclus de 6.09% à la charge de l'acquéreur. Prix hors honoraires 460 000 €. Classe énergie D, Classe climat A. Les informations sur les risques auxquels ce bien est exposé sont disponibles sur le site Géorisques : georisques.gouv.fr.

Votre conseiller My HOME IMMOBILIER : Gérante - Lucie MOTAS
Voir plus

Référence: LM2226A-MYHOMEIMMO
Honoraires d'agence de 6.09% à la charge de l'acquéreur
Barème des honoraires
DPE
A
B
C
D
E
F
G
GES
A
B
C
D
E
F
G

Prêt immobilier

Vous souhaitez connaître votre capacité d’emprunt et trouver le meilleur crédit immobilier ?
Réaliser une simulation gratuite

salon de coiffure - Commerce à ARCONNAY
salon de coiffure
centre de soins - Commerce à ARCONNAY
centre de soins
plan local commercial - Commerce à ARCONNAY
plan local commercial
plan appartement - Commerce à ARCONNAY
plan appartement
jardin et cour - Commerce à ARCONNAY
jardin et cour
devanture - Commerce à ARCONNAY
devanture
Ce site est protégé par reCAPTCHA la Politique de confidentialité et les Conditions d’utilisation de Google s’appliquent.
Obtenir un prêt immobilier au meilleur taux ?

En poursuivant votre navigation sans modifier vos paramètres, vous acceptez l'utilisation de cookies susceptibles de réaliser des statistiques de visite. Cliquez ici pour plus d'informations