Bénéficiez des services de nos partenaires locaux soigneusement sélectionnés
pour vous accompagner dans votre parcours d'achat immobilier

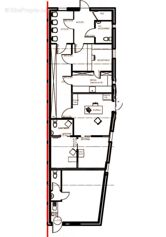
Local professionnel 100 m² + parking privé emplacement exceptionnel.

— Libourne 33500 —
350 000 €
100 m² / 528 m²
8 pièces
jardin

Nos partenaires locaux
Dans le prolongement d'un axe commercial de premier ordre, venez découvrir ce magnifique local entièrement rénové pour investissement ou toutes activités professionnelles. Sur une parcelle de 528 m² avec parking privé et accès facile. Situé sur un axe dynamique cet immeuble propose un bureau composé de deux pièces d'environ 20 m² et d'un local d'environ 80 m² composé de 8 pièces avec salle grande d'attente et sanitaires. L'ensemble adapté aux normes PMR handicapés. Rapport annuel possible 22.000 euros (4.48 % honoraires TTC à la charge de l'acquéreur.)
Voir plus

Référence: 4227
Honoraires d'agence de 4.48% à la charge de l'acquéreur
Barème des honoraires

Prêt immobilier

Vous souhaitez connaître votre capacité d’emprunt et trouver le meilleur crédit immobilier ?
Réaliser une simulation gratuite

Commerce à LIBOURNE
Commerce à LIBOURNE
Commerce à LIBOURNE
Commerce à LIBOURNE
Commerce à LIBOURNE
Commerce à LIBOURNE
Commerce à LIBOURNE
Commerce à LIBOURNE
Commerce à LIBOURNE
Commerce à LIBOURNE
Ce site est protégé par reCAPTCHA la Politique de confidentialité et les Conditions d’utilisation de Google s’appliquent.
Obtenir un prêt immobilier au meilleur taux ?

En poursuivant votre navigation sans modifier vos paramètres, vous acceptez l'utilisation de cookies susceptibles de réaliser des statistiques de visite. Cliquez ici pour plus d'informations