Pomérols, centre historique, maison de village traversante prête à vivre avec grand garage et belle terrasse

— Pomerols 34810 —
265 000 €
102 m²
3 pièces

Mandat Exclusif 101525 à Pomérols, entre Pézenas et le bord de mer, piste cyclable vers Marseillan.
Maison de village traversante prête à vivre avec grand garage et terrasse partiellement couverte.
T3 de 101 m2 surface habitable, calme et lumineux, centre historique du village, proche des commerces et des parkings publics.
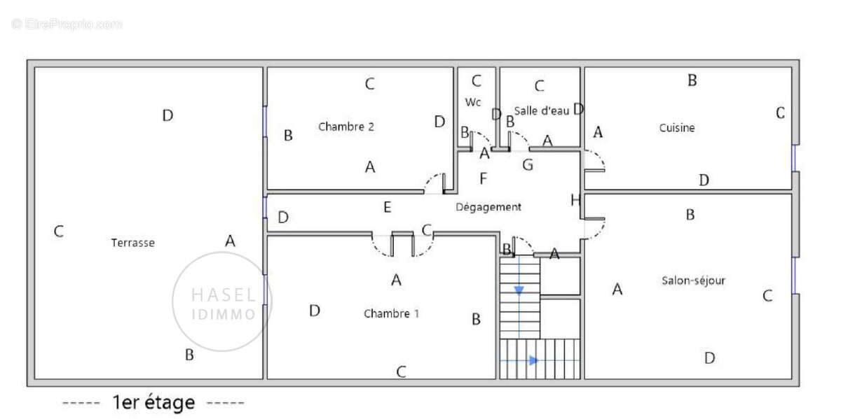
Construite sur 3 niveaux, dont un avec des combles non aménagés. Le garage de 16 m de long et au plus large de 7,7 m permet d’envisager par exemple l’aménagement d’un atelier, avec point d’eau et WC séparé.
Vous trouverez ici suffisamment de place pour garer facilement 2 voitures ainsi que des motos, des vélos et engins de plages avec remorque.
La partie habitable au 1er étage propose deux chambres de 19 et 14 m2 et un généreux salon de 23 m2 décloisonable pour éventuellement intégrer la cuisine de 15 m2.
La terrasse partiellement couverte de 42 m2, à l’abri des regards et à l’opposé de la rue, complète ce niveau.
Maison bien finie, peintures propres et équipement de qualité, chambres et salon climatisés, chaudière gaz, portail électrique télécommandé.
Diagnostiques réalisés en juin 2025, DPE valeur 240 classe D, GES valeur 44 classe D. Visite virtuelle disponible sur demande.
Le prix est de 265 000 € honoraires charge vendeur.
Pour plus d'informations, veuillez contacter Jean-Christoph Hasel (Agent Commercial : 420 192 536 RSAC Béziers) Achetez avisé, vendez valorisé ! - Annonce rédigée et publiée par un Agent Mandataire -
Voir plus

Référence: 101525
Barème des honoraires
DPE
A
B
C
D
E
F
G
GES
A
B
C
D
E
F
G

Prêt immobilier

Vous souhaitez connaître votre capacité d’emprunt et trouver le meilleur crédit immobilier ?
Réaliser une simulation gratuite

Maison à POMEROLS
Maison à POMEROLS
Maison à POMEROLS
Maison à POMEROLS
Maison à POMEROLS
Maison à POMEROLS
Maison à POMEROLS
Maison à POMEROLS
Maison à POMEROLS
Maison à POMEROLS
Maison à POMEROLS
Maison à POMEROLS
Maison à POMEROLS
Maison à POMEROLS
Maison à POMEROLS
Maison à POMEROLS
Maison à POMEROLS
Maison à POMEROLS
Maison à POMEROLS
Maison à POMEROLS
Ce site est protégé par reCAPTCHA la Politique de confidentialité et les Conditions d’utilisation de Google s’appliquent.
Obtenir un prêt immobilier au meilleur taux ?

En poursuivant votre navigation sans modifier vos paramètres, vous acceptez l'utilisation de cookies susceptibles de réaliser des statistiques de visite. Cliquez ici pour plus d'informations