Bénéficiez des services de nos partenaires locaux soigneusement sélectionnés
pour vous accompagner dans votre parcours d'achat immobilier

Bureau jas de bouffan à aix-en-provence (13100)

— Aix-En-Provence 13100 —
171 200 €
81 m²

Nos partenaires locaux
'BUREAU 81 m2 - JAS DE BOUFFAN - 13100 AIX EN PROVENCE'
LISA IMMOBILIER vous propose à la vente en exclusivité ces très beaux bureaux
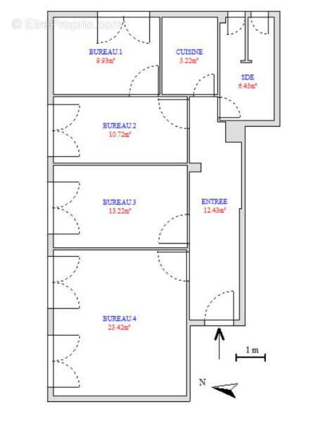
Bureaux 81 m2 Aix-en-Provence avec box en sous-sol - Quartier Ouest - Jas de Bouffan -
Dans un petit immeuble de bureaux et de cabinets médicaux, nous proposons à la vente au 2ème et dernier étage, ces locaux de 81 m2 ( vente des murs ) utilisés en bureaux. Composés d'une grande entrée, de 4 bureaux ( 3 de taille moyenne et 1 grand ), d'une cuisine et d'un espace sanitaire avec 2 WC. Les cloisons sont faciles à déplacer. Locaux lumineux, double exposition.
Grandes baies vitrées, volets roulants, chauffage central. DPE vierge ( consommation non exploitable ). Copropriété de 12 lots. Charges de 210 €/mois comprenant le chauffage . Un box garage fermé en sous-sol complète ce bien et est compris dans le prix.
Prix : 171 200 EUR Honoraires inclus 'charge vendeur'
Les informations sur les risques auxquels ce bien est exposé sont disponibles sur le site Géorisques : georisques.gouv.fr Surface.
A propos de la copropriété : Pas de procédure en cours
'LISA IMMOBILIER'
Voir plus

Barème des honoraires

Prêt immobilier

Vous souhaitez connaître votre capacité d’emprunt et trouver le meilleur crédit immobilier ?
Réaliser une simulation gratuite

Commerce à AIX-EN-PROVENCE
Commerce à AIX-EN-PROVENCE
Commerce à AIX-EN-PROVENCE
Commerce à AIX-EN-PROVENCE
Commerce à AIX-EN-PROVENCE
Commerce à AIX-EN-PROVENCE
Commerce à AIX-EN-PROVENCE
Ce site est protégé par reCAPTCHA la Politique de confidentialité et les Conditions d’utilisation de Google s’appliquent.
Obtenir un prêt immobilier au meilleur taux ?

En poursuivant votre navigation sans modifier vos paramètres, vous acceptez l'utilisation de cookies susceptibles de réaliser des statistiques de visite. Cliquez ici pour plus d'informations