Bénéficiez des services de nos partenaires locaux soigneusement sélectionnés
pour vous accompagner dans votre parcours d'achat immobilier

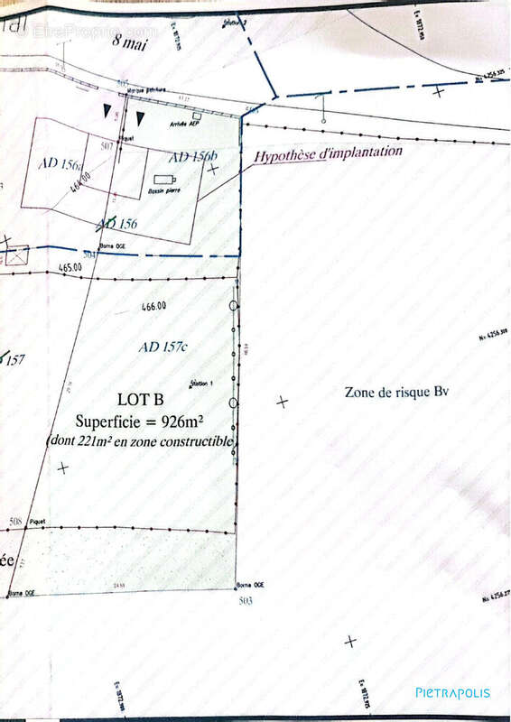
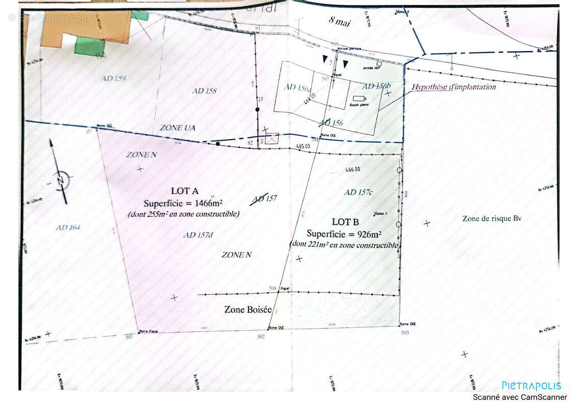
Terrain 926m² à chatonnay

— Chatonnay 38440 —
88 000 €
926 m²

Nos partenaires locaux
Vu pour vous en plein coeur du village de Chatonnay , proche de toutes commodités, superbe terrain à bâtir d'une superficie de 926 m2

En partenariat avec SAFIR CONSTRUCTEUR, nous vous proposons une maison de Plain-pied de 73m2 comportant :
=) Un garage
=) Une spacieuse pièce à vivre lumineuse et fonctionnelle
=) 2 chambres
=) Une Salle de douche
=) Wc
=) Cellier
=) Modulable selon vos envies et besoins
=) Maison à étage possible

Points complémentaires:
=) Au calme
=) Vue campagne et forêt
=) Hors lotissement
=) 221m2 en zone UA
=) Plat sur toute la zone constructible
=) Belle exposition


BUDGET GLOBAL ( MAISON + TERRAIN ) : 235 000 EUROS !!!!!

Honoraires d'agence à la charge du vendeur

Contacter Broizat Angeline (Agent commercial immobilier, RSAC N° 531229037), au [Coordonnées masquées] ou [Coordonnées masquées]


Les informations sur les risques auxquels ce bien est exposé sont disponibles sur le site Géorisques :?www.georisques.gouv.fr.



Honoraires à la charge du vendeur. Les informations sur les risques auxquels ce bien est exposé sont disponibles sur le site Géorisques : georisques.gouv.fr.

Votre conseiller Pietrapolis Vienne : Angéline BROIZAT
Agent commercial (Entreprise individuelle)
RSAC 531229037
RCP ACI04771
Voir plus

Référence: 294-PIETRAPOLIS
Honoraires à la charge du vendeur.
Barème des honoraires

Prêt immobilier

Vous souhaitez connaître votre capacité d’emprunt et trouver le meilleur crédit immobilier ?
Réaliser une simulation gratuite

Terrain à CHATONNAY
Terrain à CHATONNAY
Terrain à CHATONNAY
Terrain à CHATONNAY
Terrain à CHATONNAY
Terrain à CHATONNAY
Terrain à CHATONNAY
Ce site est protégé par reCAPTCHA la Politique de confidentialité et les Conditions d’utilisation de Google s’appliquent.
Obtenir un prêt immobilier au meilleur taux ?

En poursuivant votre navigation sans modifier vos paramètres, vous acceptez l'utilisation de cookies susceptibles de réaliser des statistiques de visite. Cliquez ici pour plus d'informations