Bénéficiez des services de nos partenaires locaux soigneusement sélectionnés
pour vous accompagner dans votre parcours d'achat immobilier

Proche cannes/la-roquette-sur-siagne - 5p duplex 98 m2 neuf dernier etage avec des grandes terasses

— La Roquette-Sur-Siagne 06550 —
655 000 €
98 m²
5 pièces
parkingbalcon/terrasseascenseuraccès handicapé

Nos partenaires locaux
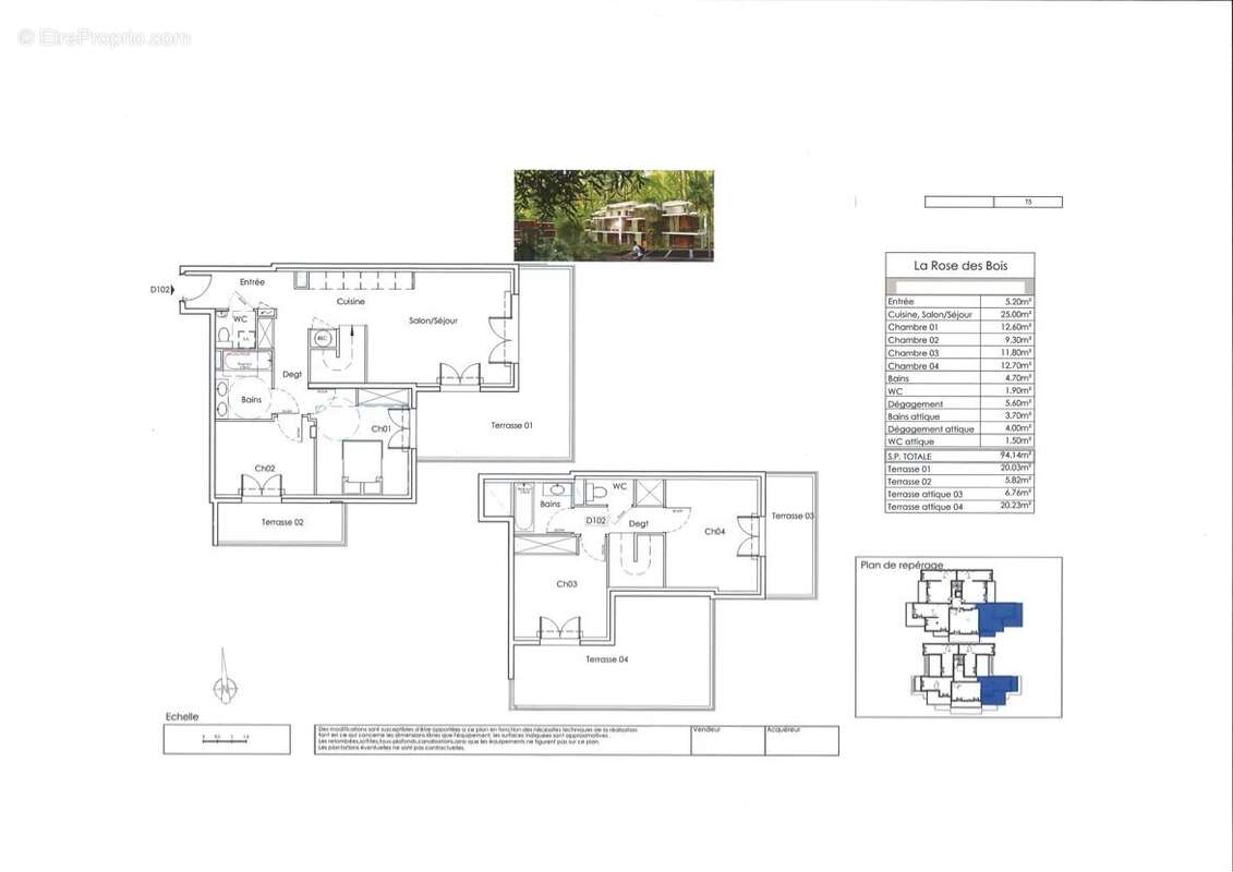
Dans une cadre intimiste, résidence neuve, sécurisée, et élégante nichée dans la nature provençale. Très beau 5 pièces en duplex et dernier étage, prestations haut de gamme, proche des commodités et des accès routiers, orienté sud.

Ce duplex neuf de 98 m2 est agrémenté par 4 magnifiques terrasses. Dans un bâtiment de standing sur 3 niveaux seulement, son agencement optimisé propose une entrée de 5,20 m2, un grand séjour/cuisine de 25 m2 ouvrant sur une grande terrasse de 20 m2. Sa cuisine ouverte est meublée et équipée. Au même étage, on trouve 2 chambres de 12.60 m2 et 9.30 m2 avec 1 autre terrasse de 5.82 m2, 1 salle de bain de 4.70 m2 et 1 WC de 1.90 m2.
Au milieu, un bel escalier monte vers le dernier étage attique. Celui-ci est composé d'une master room de 12,70 m2 ouvrant sur une splendide terrasse au dernière étage de 20,23 m2. On y trouve également 1 salle de bain attique de 4.70 m2 plus 1 wc indépendant ainsi qu'une deuxième chambre de 11,80 m2 avec sa terrasse privée de 6.76 m2.

Ses finitions de qualités incluent notamment la climatisation réversible, les volets roulants centralisés ou le parquet dans les chambres. La résidence est bien sûr sécurisée. Visiophone, porte blindée et coffre fort sont aussi présents dans tous les appartements. A l'extérieur, vous pourrez profiter de son environnement très agréables composé de jardins et entouré de nature. Le programme d'une dizaine d'appartements se trouvent en position dominante sur une colline boisée. 2 places de parking extérieurs sont également comprises. Sa localisation stratégique le place à proximité immédiate des commodités: à 3 minutes d'une école primaire, à 5 minutes des commerces, du village provençale et des axes autoroutiers, à 15 minutes des plages et du golf, et à 25 minutes de l'aéroport. Disponible en Septembre 2026, cet appartement convient aussi bien à une résidence principale qu'à une résidence secondaire.
Avec un prix attractif de 655 000 € HAI et des prestations soignées, il représente une opportunité idéale pour allier "Dolce Vita" et investissement pérenne.

Label Haute Qualité Environnementale.
Photos et images non contractuelles.
Livraison prévue 3ème trimestre 2026.
Faibles Frais de Notaire.
Eligible au taux zéro.
Eligible Exonérations supplémentaires dons familiaux selon la loi de finances pour 2025.
Voir plus

Référence: 86095262

Prêt immobilier

Vous souhaitez connaître votre capacité d’emprunt et trouver le meilleur crédit immobilier ?
Réaliser une simulation gratuite

Appartement à LA ROQUETTE-SUR-SIAGNE
Appartement à LA ROQUETTE-SUR-SIAGNE
Appartement à LA ROQUETTE-SUR-SIAGNE
Appartement à LA ROQUETTE-SUR-SIAGNE
Appartement à LA ROQUETTE-SUR-SIAGNE
Appartement à LA ROQUETTE-SUR-SIAGNE
Ce site est protégé par reCAPTCHA la Politique de confidentialité et les Conditions d’utilisation de Google s’appliquent.
Obtenir un prêt immobilier au meilleur taux ?

En poursuivant votre navigation sans modifier vos paramètres, vous acceptez l'utilisation de cookies susceptibles de réaliser des statistiques de visite. Cliquez ici pour plus d'informations