Bénéficiez des services de nos partenaires locaux soigneusement sélectionnés
pour vous accompagner dans votre parcours d'achat immobilier

Decines - maison de charme – 261 m² habitables – terrain de 681 m²

— Decines-Charpieu 69150 —
620 000 €
261 m²
13 pièces
parking

Nos partenaires locaux
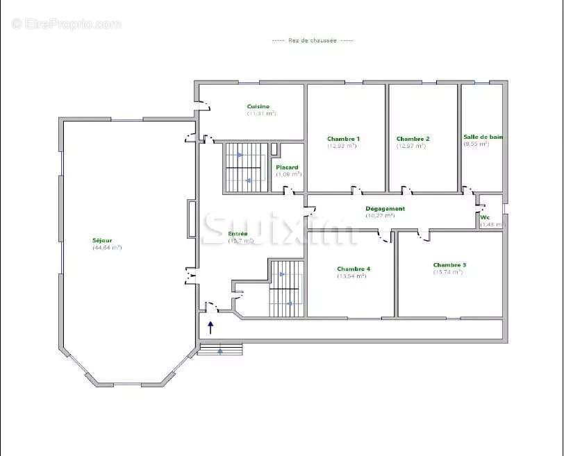
Réf : 1271AS / DECINES - CHAMP BLANC - Située dans un secteur prisé, à deux pas des commodités et transports, cette maison de caractère offre environ 261 m² habitables sur 3 niveaux, avec terrain clos et sécurisé de 681 m².
Elle se compose de 2 logements indépendants (actuellement configurés en appartements), offrant de nombreuses possibilités d’aménagement : résidence principale, projet locatif ou activité professionnelle.
Rez-de-chaussée : Lumineux séjour, cuisine semi-équipée ouverte sur balcon, 4 chambres, salle de bains, balcon filant.
Étage : espace de vie avec poutres apparentes et cheminée, cuisine, bureau, grande chambre, dressing, salle d’eau avec buanderie.
Sous-sol complet : grande pièce de 49,76 m², cave à vin, atelier, salle d’eau, garage de 90 m².
Combles aménageables selon vos projets.
Charpente bois type château, beaux volumes, cachet de l’ancien et fort potentiel.
Une opportunité rare à découvrir rapidement ! Agent commercial indépendant Swixim sur votre secteur : [Coordonnées masquées] Honoraires à la charge du vendeur - Montant estimé des dépenses annuelles d'énergie pour un usage standard, établi à partir des prix de l'énergie de l'année 2021 : 4742€ ~ 6417€
Voir plus

Référence: 1271AS
DPE
A
B
C
D
E
F
G
GES
A
B
C
D
E
F
G
Maison à DECINES-CHARPIEU
Maison à DECINES-CHARPIEU
Maison à DECINES-CHARPIEU
Maison à DECINES-CHARPIEU
Maison à DECINES-CHARPIEU
Maison à DECINES-CHARPIEU
Maison à DECINES-CHARPIEU
Maison à DECINES-CHARPIEU
Maison à DECINES-CHARPIEU
Maison à DECINES-CHARPIEU
Maison à DECINES-CHARPIEU
Maison à DECINES-CHARPIEU
Maison à DECINES-CHARPIEU
Maison à DECINES-CHARPIEU
Maison à DECINES-CHARPIEU
Maison à DECINES-CHARPIEU
Maison à DECINES-CHARPIEU
Maison à DECINES-CHARPIEU
Maison à DECINES-CHARPIEU
Maison à DECINES-CHARPIEU
Maison à DECINES-CHARPIEU
Maison à DECINES-CHARPIEU
Maison à DECINES-CHARPIEU
Géorisques

Les informations sur les risques auxquels ce bien est exposé sont disponibles sur le site Géorisques : www.georisques.gouv.fr

Ce site est protégé par hCaptcha Politique de confidentialité et Conditions d’utilisation s’appliquent.

En poursuivant votre navigation sans modifier vos paramètres, vous acceptez l'utilisation de cookies susceptibles de réaliser des statistiques de visite. Cliquez ici pour plus d'informations