Bénéficiez des services de nos partenaires locaux soigneusement sélectionnés
pour vous accompagner dans votre parcours d'achat immobilier

Appartement 84m² à levallois-perret

— Levallois-Perret 92300 —
940 000 €
85 m² / 11 m²
4 pièces
parkingbalcon/terrasseascenseur

Nos partenaires locaux
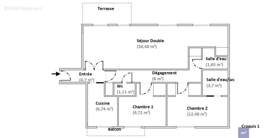
Levallois, Avenue Georges Pompidou, à vendre au 6ème étage avec ascenseur d'un immeuble récent de 1991 très bien entretenu, un appartement de 84.58 m² avec une vraie terrasse de 10.60m² + un balcon. L' appartement est traversant, terrasse côté séjour, et vue dégagée sur Seine grâce au balcon, côté chambres et cuisine.
L'appartement se décompose comme suit : une entrée, un double séjour de 36.48 m²(possibilité 3ème chambre), une cuisine aménagée et équipée (four , four vapeur, hotte, plaque de cuisson), un dégagement pour aller aux 2 chambres, une chambre parentale avec sa salle de bains et un wc, une seconde salle d'eau, un wc séparé, un dégagement avec placard de rangements.
En annexe une cave et deux places de stationnement au sous-sol, accès direct par ascenseur de l'immeuble.
Le métro est à deux pas, ainsi que les commerces et écoles.
De surcroît, accès facile pour quitter Levallois en voiture.

Siège social 140 bis rue de Rennes 75006 Paris Les informations sur les risques auxquels ce bien est exposé sont disponibles sur le site Géorisques : www.georisques.gouv.fr
Voir plus

Référence: M2CI973
Honoraires à la charge du vendeur.
Barème des honoraires
DPE
A
B
C
D
E
F
G
GES
A
B
C
D
E
F
G

Prêt immobilier

Vous souhaitez connaître votre capacité d’emprunt et trouver le meilleur crédit immobilier ?
Réaliser une simulation gratuite

Appartement à LEVALLOIS-PERRET
Appartement à LEVALLOIS-PERRET
Appartement à LEVALLOIS-PERRET
Appartement à LEVALLOIS-PERRET
Appartement à LEVALLOIS-PERRET
Appartement à LEVALLOIS-PERRET
Appartement à LEVALLOIS-PERRET
Appartement à LEVALLOIS-PERRET
Appartement à LEVALLOIS-PERRET
Ce site est protégé par reCAPTCHA la Politique de confidentialité et les Conditions d’utilisation de Google s’appliquent.
Obtenir un prêt immobilier au meilleur taux ?

En poursuivant votre navigation sans modifier vos paramètres, vous acceptez l'utilisation de cookies susceptibles de réaliser des statistiques de visite. Cliquez ici pour plus d'informations