Bénéficiez des services de nos partenaires locaux soigneusement sélectionnés
pour vous accompagner dans votre parcours d'achat immobilier

Maison proche nogent le roi

— Nogent-Le-Roi 28210 —
219 000 €
115 m² / 1 197 m²
6 pièces
jardin

Nos partenaires locaux
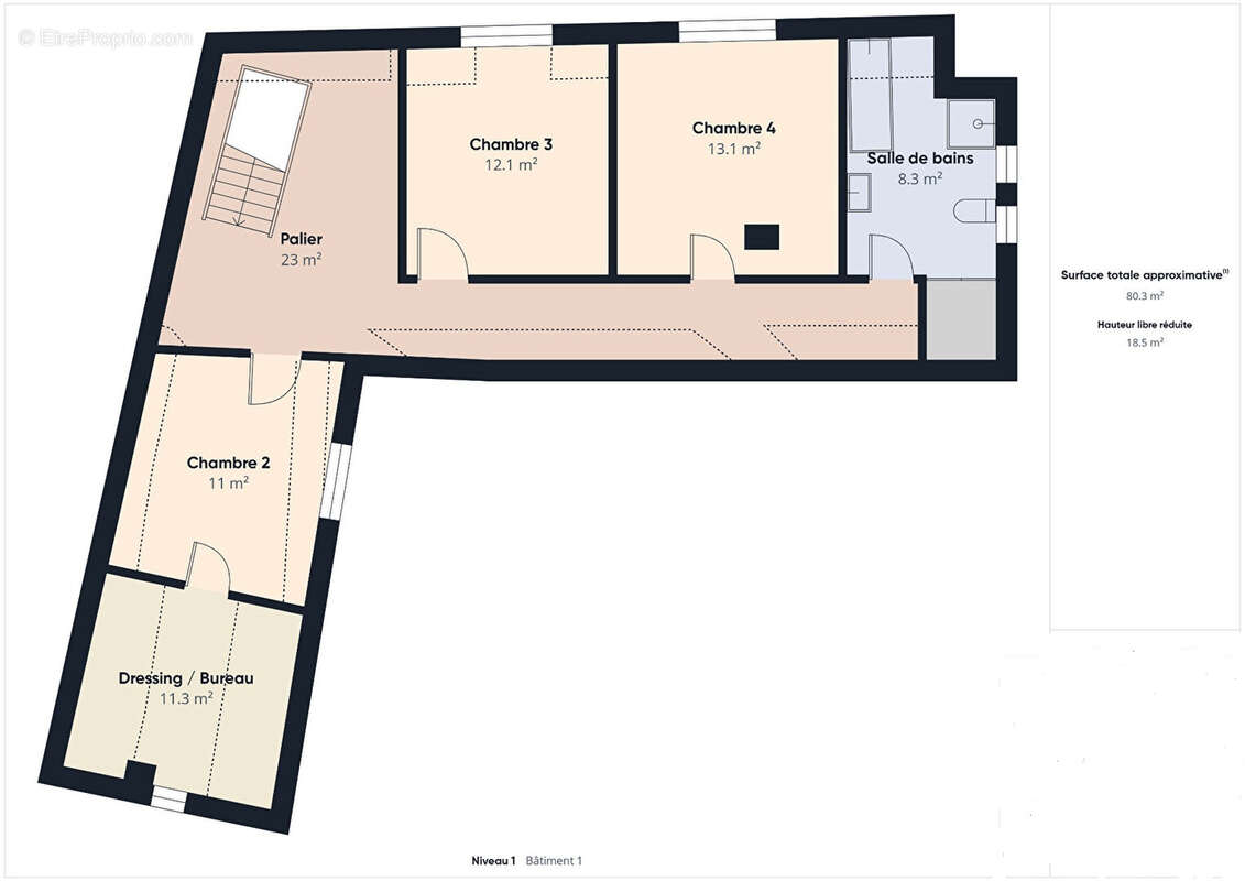
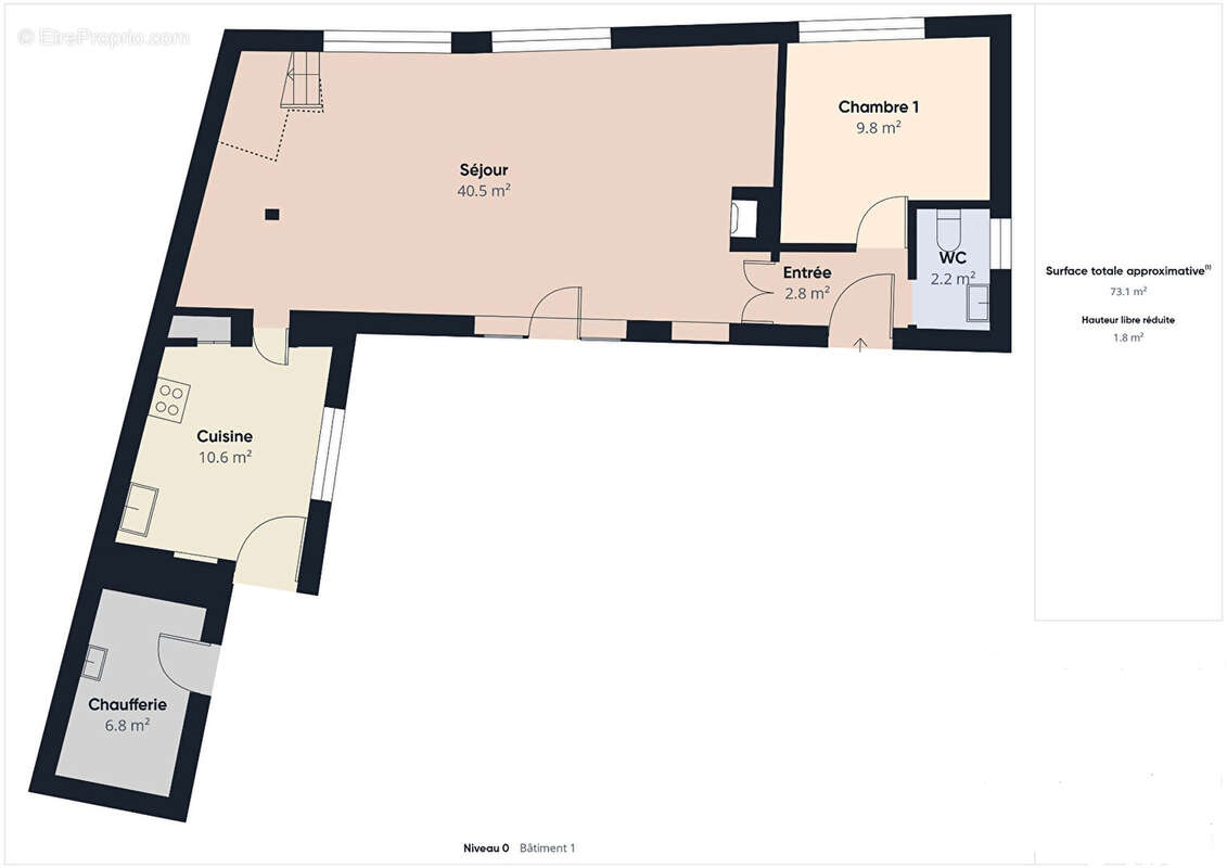
L'agence HANCHES IMMOBILIER vous propose en EXCLUSIVITÉ : Située à seulement quelques minutes de Nogent-le-Roi et proche de toutes commodités, découvrez cette ancienne étable des années 1900, pleine de charme et nichée dans un environnement calme et verdoyant. Édifiée sur un terrain d'environ 1 100 m², cette maison authentique offre un fort potentiel d'aménagement pour les amoureux de l'ancien. Au rez-de-chaussée, vous trouverez une entrée, un séjour chaleureux avec cheminée à foyer ouvert, une cuisine aménagée, une chambre, un WC indépendant et une chaufferie. A l'étage, un palier avec rangements dessert trois chambres, un bureau/ dressing, ainsi qu'une salle de bains avec douche et WC. Un appentis et un atelier complètent l'ensemble. Cette bâtisse authentique saura séduire les amateurs authenticité, de volumes et de tranquillité. Un lieu unique, idéal en résidence principale ou secondaire. - Travaux à prévoir Barème d'honoraires consultable sur demande Contactez-nous pour en savoir plus ou planifier une visite. (5.29 % honoraires TTC à la charge de l'acquéreur.)
Voir plus

Honoraires d'agence de 5.29% à la charge de l'acquéreur
Barème des honoraires
DPE
A
B
C
D
E
F
G
GES
A
B
C
D
E
F
G

Prêt immobilier

Vous souhaitez connaître votre capacité d’emprunt et trouver le meilleur crédit immobilier ?
Réaliser une simulation gratuite

Maison à NOGENT-LE-ROI
Maison à NOGENT-LE-ROI
Maison à NOGENT-LE-ROI
Maison à NOGENT-LE-ROI
Maison à NOGENT-LE-ROI
Maison à NOGENT-LE-ROI
Maison à NOGENT-LE-ROI
Maison à NOGENT-LE-ROI
Maison à NOGENT-LE-ROI
Maison à NOGENT-LE-ROI
Maison à NOGENT-LE-ROI
Maison à NOGENT-LE-ROI
Maison à NOGENT-LE-ROI
Maison à NOGENT-LE-ROI
Maison à NOGENT-LE-ROI
Maison à NOGENT-LE-ROI
Maison à NOGENT-LE-ROI
Ce site est protégé par reCAPTCHA la Politique de confidentialité et les Conditions d’utilisation de Google s’appliquent.
Obtenir un prêt immobilier au meilleur taux ?

En poursuivant votre navigation sans modifier vos paramètres, vous acceptez l'utilisation de cookies susceptibles de réaliser des statistiques de visite. Cliquez ici pour plus d'informations