Bénéficiez des services de nos partenaires locaux soigneusement sélectionnés
pour vous accompagner dans votre parcours d'achat immobilier

Urgent appartement type 3 pièces 67 m²

— Toulouse 31300 —
279 000 €
67 m²
3 pièces
parkingbalcon/terrasseascenseur

Nos partenaires locaux
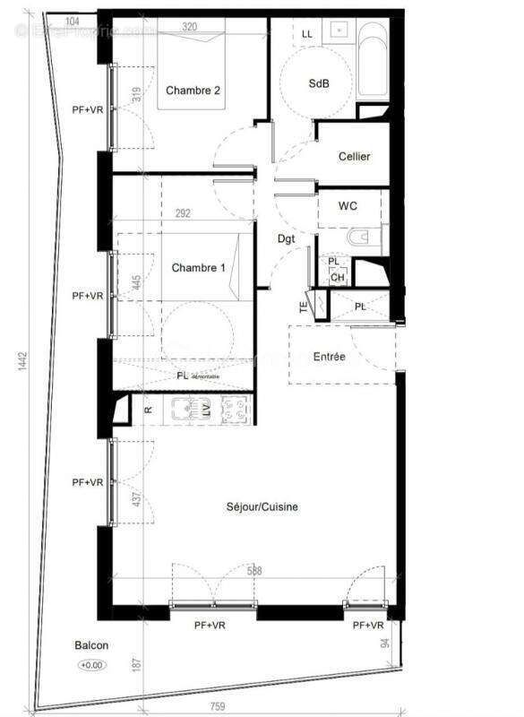
Urgent Face à l'île du Ramier, je vous propose un appartement 3 pièces de 67 m² avec terrasse dans la résidence Terre de Garonne.
Le bien est composé d'une entrée, de deux belle chambres, d'une salle de bain, d'un cellier et de son séjour cuisine.
Ainsi qu'une place de parking en sous sol.

Face à l'île du Ramier, super poumon vert et pôle sportif, vous trouverez à moins de 20 minutes* à pied le stadium, la piscine Alfred Nakache, un terrain de tennis, et même une aire de jeu pour les plus petits, de quoi profiter pleinement de sa vie de famille. Cette réalisation s'inscrit incontestablement dans le paysage aéré et verdoyant du quartier résidentiel Croix de Pierre.

Au quotidien, vous bénéficiez d'une proximité immédiate avec l'artère commerçante, des restaurants, ainsi que l'excellente desserte en transport en commun : 3 lignes de bus en pied d'immeuble, lignes 1 et 2 du tramway à 5 minutes* à pied, le métro Mermoz (ligne A) qui se trouve à seulement 900m et des stations de vélos. Grâce au cœur d'ilot étiré jusqu'à la Garonne, vous êtes directement connectés au réseau cyclable de toute la métropole. Enfin, vous trouverez à moins de 5 minutes à pied une crèche, une école, un collège et un lycée.

A moins de 10 minutes en vélo de l'hypercentre de Toulouse
Proche de tous les commerces et transports
Beaux espaces extérieurs
De superbes vues sur la Garonne
Architecture élégante
A proximité des établissements scolaires

Cette annonce référence 294650 vous est présentée par votre agent commercial BSK Immobilier CYRIL HERITIER (EI) immatriculé au RSAC de TOULOUSE (31000) sous le numéro 89538904700013.

Prix du bien : 279 000,00 €
Les honoraires d'agence sont à la charge du vendeur.

A propos de la copropriété :
Pas de procédure en cours.
Nombre de lots : 2
Charges prévisionnelles annuelles : 100,00 €

A propos des performances énergétiques :
Date de réalisation du diagnostic énergétique : 07/10/2024
Score DPE : 55 kWhEP/m²/an
Score GES : 11 kgepCO2/m²/an
Montant estimé des dépenses annuelles d'énergie pour un usage standard : entre 421.00 € et 570.00 € par an. Prix moyens des énergies indexés sur l'année 2024 (abonnements compris).

Les informations sur les risques auxquels ce bien est exposé sont disponibles sur le site Géorisques : www.georisques.gouv.fr
Voir plus

Référence: 294650
Bien en copropriété. Nombre de lots : 2. Charges de copropriété : 8 €.
Honoraires à la charge du vendeur.
DPE
A
B
C
D
E
F
G
GES
A
B
C
D
E
F
G

Prêt immobilier

Vous souhaitez connaître votre capacité d’emprunt et trouver le meilleur crédit immobilier ?
Réaliser une simulation gratuite

Appartement à TOULOUSE
Appartement à TOULOUSE
Appartement à TOULOUSE
Appartement à TOULOUSE
Appartement à TOULOUSE
Appartement à TOULOUSE
Appartement à TOULOUSE
Appartement à TOULOUSE
Appartement à TOULOUSE
Appartement à TOULOUSE
Appartement à TOULOUSE
Appartement à TOULOUSE
Appartement à TOULOUSE
Appartement à TOULOUSE
Ce site est protégé par reCAPTCHA la Politique de confidentialité et les Conditions d’utilisation de Google s’appliquent.
Obtenir un prêt immobilier au meilleur taux ?

En poursuivant votre navigation sans modifier vos paramètres, vous acceptez l'utilisation de cookies susceptibles de réaliser des statistiques de visite. Cliquez ici pour plus d'informations