Bénéficiez des services de nos partenaires locaux soigneusement sélectionnés
pour vous accompagner dans votre parcours d'achat immobilier

Dinard - duplex t4 de 88 m2 orienté sud-ouest. 15mn à pied de la plage du prieuré.

— Dinard 35800 —
496 000 €
89 m²
4 pièces
parkingbalcon/terrasse

Nos partenaires locaux
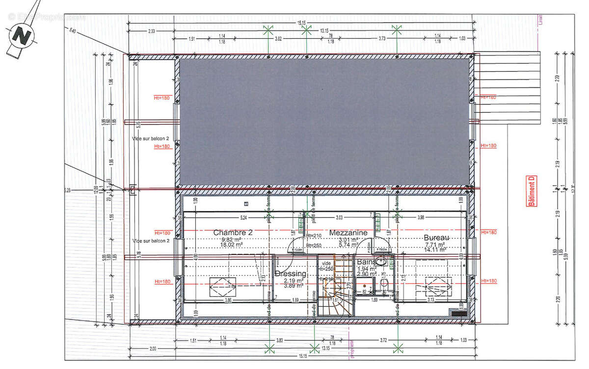
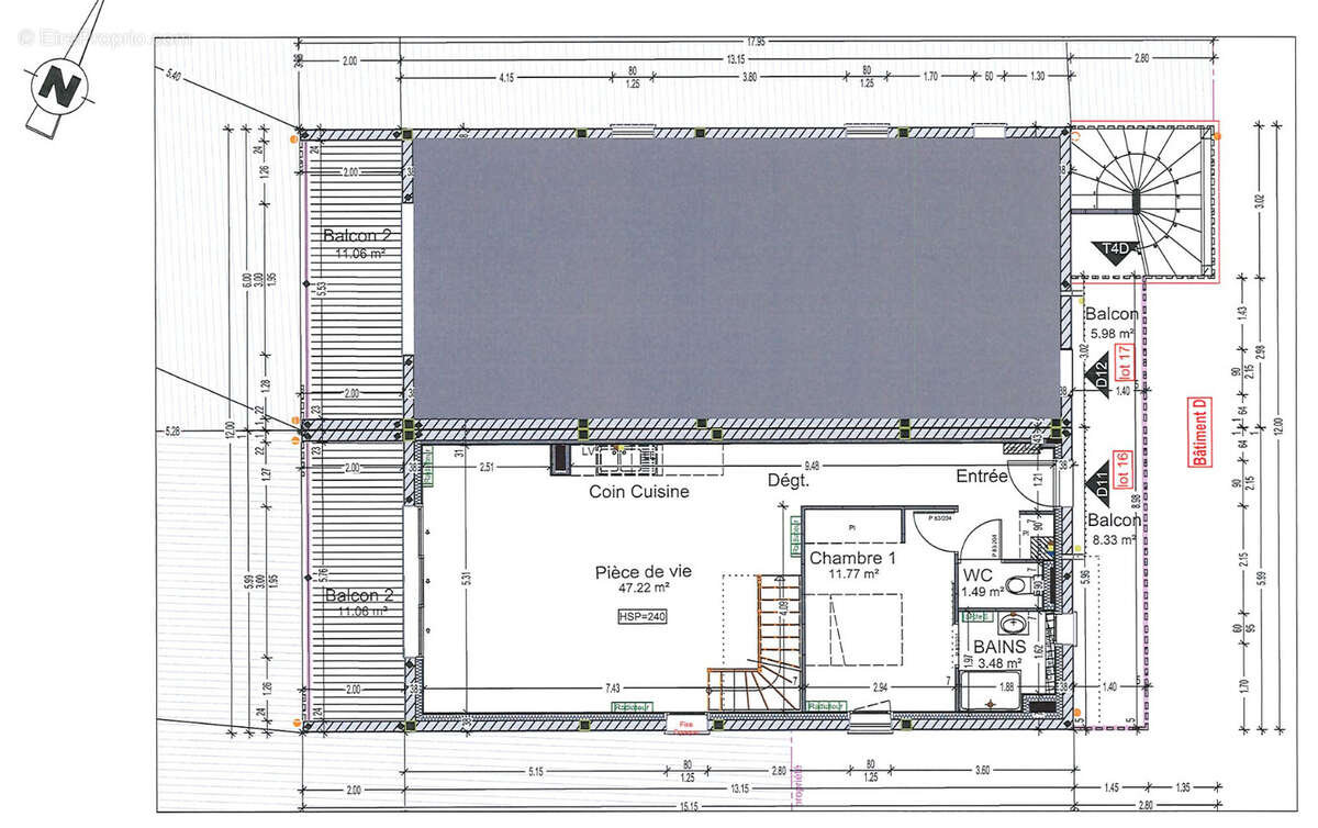
Situé dans la station balnéaire de Dinard, REGM Côte d'Emeraude Sophie Bouquerel, Tel : [Coordonnées masquées] vous propose ce duplex neuf, situé au calme dans une petite copropriété à 15 mn à pied de la plage du Prieuré et des commodités. D'une superficie de 88.63 m2 habitable et de 108.62m2 de surface au sol, le premier niveau du bien, comprend une entrée, une chambre avec salle de bain privative et des toilettes séparées et une pièce de vie de 47m2 avec cuisine, orientée Sud-Ouest, prolongée par un balcon de 11 m2 offrant une agréable vue sur un jardin arboré pour profiter des couchers de soleil. À l’étage : une vaste chambre de 18 m2 avec dressing, une autre de 14 m2 avec salle de bain et WC, ainsi qu’une mezzanine de plus de 5 m2, idéale pour y aménager un espace bureau. A l'extérieur : une place de parking privative avec branchement pour véhicule électrique et un cellier/local vélo individuel sécurisé de 8,45 m2. Etude de potentiel locatif sur demande. Une belle opportunité préparer sereinement votre futur projet immobilier à Dinard. - Appartement livré et disponible de suite -.
Cette annonce vous est proposée par BOUQUEREL Sophie - EI - NoRSAC: no 501 454 458, Enregistré à Greffe du tribunal de commerce de Saint-Malo - Annonce rédigée et publiée par un Agent Mandataire -
Voir plus

Référence: 6708
Bien en copropriété.
Honoraires d'agence de 4.42% à la charge de l'acquéreur
Barème des honoraires

Prêt immobilier

Vous souhaitez connaître votre capacité d’emprunt et trouver le meilleur crédit immobilier ?
Réaliser une simulation gratuite

Appartement à DINARD
Appartement à DINARD
Appartement à DINARD
Appartement à DINARD
Appartement à DINARD
Appartement à DINARD
Appartement à DINARD
Appartement à DINARD
Appartement à DINARD
Appartement à DINARD
Ce site est protégé par reCAPTCHA la Politique de confidentialité et les Conditions d’utilisation de Google s’appliquent.
Obtenir un prêt immobilier au meilleur taux ?

En poursuivant votre navigation sans modifier vos paramètres, vous acceptez l'utilisation de cookies susceptibles de réaliser des statistiques de visite. Cliquez ici pour plus d'informations