Maison 153m2

— Doullens 80600 —
210 000 €
153 m² / 2 855 m²
7 pièces
parkingbalcon/terrassejardin

Votre agence immobilière Reflex en s'Home de Doullens vous propose à la vente cette très belle maison de 153m2 habitable, idéalement située dans un superbe environnement au calme sans vis-à-vis au beau milieu de la campagne Doullennaise
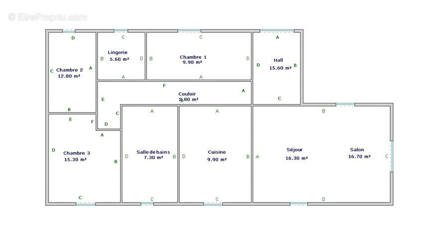
Elle se compose d'une entrée desservant son espace de vie avec son/séjour et cuisine meublée et équipée, d'un espace buanderie, salle de bains et trois chambres dont une avec sa salle d'eau
A l'étage, un palier vous desservira deux chambres dont une avec un point d'eau à terminer et un bureau.
Pour la partie extérieure vous serez charmé par son environnement arboré et totalement clos de plus de 2500m2, sa terrasse avec pergola ainsi qu'un espace avec bassin et sa vue totale sur la campagne.
Situé à 3 min de Doullens et desservi par les transports scolaires.
LENOBLE Anne-Hélène, agent commercial inscrit au RSAC de ARRAS sous le numéro 880 446 679.
Voir plus

Référence: RD1141
Honoraires d'agence de 5% à la charge de l'acquéreur
Barème des honoraires
DPE
A
B
C
D
E
F
G
GES
A
B
C
D
E
F
G

Prêt immobilier

Vous souhaitez connaître votre capacité d’emprunt et trouver le meilleur crédit immobilier ?
Réaliser une simulation gratuite

Maison à DOULLENS
Maison à DOULLENS
Maison à DOULLENS
Maison à DOULLENS
Maison à DOULLENS
Maison à DOULLENS
Maison à DOULLENS
Maison à DOULLENS
Maison à DOULLENS
Maison à DOULLENS
Maison à DOULLENS
Maison à DOULLENS
Maison à DOULLENS
Maison à DOULLENS
Maison à DOULLENS
Maison à DOULLENS
Maison à DOULLENS
Ce site est protégé par reCAPTCHA la Politique de confidentialité et les Conditions d’utilisation de Google s’appliquent.
Obtenir un prêt immobilier au meilleur taux ?

En poursuivant votre navigation sans modifier vos paramètres, vous acceptez l'utilisation de cookies susceptibles de réaliser des statistiques de visite. Cliquez ici pour plus d'informations