Bénéficiez des services de nos partenaires locaux soigneusement sélectionnés
pour vous accompagner dans votre parcours d'achat immobilier

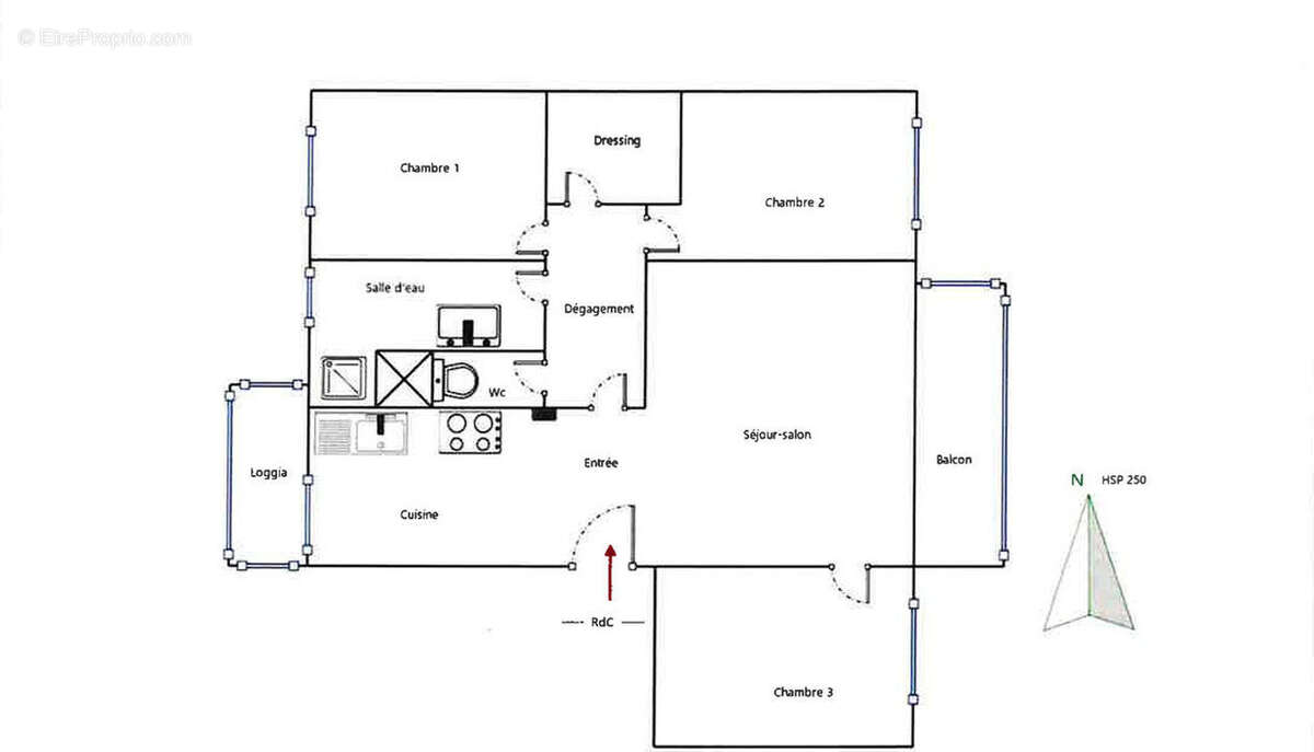
Appartement 72m² à marseille-13e

— Marseille-13e 13013 —
159 000 €
72 m²
4 pièces
balcon/terrasseascenseur

Nos partenaires locaux
Venez découvrir ce superbe T4 de 72 m², situé sur le secteur des Olives, en rez-de-chaussée surélevé sur 9 avec ascenseur, dans une résidence calme et sécurisée.



Ce bien a été entièrement rénové avec goût, vous n'aurez aucun travaux à prévoir !



Dès l'entrée, vous serez séduit par un séjour lumineux de 17,60 m², ouvrant sur une loggia fermée d'environ 3,6 m², exposée Sud-Est, idéale pour profiter de la lumière naturelle tout au long de la journée.



La cuisine semi-équipée de 6 m² bénéficie également de sa propre loggia fermée de 3,2 m².



Vous disposerez de trois chambres, d'un dressing, d'une salle d'eau moderne et de WC séparés.



Une cave en sous sol vient compléter ce bien.



Le stationnement libre dans la résidence constitue un véritable atout au quotidien.



Situé à proximité immédiate des écoles, commerces, transports en commun et des principaux axes routiers, ce bien réunit confort, luminosité et praticité..(EC)

A visiter rapidement, contactez-nous pour organiser une visite Estelle CHAUMERY : CLAIRIMMO Chateau Gombert - 13 rue Centrale 13013 CHATEAU GOMBERT -Tél : [Coordonnées masquées] email : [Coordonnées masquées] RCS 851 986 620 Agent commercial indépendant du réseau national Clairimmo N° RSAC : 980 610 133
Les informations sur les risques auxquels ce bien est exposé sont disponibles sur le site Géorisques : www.georisques.gouv.fr
Voir plus

Référence: 11658CH1303
Bien en copropriété. Nombre de lots : 300. Charges de copropriété : 3780 €.
Honoraires à la charge du vendeur.
DPE
A
B
C
D
E
F
G
GES
A
B
C
D
E
F
G

Prêt immobilier

Vous souhaitez connaître votre capacité d’emprunt et trouver le meilleur crédit immobilier ?
Réaliser une simulation gratuite

T4 DE 73m2 + LOGGIA  / LES OLIVES - Appartement à MARSEILLE-13E
T4 DE 73m2 + LOGGIA / LES OLIVES
T4 DE 73m2 + LOGGIA  / LES OLIVES - Appartement à MARSEILLE-13E
T4 DE 73m2 + LOGGIA / LES OLIVES
T4 DE 73m2 + LOGGIA  / LES OLIVES - Appartement à MARSEILLE-13E
T4 DE 73m2 + LOGGIA / LES OLIVES
T4 DE 73m2 + LOGGIA  / LES OLIVES - Appartement à MARSEILLE-13E
T4 DE 73m2 + LOGGIA / LES OLIVES
Appartement à MARSEILLE-13E
T4 DE 73m2 + LOGGIA  / LES OLIVES - Appartement à MARSEILLE-13E
T4 DE 73m2 + LOGGIA / LES OLIVES
T4 DE 73m2 + LOGGIA  / LES OLIVES - Appartement à MARSEILLE-13E
T4 DE 73m2 + LOGGIA / LES OLIVES
T4 DE 73m2 + LOGGIA  / LES OLIVES - Appartement à MARSEILLE-13E
T4 DE 73m2 + LOGGIA / LES OLIVES
Appartement à MARSEILLE-13E
T4 DE 73m2 + LOGGIA  / LES OLIVES - Appartement à MARSEILLE-13E
T4 DE 73m2 + LOGGIA / LES OLIVES
T4 DE 73m2 + LOGGIA  / LES OLIVES - Appartement à MARSEILLE-13E
T4 DE 73m2 + LOGGIA / LES OLIVES
T4 DE 73m2 + LOGGIA  / LES OLIVES - Appartement à MARSEILLE-13E
T4 DE 73m2 + LOGGIA / LES OLIVES
T4 DE 73m2 + LOGGIA  / LES OLIVES - Appartement à MARSEILLE-13E
T4 DE 73m2 + LOGGIA / LES OLIVES
Appartement à MARSEILLE-13E
T4 DE 73m2 + LOGGIA  / LES OLIVES - Appartement à MARSEILLE-13E
T4 DE 73m2 + LOGGIA / LES OLIVES
T4 DE 73m2 + LOGGIA  / LES OLIVES - Appartement à MARSEILLE-13E
T4 DE 73m2 + LOGGIA / LES OLIVES
T4 DE 73m2 + LOGGIA  / LES OLIVES - Appartement à MARSEILLE-13E
T4 DE 73m2 + LOGGIA / LES OLIVES
Appartement à MARSEILLE-13E
T4 DE 73m2 + LOGGIA  / LES OLIVES - Appartement à MARSEILLE-13E
T4 DE 73m2 + LOGGIA / LES OLIVES
T4 DE 73m2 + LOGGIA  / LES OLIVES - Appartement à MARSEILLE-13E
T4 DE 73m2 + LOGGIA / LES OLIVES
T4 DE 73m2 + LOGGIA  / LES OLIVES - Appartement à MARSEILLE-13E
T4 DE 73m2 + LOGGIA / LES OLIVES
T4 DE 73m2 + LOGGIA  / LES OLIVES - Appartement à MARSEILLE-13E
T4 DE 73m2 + LOGGIA / LES OLIVES
Appartement à MARSEILLE-13E
T4 DE 73m2 + LOGGIA  / LES OLIVES - Appartement à MARSEILLE-13E
T4 DE 73m2 + LOGGIA / LES OLIVES
T4 DE 73m2 + LOGGIA  / LES OLIVES - Appartement à MARSEILLE-13E
T4 DE 73m2 + LOGGIA / LES OLIVES
T4 DE 73m2 + LOGGIA  / LES OLIVES - Appartement à MARSEILLE-13E
T4 DE 73m2 + LOGGIA / LES OLIVES
Appartement à MARSEILLE-13E
T4 DE 73m2 + LOGGIA  / LES OLIVES - Appartement à MARSEILLE-13E
T4 DE 73m2 + LOGGIA / LES OLIVES
T4 DE 73m2 + LOGGIA  / LES OLIVES - Appartement à MARSEILLE-13E
T4 DE 73m2 + LOGGIA / LES OLIVES
T4 DE 73m2 + LOGGIA  / LES OLIVES - Appartement à MARSEILLE-13E
T4 DE 73m2 + LOGGIA / LES OLIVES
T4 DE 73m2 + LOGGIA  / LES OLIVES - Appartement à MARSEILLE-13E
T4 DE 73m2 + LOGGIA / LES OLIVES
Appartement à MARSEILLE-13E
T4 DE 73m2 + LOGGIA  / LES OLIVES - Appartement à MARSEILLE-13E
T4 DE 73m2 + LOGGIA / LES OLIVES
T4 DE 73m2 + LOGGIA  / LES OLIVES - Appartement à MARSEILLE-13E
T4 DE 73m2 + LOGGIA / LES OLIVES
T4 DE 73m2 + LOGGIA  / LES OLIVES - Appartement à MARSEILLE-13E
T4 DE 73m2 + LOGGIA / LES OLIVES
Appartement à MARSEILLE-13E
T4 DE 73m2 + LOGGIA  / LES OLIVES - Appartement à MARSEILLE-13E
T4 DE 73m2 + LOGGIA / LES OLIVES
T4 DE 73m2 + LOGGIA  / LES OLIVES - Appartement à MARSEILLE-13E
T4 DE 73m2 + LOGGIA / LES OLIVES
T4 DE 73m2 + LOGGIA  / LES OLIVES - Appartement à MARSEILLE-13E
T4 DE 73m2 + LOGGIA / LES OLIVES
T4 DE 73m2 + LOGGIA  / LES OLIVES - Appartement à MARSEILLE-13E
T4 DE 73m2 + LOGGIA / LES OLIVES
Appartement à MARSEILLE-13E
T4 DE 73m2 + LOGGIA  / LES OLIVES - Appartement à MARSEILLE-13E
T4 DE 73m2 + LOGGIA / LES OLIVES
T4 DE 73m2 + LOGGIA  / LES OLIVES - Appartement à MARSEILLE-13E
T4 DE 73m2 + LOGGIA / LES OLIVES
T4 DE 73m2 + LOGGIA  / LES OLIVES - Appartement à MARSEILLE-13E
T4 DE 73m2 + LOGGIA / LES OLIVES
Appartement à MARSEILLE-13E
Ce site est protégé par reCAPTCHA la Politique de confidentialité et les Conditions d’utilisation de Google s’appliquent.
Obtenir un prêt immobilier au meilleur taux ?

En poursuivant votre navigation sans modifier vos paramètres, vous acceptez l'utilisation de cookies susceptibles de réaliser des statistiques de visite. Cliquez ici pour plus d'informations