Bénéficiez des services de nos partenaires locaux soigneusement sélectionnés
pour vous accompagner dans votre parcours d'achat immobilier

Superbe maison de maître (154m2)

— Quillan 11500 —
199 000 €
7 pièces

Nos partenaires locaux
Superbe Maison de Maître

À vendre au cœur d'un charmant bourg. 4 grandes chambres, une grande cuisine équipée, une salle à manger, un salon avec poêle à bois, 2 salles d'eau, une buanderie, des toilettes. Possibilité de créer 2 chambres supplémentaires et un espace de vie avec grenier aménageable de 53,9 m².
Surface habitable : 154 m². Surface totale : 208 m² environ.

DESCRIPTION DE LA PROPRIÉTÉ
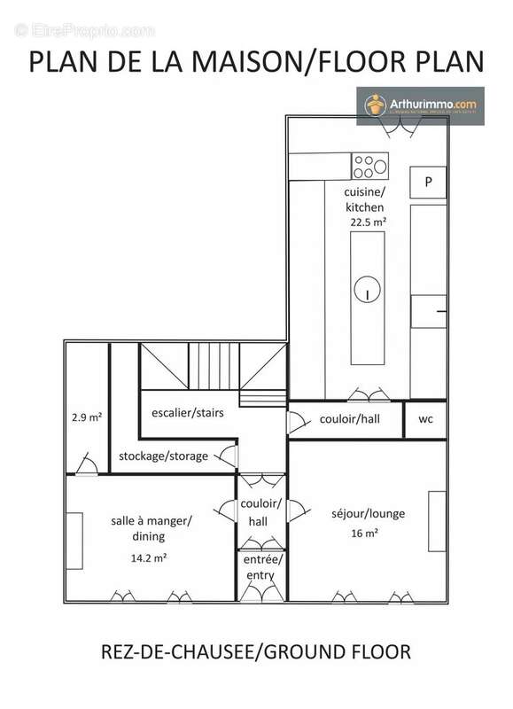
Résumé : Nichée dans le centre historique d'un bourg animé, au pied des Pyrénées, dans le sud de la France, cette charmante Maison de Maître du XVIIIe siècle vous offre l'opportunité de devenir propriétaire d'une propriété de village idéale. Cette belle demeure de caractère dispose de 4 grandes chambres, d'une salle à manger aux éléments d'époque impressionnants, d'un salon lumineux avec poêle à bois et d'une cuisine équipée de qualité et élégante. Entièrement rénovée, la maison ne demande qu'à être rénovée et à vous de la personnaliser. Grâce à son emplacement, son charme et ses beaux volumes, elle offre un potentiel de revenus en chambres d'hôtes, chambres d'hôtes ou gîte. REZ-DE-CHAUSSÉE
Entrez par de grandes portes doubles en bois ornementées dans une entrée et un couloir richement décorés. À droite, un magnifique salon lumineux avec ses carreaux de ciment d'origine, sa cheminée en marbre et son poêle à bois. À gauche, vous trouverez une salle à manger avec sa cheminée en marbre d'origine, ses carreaux de ciment, sa rosace moulurée et ses moulures décoratives au-dessus de la cheminée. La salle à manger dispose d'un autre espace de rangement à l'arrière.

Le couloir central est doté d'une double porte vitrée menant à l'escalier en bois d'origine. À gauche, une porte offre un espace de rangement supplémentaire. À droite, un couloir mène à la grande cuisine équipée et à des toilettes idéalement situées et récemment rénovées. De ce couloir, orné d'un magnifique mur en pierres apparentes, une double porte vitrée s'ouvre sur la grande cuisine équipée. Avec ses poutres apparentes, son carrelage en terre cuite, son îlot central avec un second évier et ses nombreux rangements, la cuisine, conçue par le propriétaire et chef cuisinier, est un véritable plaisir à cuisiner. Au fond de la grande cuisine de 22,5 m², de nouvelles portes-fenêtres oscillo-battantes à double vitrage donnent sur la rue, à l'arrière de la maison. Pour plus de confort, la cuisine est chauffée par un poêle à granulés haut de gamme récemment installé.

PREMIER ÉTAGE
Une lucarne éclaire la cage d'escalier en bois d'origine menant aux premier et deuxième étages. Un palier vous accueille en haut de l'escalier. Sur le mur juste en face de vous, vous trouverez une petite alcôve avec trois portes. La porte de gauche mène à une grande chambre de 24 m² à l'arrière de la maison. Cette pièce a été replâtrée et repeinte en 2025. Elle est équipée d'un chauffage électrique neuf, de parquet d'origine, d'une cheminée en marbre, de deux fenêtres doubles et d'un magnifique lustre.

La porte centrale mène à une salle de douche fraîchement repeinte et rénovée. Les prestations de qualité comprennent une robinetterie neuve, un lavabo, des toilettes, un sèche-serviettes électrique et le chauffage électrique. La porte à droite mène à une deuxième chambre de 22 m² à l'avant de la maison. Cette chambre a été repeinte et peinte en 2021. Elle dispose de sa cheminée en marbre d'origine, de deux doubles fenêtres d'origine, d'un parquet en bois massif et d'un charmant luminaire d'époque.

Le palier se prolonge vers la droite et mène à un petit couloir. La première porte mène à une troisième chambre de 10,5 m², actuellement utilisée comme bureau. Elle possède une double fenêtre d'origine, du parquet d'origine et une cheminée en marbre. La porte au bout du couloir mène à une buanderie qui était autrefois une cuisine. Elle pourrait servir de buanderie, de cuisine ou être transformée en salle de bain attenante. Cette pièce dispose d'une double fenêtre et d'un débarras de 3,7 m².

DEUXIÈME ÉTAGE
L'escalier menant au deuxième étage mène à un palier où se trouvent deux portes. La porte de droite mène à une quatrième grande chambre de 22,8 m² avec salle de douche attenante récemment rénovée et repeinte. Cette pièce dispose de deux fenêtres doubles, d'une cheminée en marbre et d'un parquet d'origine. La deuxième porte sur le palier mène à un grand grenier de 53,9 m². Cette pièce spacieuse dispose d'un accès au toit, de trois fenêtres d'origine et de trois pièces. Cette pièce mansardée offre le potentiel de créer deux chambres supplémentaires et un salon.

SITUATION
La maison est idéalement située dans une rue calme du centre historique de Quillan, avec un parking résidentiel à proximité. À quelques pas, vous trouverez des marchés locaux, des bars, des boutiques, des cafés, des établissements de santé, des écoles, un bureau de poste, des boulangeries, des bars à vin et des restaurants. Idéalement située dans l'Aude, la maison est à environ une heure des plages méditerranéennes et des domaines skiables des Pyrénées. Deux aéroports sont à moins d'une heure. L'Espagne et Andorre sont à moins de deux heures de route. Des bus circulent quotidiennement pour Carcassonne et Perpignan.

La maison est située à 50 minutes en voiture du célèbre site classé au patrimoine mondial de l'UNESCO, la Cité de Carcassonne, De plus, elle est située dans l'une des plus grandes régions viticoles du monde et offre un large choix d'activités de plein air, notamment la randonnée, le vélo, le parapente, le VTT, la pêche, le rafting, l'escalade et bien plus encore. La plupart des travaux de rénovation étant terminés, voici votre chance de devenir propriétaire de l'une des plus charmantes propriétés du bourg prisé de Quillan.

Une opportunité exceptionnelle à ne pas manquer !
Contactez-nous dès maintenant pour obtenir tous les détails et organiser une visite.

Honoraires d'agence à la charge du vendeur.

Des informations sur les risques auxquels cette propriété est exposée sont disponibles sur le site web de Géorisques : www.georisques.gouv.fr

Gestion : Mark Holloway, agent commercial, numéro SIRET : 84[Coordonnées masquées]17, EI
Voir plus

Référence: 86110047
Barème des honoraires

Prêt immobilier

Vous souhaitez connaître votre capacité d’emprunt et trouver le meilleur crédit immobilier ?
Réaliser une simulation gratuite

Maison à QUILLAN
Maison à QUILLAN
Maison à QUILLAN
Maison à QUILLAN
Maison à QUILLAN
Maison à QUILLAN
Maison à QUILLAN
Maison à QUILLAN
Maison à QUILLAN
Maison à QUILLAN
Maison à QUILLAN
Maison à QUILLAN
Maison à QUILLAN
Maison à QUILLAN
Maison à QUILLAN
Maison à QUILLAN
Maison à QUILLAN
Maison à QUILLAN
Maison à QUILLAN
Maison à QUILLAN
Maison à QUILLAN
Maison à QUILLAN
Ce site est protégé par reCAPTCHA la Politique de confidentialité et les Conditions d’utilisation de Google s’appliquent.
Obtenir un prêt immobilier au meilleur taux ?

En poursuivant votre navigation sans modifier vos paramètres, vous acceptez l'utilisation de cookies susceptibles de réaliser des statistiques de visite. Cliquez ici pour plus d'informations