Propriété boisée avec grandes dépendances

— Chauve 44320 —
436 000 €
168 m² / 6 531 m²
9 pièces
parkingbalcon/terrassejardin

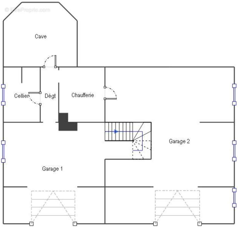
À CHAUVÉ, à 10km des plages de PORNIC, propriété boisée comprenant jolie maison (5 chambres, 168m2 + sous-sol 117m2) + hangar avec atelier 400m2 + carport/préau 90m2. L’ensemble en bon état à rafraichir, sur terrain clos de 6 531m2. La maison est composée comme suit : Hall d’entrée (avec sanitaires/WC) ; Pièces de vie en enfilade (disposant toutes d’un accès direct à la terrasse) dont Cuisine AE, Salle-à-manger avec poêle à bois, Séjour avec salon cozy en bow-window ; Dégagement ; Antichambre (à usage de bureau/salle de jeu) avec porte-fenêtre ; 2 chambres dont 1 avec porte-fenêtre vers coursive extérieure et jardin ; Salle de douche (meuble double vasque, colonne de rangement, douche, sèche-serviette, 2 fenêtres) ; Lingerie/buanderie ; Cage d’escalier vers sous-sol et cage d’escalier vers l’étage. Au premier étage : Palier desservant 3 jolies chambres avec rangements ; Salle de bain (meuble vasque, baignoire, fenêtre) ; WC indépendant. Au sous-sol (accessible depuis par escalier depuis le hall d’entrée ou par l’extérieur via 2 portes de garage coulissantes et portes piétonnes) : Garages spacieux, atelier, salle de jeu, cellier/vestiaire avec évier/douche, chaufferie, local de puisage, cave. La maison -élégante construction / belle gamme des années 1970- dispose de : Couverture en ardoise naturelle avec crochets inox, cheneaux zinc, huisseries PVC double vitrage, volets traditionnels bois en RC et pliants PVC à l’étage, sols RC en carrelage et parquet, sols étage en parquet flottant et carrelage, ECS et chauffage central produits par chaudière VIESSMANN au fuel, chauffage distribué par radiateurs hydrauliques en fonte, poêle à bois GODIN, terrasse bois d’environ 45m2 et coursive en façade, assainissement non-collectif en parfait état de fonctionnement mais non conforme aux normes actuelles, eau de ville + eau du puits pour le jardin (système de pompage récent), accès sécurisé avec visiophone, système de protection électronique/contrat de télésurveillance*, etc… Les dépendances sont constituées d’un hangar sur dalle béton (2,80m de hauteur sous ferme bois) d’environ 400m2 comprenant un atelier, une pièce de stockage, une fosse de réparation, une grande porte coulissante et divers accès piétons ainsi que d’un préau à usage de carport sur dalle béton d’environ 90m2. Les extérieurs offrent : Jardin arboré avec petit bassin d’ornement, cour stabilisée devant les dépendances, bois et bande de pelouse. La propriété est entièrement close, son accès est sécurisé par portail commandé avec visiophone + porte piétonne. Cadre de vie privilégié, à l’abri des regards et d’un voisinage immédiat, bénéficiant du centre-bourg avec écoles, services, commerces et commodités à 1 500m ; Plages à 10km (10mn) ; Proche PORNIC, LA BERNERIE EN RETZ, SAINT-PERE-EN-RETZ et CHAUMES-EN-RETZ ; NANTES à 35km. TF : 2 290€. Complément d’information et visite sur demande référencée. Ce bien vous est présenté en EXCLUSIVITÉ par DEMEURES & CARACTÈRE - Cabinet Retz-Immobilier, spécialiste des biens immobiliers de Caractère, Atypiques, Ruraux, d'Exception et de Prestige. @MNNRICD - Contact : Chris DUBOIS. Référence du mandat exclusif présenté : no110920. Ce bien vous est presente par Retz-Immobilier.com ; Agence specialiste des Maisons de Charme, Belles Demeures & Proprietes de Caractere a vendre en Vendee, Loire-Atlantique & Morbihan. - Annonce rédigée et publiée par un Agent Mandataire -
Voir plus

Référence: 219351
Honoraires à la charge du vendeur.
Barème des honoraires
DPE
A
B
C
D
E
F
G
GES
A
B
C
D
E
F
G

Prêt immobilier

Vous souhaitez connaître votre capacité d’emprunt et trouver le meilleur crédit immobilier ?
Réaliser une simulation gratuite

Maison à CHAUVE
Maison à CHAUVE
Maison à CHAUVE
Maison à CHAUVE
Maison à CHAUVE
Maison à CHAUVE
Maison à CHAUVE
Maison à CHAUVE
Maison à CHAUVE
Maison à CHAUVE
Maison à CHAUVE
Maison à CHAUVE
Maison à CHAUVE
Maison à CHAUVE
Maison à CHAUVE
Maison à CHAUVE
Maison à CHAUVE
Maison à CHAUVE
Maison à CHAUVE
Maison à CHAUVE
Maison à CHAUVE
Maison à CHAUVE
Maison à CHAUVE
Maison à CHAUVE
Maison à CHAUVE
Maison à CHAUVE
Maison à CHAUVE
Maison à CHAUVE
Maison à CHAUVE
Maison à CHAUVE
Maison à CHAUVE
Maison à CHAUVE
Ce site est protégé par reCAPTCHA la Politique de confidentialité et les Conditions d’utilisation de Google s’appliquent.
Obtenir un prêt immobilier au meilleur taux ?

En poursuivant votre navigation sans modifier vos paramètres, vous acceptez l'utilisation de cookies susceptibles de réaliser des statistiques de visite. Cliquez ici pour plus d'informations