Pavillon lumineux avec jardin, garage et 4 chambres – fort potentiel familial

— Laval 53000 —
175 000 €
93 m² / 417 m²
5 pièces
parkingbalcon/terrassejardin

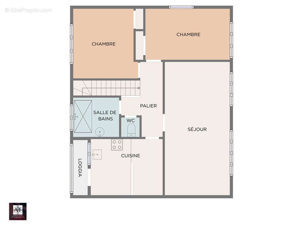
L’Agence THOM, vous propose à la vente, en exclusivité, ce pavillon mitoyen d’un côté, situé dans un quartier calme, offrant une surface habitable d’environ 93 m² sur deux niveaux, avec un jardin clos et arboré de 417 m². Le rez-de-chaussée accueille une véranda lumineuse, une entrée, deux chambres avec placards intégrés, une buanderie, une chaufferie, deux couloirs avec rangements, une cave fonctionnelle avec étagères, un atelier et un garage spacieux doté d’un grenier. À l’étage, vous profiterez d’un palier avec rangements, d’un salon-séjour lumineux, d’une cuisine aménagée et équipée avec loggia, d’un WC indépendant, d’une salle d’eau avec placard, et de deux chambres supplémentaires dont l’une dispose d’un coin bureau et de rangements. Le terrain à l’arrière complète agréablement l’ensemble avec plusieurs annexes (atelier, volières, réserve). La maison est saine, bien entretenue et lumineuse. Quelques travaux de rafraîchissement sont à prévoir pour la moderniser à votre goût. La toiture est en ardoises fibrociment. Ce bien conviendra parfaitement à une famille ou à un projet nécessitant de beaux volumes et de nombreuses possibilités d’aménagement. Classe énergie : F, Classe climat : F. Montant moyen estimé des dépenses annuelles d'énergie pour un usage standard, établi à partir des prix de l'énergie de l'année 2021, 2022 et 2023 : entre 4059 € et 5491 €. Logement à consommation énergétique excessive : classe F. Les informations sur les risques auxquels ce bien est exposé sont disponibles sur le site Géorisques :www.georisques.gouv.fr. Prix : 175.000€ / Honoraires à la charge du vendeur. Visite virtuelle disponible. Conformément à l'article L. 561-5 du code monétaire et financier, la copie de la pièce d'identité de tous les visiteurs vous sera demandée avant toute visite. Pour visiter et vous accompagner dans votre projet, contactez Mme Axelle MARILLEAU, négociatrice au [Coordonnées masquées] ou [Coordonnées masquées].
Voir plus

Référence: 1461
DPE
A
B
C
D
E
F
G
GES
A
B
C
D
E
F
G

Prêt immobilier

Vous souhaitez connaître votre capacité d’emprunt et trouver le meilleur crédit immobilier ?
Réaliser une simulation gratuite

Maison à LAVAL
Maison à LAVAL
Maison à LAVAL
Maison à LAVAL
Maison à LAVAL
Maison à LAVAL
Maison à LAVAL
Maison à LAVAL
Maison à LAVAL
Maison à LAVAL
Maison à LAVAL
Maison à LAVAL
Maison à LAVAL
Maison à LAVAL
Maison à LAVAL
Maison à LAVAL
Maison à LAVAL
Maison à LAVAL
Maison à LAVAL
Maison à LAVAL
Ce site est protégé par reCAPTCHA la Politique de confidentialité et les Conditions d’utilisation de Google s’appliquent.
Obtenir un prêt immobilier au meilleur taux ?

En poursuivant votre navigation sans modifier vos paramètres, vous acceptez l'utilisation de cookies susceptibles de réaliser des statistiques de visite. Cliquez ici pour plus d'informations