Bénéficiez des services de nos partenaires locaux soigneusement sélectionnés
pour vous accompagner dans votre parcours d'achat immobilier

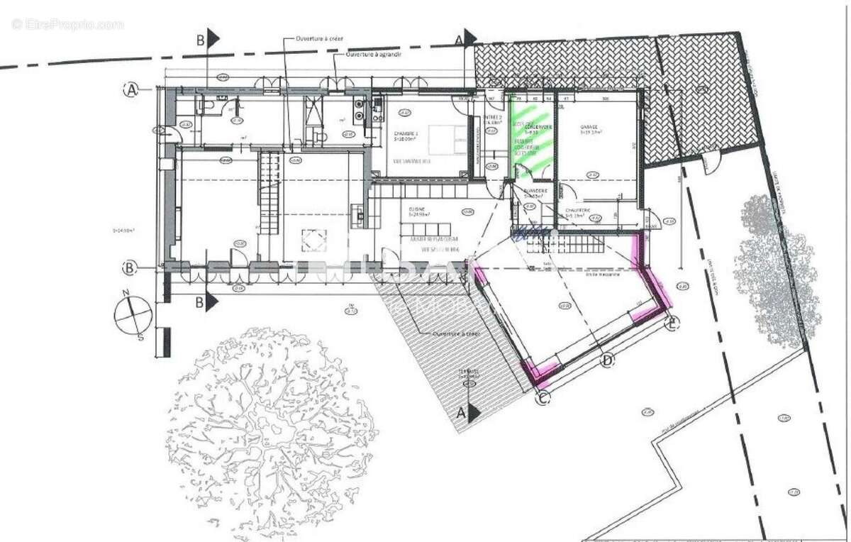
Maison 301m² à saint-mariens

— Saint-Mariens 33620 —
448 000 €
301 m² / 4 773 m²
10 pièces
parkingjardin

Nos partenaires locaux
Au calme, à deux pas des commodités, découvrez cette maison de 301 m² à terminer, édifiée sur une parcelle de 4773 m² piscinable. Pensée pour accueillir une grande famille ou un projet d'investissement, elle offre un fort potentiel de rénovation et la liberté de personnaliser intégralement les espaces. Le projet prévoit : 10 pièces dont 6 chambres, 4 salles de bain et 4 WC, une vaste cuisine ouverte sur séjour, une salle à manger, un studio attenant idéal pour un revenu locatif, un espace indépendant pour un ado ou une activité professionnelle, un garage et 2 stationnements extérieurs. La façade en pierre et brique confère à l'ensemble un charme certain, tandis que l'intérieur, encore à concevoir, permet de créer un lieu moderne et fonctionnel : une opportunité unique d'allier le cachet de l'ancien au confort du contemporain. À noter : une cuisine contemporaine Schmidt équipée et sur mesure, déjà achetée et prête à poser par le cuisiniste, est incluse dans le prix, tout comme les sanitaires, le carrelage et l'escalier, à monter soi-même. Le terrain piscinable complète l'ensemble et permet d'imaginer de superbes aménagements extérieurs. Ce bien rare séduira aussi bien une famille désireuse de bâtir son projet de vie qu'un investisseur recherchant une opération de rénovation ou de division avec un fort potentiel de valorisation future.

Les informations sur les risques auxquels ce bien est exposé sont disponibles sur le site Géorisques : www.georisques.gouv.fr
Prix de vente : 448 000 ¤
Honoraires charge vendeur

Contactez votre conseiller SAFTI : Marie MOBAYA, Tél. : [Coordonnées masquées], E-mail : [Coordonnées masquées] - EI - Agent commercial immatriculé au RSAC de Libourne sous le numéro 913200606.
Informations LOI ALUR :
Honoraires charge vendeur. (gedeon_26118_31608249)
Voir plus

Référence: 1341551
Honoraires à la charge du vendeur.
Barème des honoraires
DPE
A
B
C
D
E
F
G
GES
A
B
C
D
E
F
G

Prêt immobilier

Vous souhaitez connaître votre capacité d’emprunt et trouver le meilleur crédit immobilier ?
Réaliser une simulation gratuite

Photo 1 - Maison à SAINT-MARIENS
Photo 1
Photo 2 - Maison à SAINT-MARIENS
Photo 2
Photo 3 - Maison à SAINT-MARIENS
Photo 3
Photo 4 - Maison à SAINT-MARIENS
Photo 4
Photo 5 - Maison à SAINT-MARIENS
Photo 5
Photo 6 - Maison à SAINT-MARIENS
Photo 6
Photo 7 - Maison à SAINT-MARIENS
Photo 7
Photo 8 - Maison à SAINT-MARIENS
Photo 8
Photo 9 - Maison à SAINT-MARIENS
Photo 9
Ce site est protégé par reCAPTCHA la Politique de confidentialité et les Conditions d’utilisation de Google s’appliquent.
Obtenir un prêt immobilier au meilleur taux ?

En poursuivant votre navigation sans modifier vos paramètres, vous acceptez l'utilisation de cookies susceptibles de réaliser des statistiques de visite. Cliquez ici pour plus d'informations