Bénéficiez des services de nos partenaires locaux soigneusement sélectionnés
pour vous accompagner dans votre parcours d'achat immobilier

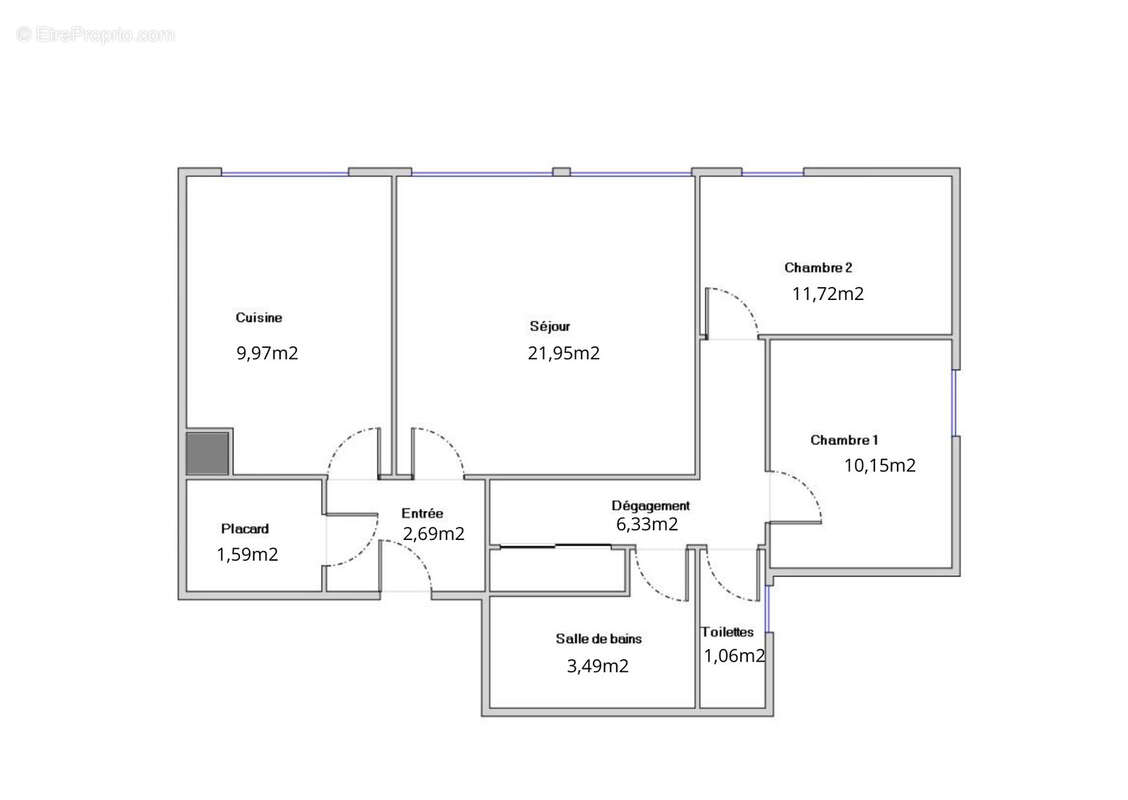
Appartement 68m² à sucy-en-brie

— Sucy-En-Brie 94370 —
172 000 €
68 m²
3 pièces

Nos partenaires locaux
Iad France - Sophie Pons vous propose : Dans une résidence sécurisée avec gardien, découvrez cet appartement 3 pièces situé au 2ème étage, offrant un cadre de vie agréable et verdoyant.

Dès l'entrée, vous serez séduits par le bon agencement des espaces. Le séjour lumineux s'ouvre sur une belle vue dégagée sur la verdure, et la cuisine, à la fois aménagée et équipée, s'accompagne d'un cellier pratique. L'appartement dispose de deux chambres confortables, d'une salle de bain fonctionnelle, d'un wc indépendant et d'une cave, idéale pour le rangement.

Le stationnement est libre au pied de l'immeuble, ce qui facilite votre quotidien. Vous apprécierez la proximité immédiate des écoles, du parc, des commodités et des lignes de bus reliant rapidement la gare RER, accessibles à pied. Un bien à visiter sans tarder pour profiter d'un cadre de vie à la fois paisible et pratique.

La presente annonce immobiliere vise 2 lots situés dans une copropriété de 412 lots au total et faisant l'objet d'une ou plusieurs procédures en cours citée à l'article L. 721-1 du code de la construction et de l'habitation. Montant moyen mensuel de charges déclaré par le vendeur : 266¤ par mois (soit 3192 ¤ annuel). Honoraires d'agence à la charge du vendeur.
Information d'affichage énergétique sur ce bien : classe ENERGIE E indice 296 et classe CLIMAT A indice 3. Les informations sur les risques auxquels ce bien est exposé, y compris l'obligation légale de débroussaillement, sont disponibles sur le site Géorisques : http://www.georisques.gouv.fr.
La présente annonce immobilière a été rédigée sous la responsabilité éditoriale de Mme Sophie Pons mandataire indépendant en immobilier (sans détention de fonds), agent commercial de la SAS I@D France immatriculé au RSAC de Créteil sous le numéro 832376941, titulaire de la carte de démarchage immobilier pour le compte de la société I@D France SAS.
Informations LOI ALUR :
Soumis au régime de copropriété.
Nombre de lots : 412.
Quote part annuelle(moyenne) : 3192 euros.
Syndic soumis à une procédure d'alerte.
Honoraires charge vendeur. (gedeon_6727_31609417)
Voir plus

Référence: 1810147
Bien en copropriété. Nombre de lots : 412. Charges de copropriété : 3192 €.
Honoraires à la charge du vendeur.
DPE
A
B
C
D
E
F
G
GES
A
B
C
D
E
F
G

Prêt immobilier

Vous souhaitez connaître votre capacité d’emprunt et trouver le meilleur crédit immobilier ?
Réaliser une simulation gratuite

Photo 1 - Appartement à SUCY-EN-BRIE
Photo 1
Photo 2 - Appartement à SUCY-EN-BRIE
Photo 2
Photo 3 - Appartement à SUCY-EN-BRIE
Photo 3
Photo 4 - Appartement à SUCY-EN-BRIE
Photo 4
Photo 5 - Appartement à SUCY-EN-BRIE
Photo 5
Photo 6 - Appartement à SUCY-EN-BRIE
Photo 6
Photo 7 - Appartement à SUCY-EN-BRIE
Photo 7
Ce site est protégé par reCAPTCHA la Politique de confidentialité et les Conditions d’utilisation de Google s’appliquent.
Obtenir un prêt immobilier au meilleur taux ?

En poursuivant votre navigation sans modifier vos paramètres, vous acceptez l'utilisation de cookies susceptibles de réaliser des statistiques de visite. Cliquez ici pour plus d'informations