Bénéficiez des services de nos partenaires locaux soigneusement sélectionnés
pour vous accompagner dans votre parcours d'achat immobilier

Duplex (type appartement-maison) de 5 pièces de 83 m2 avec cave et parking - quartier saint-donatien à nantes

— Nantes 44000 —
309 900 €
83 m²
5 pièces
parking

Nos partenaires locaux
Hosman vous propose à la vente ce beau duplex (type maison-appartement) entièrement rénové en 2025 de 83 m² Carrez, situé quartier Saint-Donatien à Nantes.
Profitez de son entrée indépendante qui donne l'impression d'être en maison individuelle.

Ce bien est situé en RDC sur 3 d'un immeuble des années 1970-1980 bien entretenu.

Planifiez facilement votre visite en choisissant le créneau qui vous convient depuis le site d'Hosman.

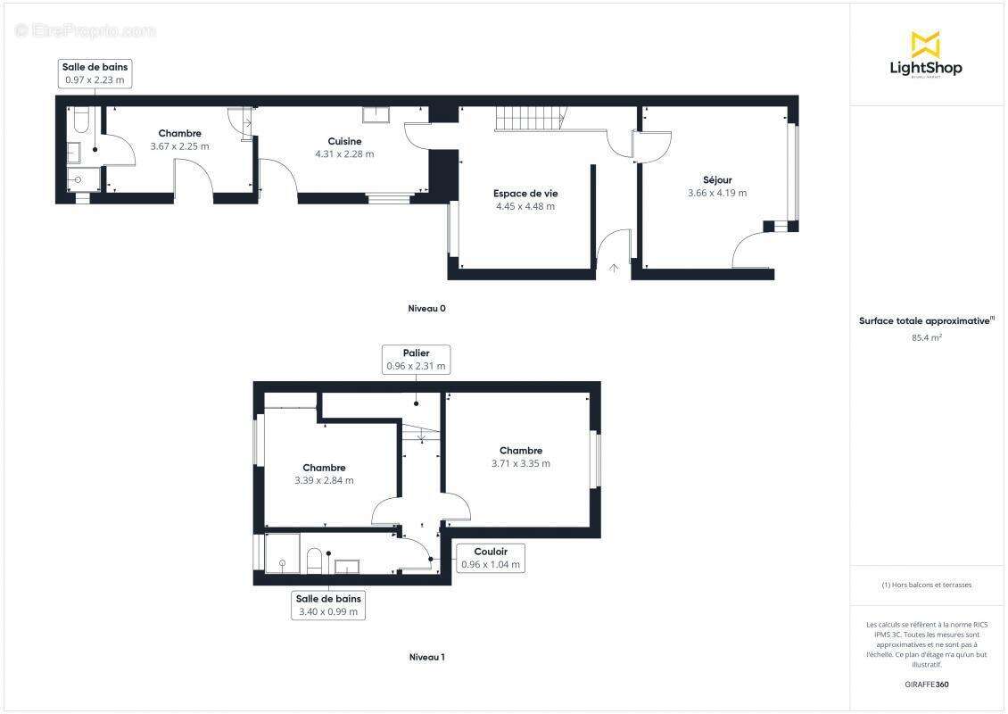
L'appartement se compose comme suit:
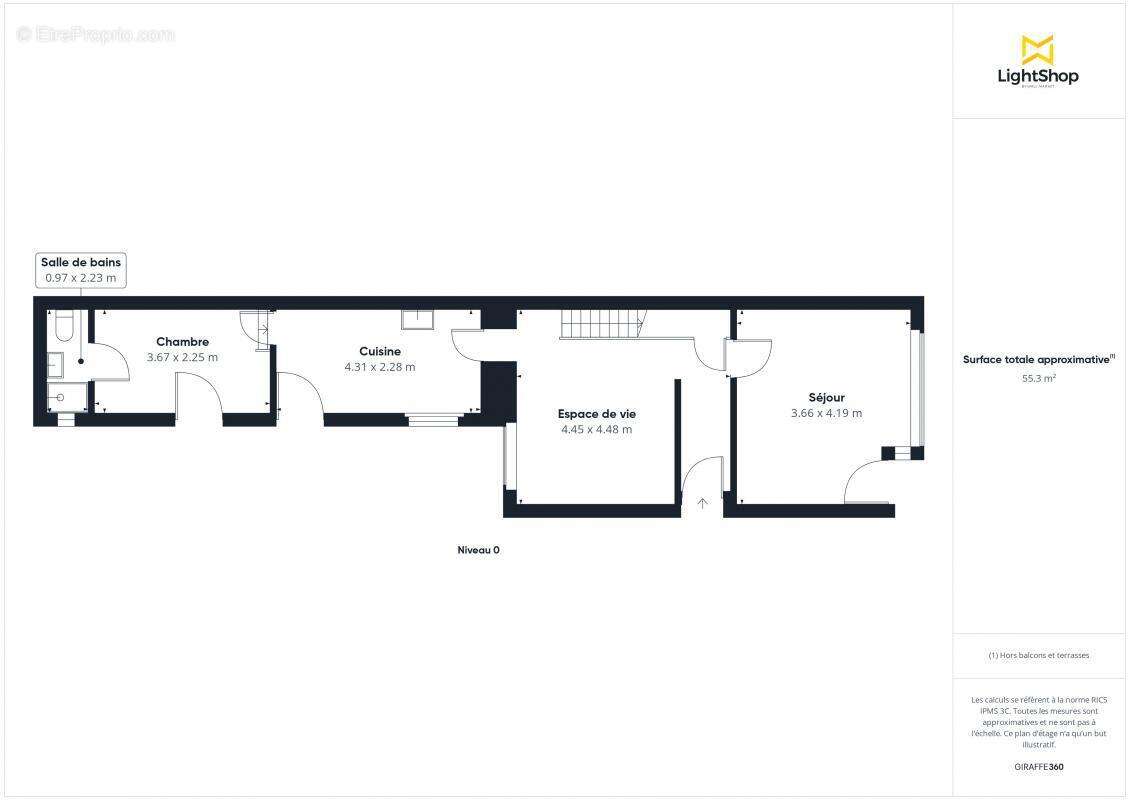
Au RDC :
- D'une entrée séparée.
- D'un espace salle à manger de 13 m2 avec des rangements sous l'escalier.
- D'un espace salon séparé de 15m2 (en cours de changement d'usage pour le réhabiliter en usage d'habitation).
- D'une cuisine séparée de 10 m2 (à équiper).
- D'une première chambre avec une salle d'eau attenante et des toilettes.

A l'étage :
- De 2 chambres de 12 m2 sur parquet dont une avec un placard intégré.
- D'une salle d'eau avec toilettes.

Une place de stationnement et une cave de 7,7 m2 complètent ce bien.

Vous serez à proximité à pied de tous les commerces du quartier Saint-Donatien (commerces de bouche, écoles, supermarché, pharmacie, boulangerie...).
Les lignes de bus C1 et 10 se trouvent à 3 minutes à pied.
Vous serez à 3 minutes à pied du parc du Plessis-Tison.
Vous serez en 15 minutes en bus de la gare SNCF.

Le système de chauffage et d'eau chaude est assuré par une chaudière gaz installée en 2018.
La taxe foncière annuelle est de 1 490 €.

Cet appartement est soumis au statut de copropriété.
L'immeuble, construit entre 1970 et 1980, est en bon état avec un bon entretien des parties communes. Aucun gros travaux ne sont prévus à court terme.
Les charges de copropriété s'élèvent à 187 € par trimestre.

Hosman s'efforce de réinventer l'agence immobilière en offrant un service innovant et transparent aux acheteurs et aux vendeurs. Nos frais d'agence sont de 9 900 euros fixes à la charge du vendeur.

Si vous êtes un professionnel de l'immobilier (agent, mandataire ou chasseur immobilier), sachez que toutes les annonces Hosman sont ouvertes à la collaboration. N'hésitez pas à nous contacter pour en discuter.
Voir plus

Référence: d7745d
Bien en copropriété. Charges de copropriété : 62 €.
Honoraires à la charge du vendeur.
DPE
A
B
C
D
E
F
G
GES
A
B
C
D
E
F
G

Prêt immobilier

Vous souhaitez connaître votre capacité d’emprunt et trouver le meilleur crédit immobilier ?
Réaliser une simulation gratuite

Appartement à NANTES
Appartement à NANTES
Appartement à NANTES
Appartement à NANTES
Appartement à NANTES
Appartement à NANTES
Appartement à NANTES
Appartement à NANTES
Appartement à NANTES
Appartement à NANTES
Appartement à NANTES
Appartement à NANTES
Appartement à NANTES
Appartement à NANTES
Appartement à NANTES
Appartement à NANTES
Appartement à NANTES
Appartement à NANTES
Appartement à NANTES
Appartement à NANTES
Ce site est protégé par reCAPTCHA la Politique de confidentialité et les Conditions d’utilisation de Google s’appliquent.
Obtenir un prêt immobilier au meilleur taux ?

En poursuivant votre navigation sans modifier vos paramètres, vous acceptez l'utilisation de cookies susceptibles de réaliser des statistiques de visite. Cliquez ici pour plus d'informations