Maison 146m² à molsheim

— Molsheim 67120 —
449 900 €
146 m² / 300 m²
6 pièces
parkingbalcon/terrassejardin

67120 - MOLSHEIM - QUARTIER TRANQUILLE - 6 PIÈCES - 5 CHAMBRES - 166 M² AU SOL - MAISON MITOYENNE RÉCENTE AVEC TERRASSE ET JARDIN -
Aude SECCI effiCity, l'expert du secteur qui estime votre bien, vous propose cette maison contemporaine à Molsheim.
Construite en 2019 sur un terrain de 3 ares, cette maison est située dans un quartier paisible.
Elle saura vous séduire par son environnement calme et sa proximité avec les écoles, les commerces, les transports et les loisirs.
Aucun travaux n'est à prévoir, idéal pour une installation sans contraintes.
Cette maison dispose d'une excellente performance énergétique grâce à sa pompe à chaleur air/eau réversible, ce qui permet donc de rafraîchir en été.

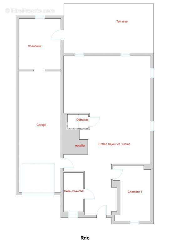
Vous trouverez au rez-de-chaussée:
- un grand séjour de 50.0 m² lumineux et spacieux, offrant un espace de vie agréable pour toute la famille, ouvert sur une cuisine entièrement équipée,
- un bureau de 9,37m² ,
- une salle d'eau avec douche à l'italienne et toilette,
- un garage donnant sur un espace chaufferie / cellier à l'arrière.

A l'étage se trouvent:
- une belle suite parentale de 31 m² avec sa salle d'eau équipée d'une douche à l'italienne ainsi que de son espace dressing,
- 3 autres chambres de 13 à 17 m²,
- une belle et grande salle de bain de 11,30m² équipée d'une douche à l'italienne, d'une baignoire d'angle et d'un toilette.

Les plus de cette maison:
- une grande terrasse équipée d'une pergola, orientée ouest, de 22m² accessible depuis le séjour,
- un jardin arboré ainsi qu'une cour permettant de garer jusqu'à 2 voitures,
- un garage de 26m²,
- volets électriques,
- belles prestations et finitions de qualité
- eau chaude + chauffage par PAC.

Tout est fait pour votre confort au quotidien !

N'hésitez plus, venez visiter cette maison d'exception à Molsheim.
Contactez-moi dès maintenant pour organiser une visite et découvrir ce bien sans plus tarder.
Les informations sur les risques auxquels ce bien est exposé sont disponibles sur le site Georisque : georisques. gouv. fr
Aude Secci - EI - est Agent Commercial mandataire en immobilier, immatriculé au Registre Spécial des Agents Commerciaux du Tribunal de Commerce de Saverne sous le n°895023216.
Siège social du mandant : effiCity, 48 avenue de Villiers - 75017 PARIS - Société par Actions Simplifiée, société au capital de 132 373,05 euros, immatriculée au RCS Paris 497 617 746 et titulaire de la Carte professionnelle CPI 75[Coordonnées masquées]02 025 - CCI Paris IDF - Caisse de Garantie : GALIAN Assurances 89 rue de la Boétie 75008 Paris
Voir plus

Référence: 189729
Bien en copropriété. Nombre de lots : 5.
Honoraires d'agence de 3.43% à la charge de l'acquéreur
Barème des honoraires
DPE
A
B
C
D
E
F
G
GES
A
B
C
D
E
F
G

Prêt immobilier

Vous souhaitez connaître votre capacité d’emprunt et trouver le meilleur crédit immobilier ?
Réaliser une simulation gratuite

Maison à MOLSHEIM
Maison à MOLSHEIM
Maison à MOLSHEIM
Maison à MOLSHEIM
Maison à MOLSHEIM
Maison à MOLSHEIM
Maison à MOLSHEIM
Maison à MOLSHEIM
Maison à MOLSHEIM
Maison à MOLSHEIM
Maison à MOLSHEIM
Maison à MOLSHEIM
Ce site est protégé par reCAPTCHA la Politique de confidentialité et les Conditions d’utilisation de Google s’appliquent.
Obtenir un prêt immobilier au meilleur taux ?

En poursuivant votre navigation sans modifier vos paramètres, vous acceptez l'utilisation de cookies susceptibles de réaliser des statistiques de visite. Cliquez ici pour plus d'informations