Bénéficiez des services de nos partenaires locaux soigneusement sélectionnés
pour vous accompagner dans votre parcours d'achat immobilier

Proche mer - batisse historique - appartement de 245m² - parking collectif

— Menton 06500 —
1 999 000 €
246 m²
5 pièces
ascenseur

Nos partenaires locaux
Appartement d’exception dans résidence classée, emblématique de l’architecture Belle Epoque – Vue mer & accès direct à la plage
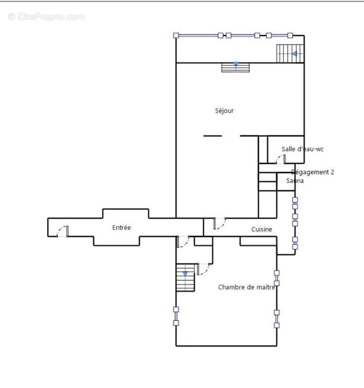
Situé dans le prestigieux quartier résidentiel de Garavan, à quelques pas de la mer et du port de Menton, cet appartement rare bénéficie d’un accès privatif à la promenade du bord de mer. Ce bien, aujourd'hui marqué par une empreinte artistique assumée développe une superficie de 245 m² habitables, dont une mezzanine de 15 m².

La pièce de vie séduit par sa hauteur sous plafond de plus de 5 mètres, et l’ensemble a fait l’objet d’une rénovation raffinée et contemporaine en 2021 par un cabinet d’architecte, dans le respect du caractère patrimonial du lieu.

Disposition :
Entrée, vaste séjour/salle à manger, mezzanine
Cuisine ouverte, salle de douche avec WC et sauna, atelier (modifiable en suite parentale).
À l’étage : deux chambres avec placards, salle de bains, dressing
Espaces extérieurs atypiques : coursives, bureau sous voûte.
Confort : climatisation réversible – Parking collectif au sein de la copropriété.
Un bien unique alliant le charme de l’ancien à un confort contemporain, dans l’un des quartiers les plus prisés de Menton.
Voir plus

Référence: MENTON250
Barème des honoraires
DPE
A
B
C
D
E
F
G
GES
A
B
C
D
E
F
G

Prêt immobilier

Vous souhaitez connaître votre capacité d’emprunt et trouver le meilleur crédit immobilier ?
Réaliser une simulation gratuite

Appartement à MENTON
Appartement à MENTON
Appartement à MENTON
Appartement à MENTON
Appartement à MENTON
Appartement à MENTON
Appartement à MENTON
Appartement à MENTON
Appartement à MENTON
Appartement à MENTON
Appartement à MENTON
Appartement à MENTON
Appartement à MENTON
Appartement à MENTON
Appartement à MENTON
Appartement à MENTON
Appartement à MENTON
Appartement à MENTON
Appartement à MENTON
Appartement à MENTON
Appartement à MENTON
Appartement à MENTON
Appartement à MENTON
Appartement à MENTON
Appartement à MENTON
Appartement à MENTON
Appartement à MENTON
Ce site est protégé par reCAPTCHA la Politique de confidentialité et les Conditions d’utilisation de Google s’appliquent.
Obtenir un prêt immobilier au meilleur taux ?

En poursuivant votre navigation sans modifier vos paramètres, vous acceptez l'utilisation de cookies susceptibles de réaliser des statistiques de visite. Cliquez ici pour plus d'informations