Bénéficiez des services de nos partenaires locaux soigneusement sélectionnés
pour vous accompagner dans votre parcours d'achat immobilier

Paris 19 - secretant

— Paris-19e 75019 —
347 000 €
40 m²
2 pièces

Nos partenaires locaux
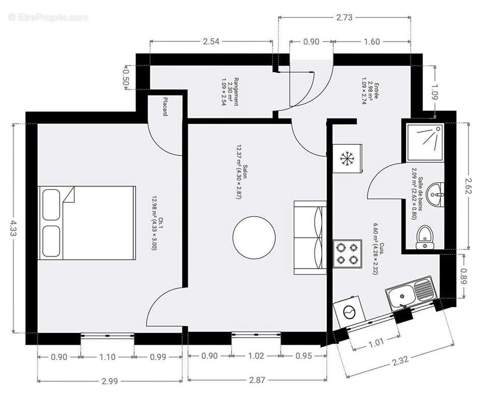
Votre agence Fredélion Buttes-Chaumont vous présente en exclusivité ce charmant appartement de 2 pièces de 40 m², situé dans un bel immeuble ancien des années 1880, parfaitement entretenu. Ce bien lumineux séduit par le charme de l'ancien : parquet d'époque, moulures, cheminée, grandes fenêtres et belle hauteur sous plafond. Il se compose d'une entrée avec rangements, d'un séjour chaleureux, d'une chambre au calme, d'une cuisine indépendante, d'une salle d'eau et de WC séparés. Idéalement situé à quelques mètres du hall Secrétan, coeur de vie du quartier avec son marché couvert, ses commerces de bouche, cafés, restaurants et épiceries fines, cet appartement bénéficie d'un emplacement privilégié, dans un secteur familial et vivant. Le quartier est également très bien desservi par les transports avec les stations de métro Colonel Fabien et Bolivar à proximité, et offre de nombreux aménagements pour les cyclistes (pistes cyclables, stations Vélib'?). Une cave ainsi qu'un local vélo dans la copropriété complètent ce bien. Situé au 1er étage, il conviendra parfaitement pour un premier achat, un pied-à-terre ou un investissement dans l'un des secteurs les plus appréciés du 19e arrondissement. Contactez-nous pour toute information complémentaire, organiser une visite et découvrir tout le potentiel de cet appartement. ? L'agence FREDéLION BUTTES-CHAUMONT, située au 35 avenue Simon Bolivar, se tient à votre entière disposition pour estimer votre bien. Estimation offerte, précise, rapide et sans engagement. Copropriété de 35 lots - dont 35 lots habitation. Charges annuelles : 1260 euros.
Voir plus

Référence: 158
Bien en copropriété. Nombre de lots : 35. Charges de copropriété : 1260 €. Procédure en cours : Procédure en cours.
Honoraires à la charge du vendeur.
DPE
A
B
C
D
E
F
G
GES
A
B
C
D
E
F
G

Prêt immobilier

Vous souhaitez connaître votre capacité d’emprunt et trouver le meilleur crédit immobilier ?
Réaliser une simulation gratuite

Appartement à PARIS-19E
Appartement à PARIS-19E
Appartement à PARIS-19E
Appartement à PARIS-19E
Appartement à PARIS-19E
Appartement à PARIS-19E
Appartement à PARIS-19E
Appartement à PARIS-19E
Appartement à PARIS-19E
Ce site est protégé par reCAPTCHA la Politique de confidentialité et les Conditions d’utilisation de Google s’appliquent.
Obtenir un prêt immobilier au meilleur taux ?

En poursuivant votre navigation sans modifier vos paramètres, vous acceptez l'utilisation de cookies susceptibles de réaliser des statistiques de visite. Cliquez ici pour plus d'informations