Bénéficiez des services de nos partenaires locaux soigneusement sélectionnés
pour vous accompagner dans votre parcours d'achat immobilier

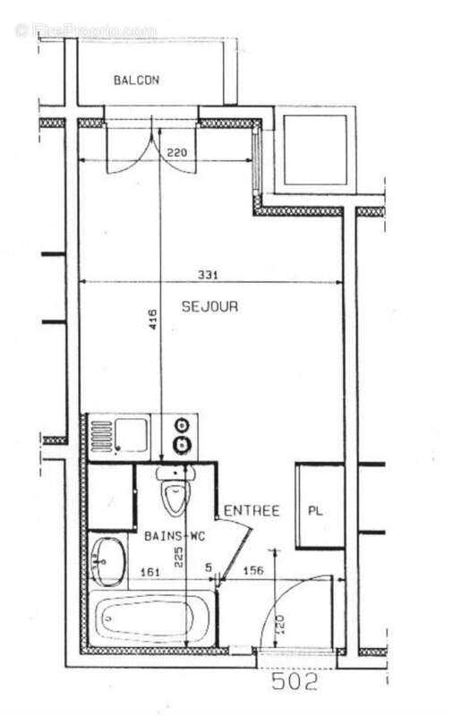
Dépt isere(38) - a vendre - studio 1 pièce de 19m2, grenoble, 5ème étage avec ascenseur renta : +7%

— Grenoble 38000 —
70 000 €
19 m²
1 pièce

Nos partenaires locaux
Comptoir Immobilier de France Grenoble : Idéal Investisseur !
Situé à 2 pas du cours Berriat à Grenoble, proche Gare, au 43 Avenue de Vizille, dans un environnement proche de toutes commodités (commerces, écoles, Tram, bus, etc.. ), je vous propose ce studio au 5ème étage avec ascenseur et balcon.
Dans un immeuble avec interphone, ce studio offre des avantages intéressants.
Entièrement sécurisé avec interphone, il est composé d'une pièce de vie avec un coin cuisine équipé, une salle d'eau avec baignoire et wc, placard de rangement.
Venez découvrir rapidement ce studio loué 415eur/mois.
Cet emplacement n'est pas soumis à l'encadrement des loyers !
Taxe foncière: 850€ / Charges de copropriété: 500€/an comprenant : Eau froide, ascenseur, les charges communes / DPE : D

CIF GRENOBLE GRESIVAUDAN - Lucie RIONDEL [Coordonnées masquées]
Cette annonce vous est proposée par Mme. Lucie RIONDEL - EI - NoRSAC: 889 131 611, Enregistré au Greffe du tribunal de commerce de GRENOBLE COMPTOIR IMMOBILIER DE FRANCE - Plus d'informations sur cif-immo.com - « Les informations sur les risques auxquels ce bien est exposé sont disponibles sur le site Géorisques : www.georisques.gouv.fr »
Voir plus

Référence: 20271
Bien en copropriété. Nombre de lots : 102. Charges de copropriété : 500 €.
Honoraires à la charge du vendeur.
Barème des honoraires
DPE
A
B
C
D
E
F
G
GES
A
B
C
D
E
F
G

Prêt immobilier

Vous souhaitez connaître votre capacité d’emprunt et trouver le meilleur crédit immobilier ?
Réaliser une simulation gratuite

Appartement à GRENOBLE
Appartement à GRENOBLE
Appartement à GRENOBLE
Appartement à GRENOBLE
Appartement à GRENOBLE
Appartement à GRENOBLE
Appartement à GRENOBLE
Ce site est protégé par reCAPTCHA la Politique de confidentialité et les Conditions d’utilisation de Google s’appliquent.
Obtenir un prêt immobilier au meilleur taux ?

En poursuivant votre navigation sans modifier vos paramètres, vous acceptez l'utilisation de cookies susceptibles de réaliser des statistiques de visite. Cliquez ici pour plus d'informations