Bénéficiez des services de nos partenaires locaux soigneusement sélectionnés
pour vous accompagner dans votre parcours d'achat immobilier

Appartement 24m² à toulouse

— Toulouse 31000 —
179 000 €
24 m²
1 pièce

Nos partenaires locaux
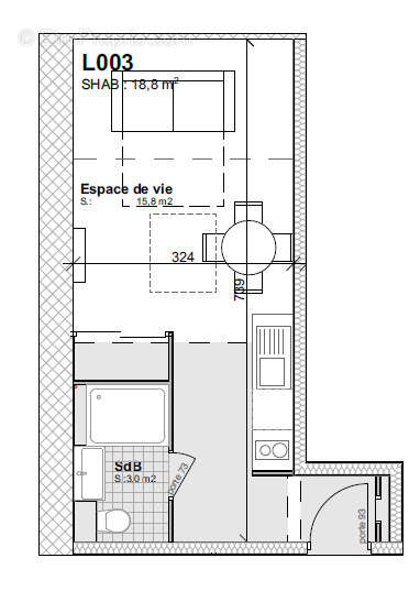
Situé sur la Place du Capitole, nous vous proposons ce studio neuf et meublé de 24.5 m² au sol (dont 19 m² en carrez) entièrement rénové et équipé par un architecte. Il est situé au 4 -ème et dernier étage avec un ascenseur. Idéal pour un investisseur ou bien pour un pied à terre en plein centre-ville.Vous disposez de tout le confort moderne (chauffage et climatisation réversible) et du charme de l'ancien avec mur en brique apparente et poutre.Il se compose d'une pièce de vie avec canapé convertible, d'une table et 3 chaises, une cuisine aménagée et équipée (plaque induction, hotte, micro-onde, lave-vaisselle).Une salle d'eau avec douche à l'Italienne un meuble vasque, un miroir et un wc.La classement énergétique DPE est en D.Taxe fonciere 550EUR (estimatif)Charges de copropriété 70EUR / moisPour plus d'informations veuillez contacter l'agence.Informations LOI ALUR : Honoraires charge vendeur. (gedeon_90737_31621161)
Voir plus

Référence: AG475-38565
Honoraires à la charge du vendeur.
DPE
A
B
C
D
E
F
G
GES
A
B
C
D
E
F
G

Prêt immobilier

Vous souhaitez connaître votre capacité d’emprunt et trouver le meilleur crédit immobilier ?
Réaliser une simulation gratuite

Photo 1 - Appartement à TOULOUSE
Photo 1
Photo 2 - Appartement à TOULOUSE
Photo 2
Photo 3 - Appartement à TOULOUSE
Photo 3
Photo 4 - Appartement à TOULOUSE
Photo 4
Photo 5 - Appartement à TOULOUSE
Photo 5
Photo 6 - Appartement à TOULOUSE
Photo 6
Photo 7 - Appartement à TOULOUSE
Photo 7
Photo 8 - Appartement à TOULOUSE
Photo 8
Ce site est protégé par reCAPTCHA la Politique de confidentialité et les Conditions d’utilisation de Google s’appliquent.
Obtenir un prêt immobilier au meilleur taux ?

En poursuivant votre navigation sans modifier vos paramètres, vous acceptez l'utilisation de cookies susceptibles de réaliser des statistiques de visite. Cliquez ici pour plus d'informations