Bénéficiez des services de nos partenaires locaux soigneusement sélectionnés
pour vous accompagner dans votre parcours d'achat immobilier

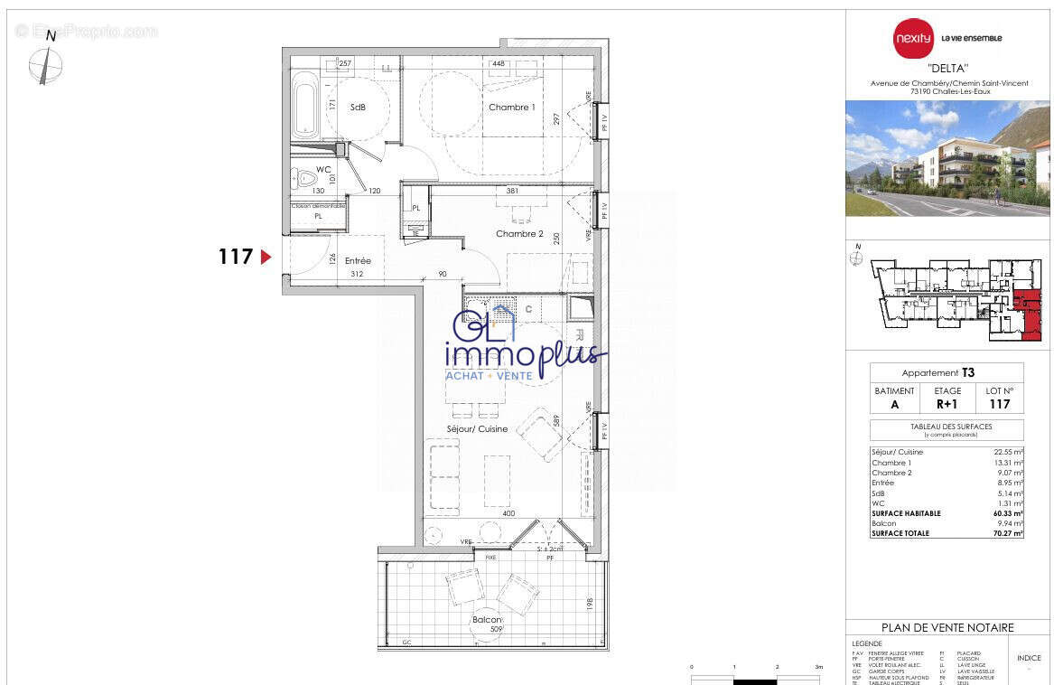
Appartement 60m² à challes-les-eaux

— Challes-Les-Eaux 73190 —
297 720 €
60 m²
3 pièces
parkingbalcon/terrasseascenseur

Nos partenaires locaux
À saisir à Challes-les-Eaux dans une résidence idéalement située au Sud de Challes-les-Eaux, à 10 minutes à pieds du centre-ville et à proximité des commerces, écoles et accès autoroute.

Situé en rez-de-jardin, ce T5 de 97 m² avec terrasse et jardin se compose :
d'une grande pièce de vie de 30 m² donnant sur une terrasse de 20 m² exposée Nord et sur un jardin privatif de 50 m²,
d'un espace cuisine à aménager selon vos envies,
de quatre chambres dont une très spacieuse de 14 m² et les autres font 10 m², 10 m² et 9 m²;
d'une salle de bain de 5 m²,
d'une salle d'eau avec WC de 4 m²,
d'un WC indépendant,
d'une entrée munie de deux placards intégrés dont un pouvant faire office de cellier,
de deux stationnements en sous-sol sécurisé (un box fermé et une place de parking)
+ Confort moderne : volets roulants motorisés et connectés, système individuel de régulation du chauffage (chauffage alimenté grâce à une pompe à chaleur)
+ Bâtiment répondant à la norme RE2020 ainsi que bénéficiant du label NF Habitat

Il s'agit d'une petite résidence intimiste, sécurisée (entièrement clôturée) et munie de nombreux espaces verts avec vue sur les montagnes.

Ce bien représente une belle opportunité, que ce soit pour y vivre ou pour investir.

Les biens partent très vite – Ne laissez pas passer votre chance !
Contactez Emilie LAMOTTE au [Coordonnées masquées] ou par mail [Coordonnées masquées]

Honoraires à la charge du vendeur. Dans une copropriété de 29 lots. Aucune procédure n'est en cours. DPE en cours. Les informations sur les risques auxquels ce bien est exposé sont disponibles sur le site Géorisques : georisques.gouv.fr.

Votre conseiller GL IMMO PLUS : Emilie LAMOTTE
Agent commercial (Entreprise individuelle)
Voir plus

Référence: VA1939-GLIMM
Bien en copropriété. Nombre de lots : 29.
Honoraires à la charge du vendeur.
Barème des honoraires
DPE
A
B
C
D
E
F
G
GES
A
B
C
D
E
F
G

Prêt immobilier

Vous souhaitez connaître votre capacité d’emprunt et trouver le meilleur crédit immobilier ?
Réaliser une simulation gratuite

Image non contractuelle - Appartement à CHALLES-LES-EAUX
Image non contractuelle
Image non contractuelle - Appartement à CHALLES-LES-EAUX
Image non contractuelle
Image non contractuelle - Appartement à CHALLES-LES-EAUX
Image non contractuelle
Image non contractuelle - Appartement à CHALLES-LES-EAUX
Image non contractuelle
Image non contractuelle - Appartement à CHALLES-LES-EAUX
Image non contractuelle
Appartement à CHALLES-LES-EAUX
Ce site est protégé par reCAPTCHA la Politique de confidentialité et les Conditions d’utilisation de Google s’appliquent.
Obtenir un prêt immobilier au meilleur taux ?

En poursuivant votre navigation sans modifier vos paramètres, vous acceptez l'utilisation de cookies susceptibles de réaliser des statistiques de visite. Cliquez ici pour plus d'informations