Bénéficiez des services de nos partenaires locaux soigneusement sélectionnés
pour vous accompagner dans votre parcours d'achat immobilier

Appartement 60m² à challes-les-eaux

— Challes-Les-Eaux 73190 —
304 200 €
60 m²
3 pièces
parkingbalcon/terrasseascenseur

Nos partenaires locaux
À saisir à Challes-les-Eaux dans une résidence récente, intimiste et moderne idéalement située au Sud de Challes-les-Eaux, à 10 minutes à pieds du centre-ville et à proximité des commerces, écoles et accès autoroute :

5 appartements T3 disponibles à partir de 304 200 € TTC

Ils se composent comme suit :
d'une grande pièce de vie de 30 m² donnant sur un balcon de 10 m² minimum,
d'un espace cuisine à aménager selon vos envies,
de deux chambres de 12 m² et 10 m²,
d'une salle de bain de 5 m²,
d'un WC indépendant,
d'une entrée munie d'un grand placard intégré pouvant faire office de cellier,
d'un stationnement en sous-sol sécurisé.
Plus de précisions sur les lots disponibles :
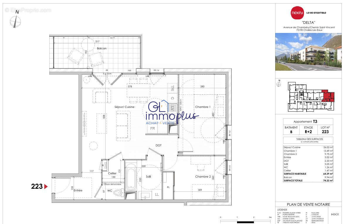
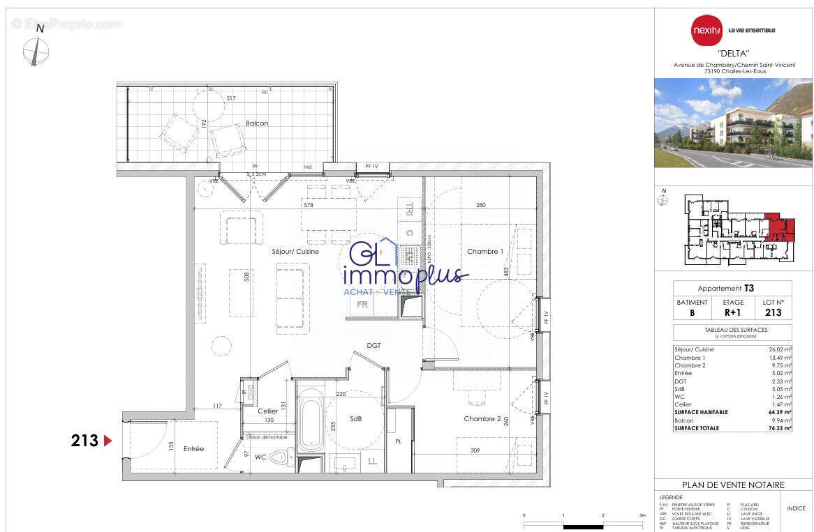
- Lot n° 123 : 66 m² (au 2ème étage, exposé Nord-Ouest) à 304 200 €
- Lot n° 213 : 64 m² (au 1er étage, exposé Nord) à 316 480 €
- Lot n° 133 : 66 m² (au 3ème étage, exposé Nord-Ouest) à 320 520 €
- Lot n° 223 : 64 m² (au 2ème étage, exposé Nord) à 325 120 €
- Lot n° 233 : 64 m² (au 3ème étage, exposé Nord) à 329 920 €

+ Confort moderne : volets roulants motorisés et connectés, système individuel de régulation du chauffage (chauffage alimenté grâce à une pompe à chaleur), visiophone
+ Bâtiment répondant à la norme RE2020 ainsi que bénéficiant du label NF Habitat

Il s'agit d'une petite résidence intimiste, sécurisée (entièrement clôturée) et munie de nombreux espaces verts avec vue sur les montagnes.

Ce bien représente une belle opportunité, que ce soit pour y vivre ou pour investir.

Les biens partent très vite – Ne laissez pas passer votre chance !
Contactez Emilie LAMOTTE au [Coordonnées masquées] ou par mail [Coordonnées masquées]

Honoraires à la charge du vendeur. Dans une copropriété de 29 lots. Aucune procédure n'est en cours. DPE en cours. Les informations sur les risques auxquels ce bien est exposé sont disponibles sur le site Géorisques : georisques.gouv.fr.

Votre conseiller GL IMMO PLUS : Emilie LAMOTTE
Agent commercial (Entreprise individuelle)
Voir plus

Référence: VA1943-GLIMM
Bien en copropriété. Nombre de lots : 29.
Honoraires à la charge du vendeur.
Barème des honoraires
DPE
A
B
C
D
E
F
G
GES
A
B
C
D
E
F
G

Prêt immobilier

Vous souhaitez connaître votre capacité d’emprunt et trouver le meilleur crédit immobilier ?
Réaliser une simulation gratuite

Photo non contractuelle - Appartement à CHALLES-LES-EAUX
Photo non contractuelle
Photo non contractuelle - Appartement à CHALLES-LES-EAUX
Photo non contractuelle
Photo non contractuelle - Appartement à CHALLES-LES-EAUX
Photo non contractuelle
Appartement à CHALLES-LES-EAUX
Appartement à CHALLES-LES-EAUX
Appartement à CHALLES-LES-EAUX
Appartement à CHALLES-LES-EAUX
Ce site est protégé par reCAPTCHA la Politique de confidentialité et les Conditions d’utilisation de Google s’appliquent.
Obtenir un prêt immobilier au meilleur taux ?

En poursuivant votre navigation sans modifier vos paramètres, vous acceptez l'utilisation de cookies susceptibles de réaliser des statistiques de visite. Cliquez ici pour plus d'informations