Bénéficiez des services de nos partenaires locaux soigneusement sélectionnés
pour vous accompagner dans votre parcours d'achat immobilier

!! special investisseur !!

— Saint-Denis 93200 —
246 200 €
61 m²
3 pièces

Nos partenaires locaux
LA FRANCAISE REAL ESTATE MANAGERS VEND à SAINT-DENIS (93200). Un appartement T3 de 61,70 m² au 2e étage avec parking en sous-sol. Réf. LOT 66. Lot n°66.

Idéal pour un investissement sécurisé !

A deux pas du Stade de France, proche des commerces et à 450 mètres du métro 13 Saint-Denis - Porte de Paris. Cet appartement occupé se situe au 2e étage avec ascenseur d'un immeuble de 2009 offrant une vue sur le canal de Saint-Denis.

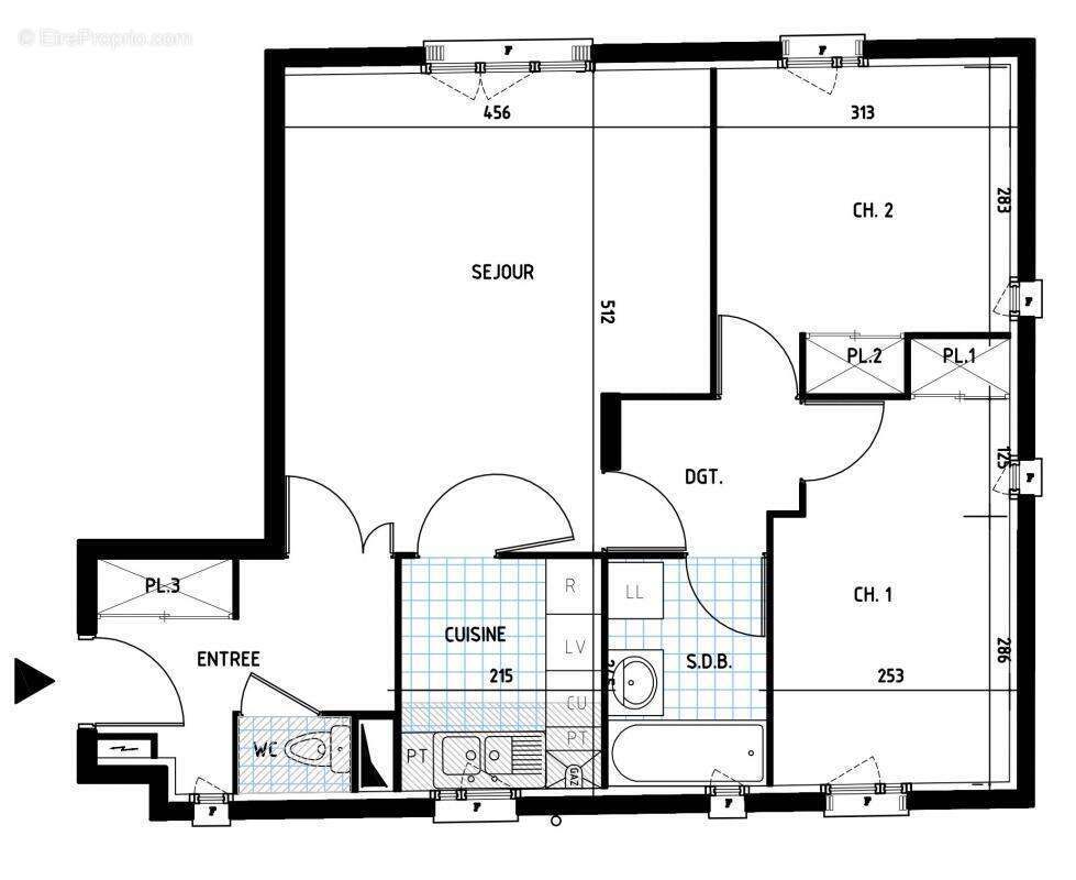
Disposition : entrée avec placard, WC, séjour, cuisine, dégagement, deux chambres avec placard et d'une salle d'eau, une deuxième chambre comprenant une salle de bains.

Atouts supplémentaires :
- Rentabilité immédiate
- Locataires stables et réguliers
- Quartier vivant et bien desservi et copropriété bien tenue

DPE : C (146 KWh/m².an) – GES : C (28 kgCO2/m².an). Montant des dépenses d'énergie pour un usage habituel estimé entre 953 € et 1 289 €/an (prix moyens des énergies indexés sur les années 2021, 2022 et 2023, abonnements compris). Copropriété de 70 lots (dont 34 logements) sans procédure en cours. Charges annuelles de copropriété estimées à 1 850 €/an.

Prix de vente : 246 200 €. Honoraires à la charge vendeur. Aucun frais d'agence.

Les informations sur les risques auxquels ce bien est exposé sont disponibles sur le site Géorisques (www.georisques.gouv.fr).
Voir plus

Référence: 93-25-002486
DPE
A
B
C
D
E
F
G
GES
A
B
C
D
E
F
G

Prêt immobilier

Vous souhaitez connaître votre capacité d’emprunt et trouver le meilleur crédit immobilier ?
Réaliser une simulation gratuite

Appartement à SAINT-DENIS
Appartement à SAINT-DENIS
Appartement à SAINT-DENIS
Ce site est protégé par reCAPTCHA la Politique de confidentialité et les Conditions d’utilisation de Google s’appliquent.
Obtenir un prêt immobilier au meilleur taux ?

En poursuivant votre navigation sans modifier vos paramètres, vous acceptez l'utilisation de cookies susceptibles de réaliser des statistiques de visite. Cliquez ici pour plus d'informations