Bénéficiez des services de nos partenaires locaux soigneusement sélectionnés
pour vous accompagner dans votre parcours d'achat immobilier

!! special investisseur !!

— Asnieres-Sur-Seine 92600 —
313 500 €
67 m²
3 pièces

Nos partenaires locaux
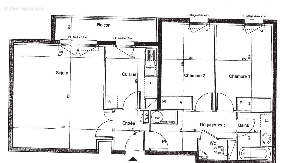
LA FRANÇAISE REAL ESTATE MANAGERS VEND à ASNIERES-SUR-SEINE (92600). Un appartement T3 de 67,30 m² au 1er étage avec parking en sous-sol. Réf. LOT 12. Lot n°12.

Dans le quartier bords de Seine, offrant une atmosphère conviviale et familiale, découvrez ce 3 pièces à proximité de tous les commerces, du REC C et à quelques pas de la future ligne 15, le bus 277 et 386.

Cet appartement avec un balcon de 5,10 m² est situé dans une résidence récente et très bien entretenue de 2009 au 1er étage côté jardin.

Atouts supplémentaires :
- Rentabilité immédiate, vendu avec locataire en place
- Quartier idéal à proximité des commodités et transports
- Pas de frais d'agence

DPE : C (155 KWh/m².an) - GES : A (4 kgCO2/m².an). Montant des dépenses d'énergie pour un usage habituel estimé à 815 €/an (prix moyens des énergies indexés au 01/01/2023, abonnements compris). Copropriété de 102 lots (dont 51 logements) sans procédure en cours. Charges de copropriété estimées à 1 252 €/an.

Prix de vente : 313 500 €. Honoraires à la charge du vendeur. Aucun frais d'agence.

Les informations sur les risques auxquels ce bien est exposé sont disponibles sur le site Géorisques (www.georisques.gouv.fr).
Voir plus

Référence: 92-25-002487
DPE
A
B
C
D
E
F
G
GES
A
B
C
D
E
F
G

Prêt immobilier

Vous souhaitez connaître votre capacité d’emprunt et trouver le meilleur crédit immobilier ?
Réaliser une simulation gratuite

Appartement à ASNIERES-SUR-SEINE
Appartement à ASNIERES-SUR-SEINE
Appartement à ASNIERES-SUR-SEINE
Appartement à ASNIERES-SUR-SEINE
Appartement à ASNIERES-SUR-SEINE
Appartement à ASNIERES-SUR-SEINE
Appartement à ASNIERES-SUR-SEINE
Ce site est protégé par reCAPTCHA la Politique de confidentialité et les Conditions d’utilisation de Google s’appliquent.
Obtenir un prêt immobilier au meilleur taux ?

En poursuivant votre navigation sans modifier vos paramètres, vous acceptez l'utilisation de cookies susceptibles de réaliser des statistiques de visite. Cliquez ici pour plus d'informations