Bénéficiez des services de nos partenaires locaux soigneusement sélectionnés
pour vous accompagner dans votre parcours d'achat immobilier

Proche place de verdun

— Le Plessis-Trevise 94420 —
257 000 €
64 m²
3 pièces
parkingbalcon/terrasse

Nos partenaires locaux
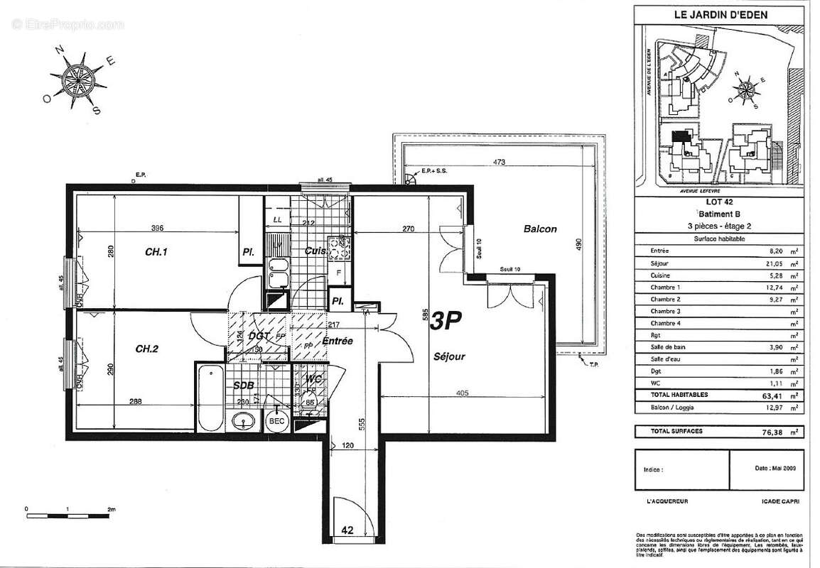
Dans copropriété verdoyante de standing, de 2010, sécurisée, en étage avec ascenseur, charmant T3 de 63.4 m2 exposé sud est avec vue sur jardin et comprenant une entrée, un séjour / salle à manger de 21 m2 avec portes fenêtres donnant sur un vaste balcon de 13m2 idéal pour manger avec vos amis ou profiter d'un bon bain de soleil, cuisine indépendante équipée et aménagée, deux chambres avec placards, une salle de bains et wc séparés.
Appartement en excellent état incluant en sous-sol une place de parking double.
Commerces à 2 pas de l'appart (boulangerie, tabac, supermarché Auchan, etc.) Bus avec accès direct au RER E Villiers.
Voir plus

Bien en copropriété. Nombre de lots : 63. Charges de copropriété : 2060 €.
Honoraires à la charge du vendeur.
Barème des honoraires
DPE
A
B
C
D
E
F
G
GES
A
B
C
D
E
F
G

Prêt immobilier

Vous souhaitez connaître votre capacité d’emprunt et trouver le meilleur crédit immobilier ?
Réaliser une simulation gratuite

Appartement à LE PLESSIS-TREVISE
Appartement à LE PLESSIS-TREVISE
Appartement à LE PLESSIS-TREVISE
Appartement à LE PLESSIS-TREVISE
Appartement à LE PLESSIS-TREVISE
Appartement à LE PLESSIS-TREVISE
Appartement à LE PLESSIS-TREVISE
Appartement à LE PLESSIS-TREVISE
Appartement à LE PLESSIS-TREVISE
Appartement à LE PLESSIS-TREVISE
Appartement à LE PLESSIS-TREVISE
Appartement à LE PLESSIS-TREVISE
Appartement à LE PLESSIS-TREVISE
Appartement à LE PLESSIS-TREVISE
Ce site est protégé par reCAPTCHA la Politique de confidentialité et les Conditions d’utilisation de Google s’appliquent.
Obtenir un prêt immobilier au meilleur taux ?

En poursuivant votre navigation sans modifier vos paramètres, vous acceptez l'utilisation de cookies susceptibles de réaliser des statistiques de visite. Cliquez ici pour plus d'informations