Hangar de 548m2 sur 3 niveaux sur 9.42 ares / garage possible

— Moutiers 54660 —
110 000 €
548 m²

Atome Immobilier vous propose sur la commune de Moutiers ce hangar de 548m2 sur 3 niveaux bénéficiant d’un terrain privatif de 9.42 ares, idéal pour le stockage.
 
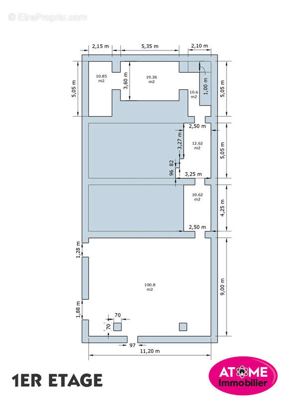
Les différents volumes se présentent comme suit :
*RDC : Un garage de 96m2 + 7 pièces annexes pour un total de 194m2
*R+1 : Une pièce de 100m2 communiquant via une trappe au garage du RDC ainsi que 7 pièces annexes pour un total de 164m2
R+2 : Une pièce de 190m2 d’un seul tenant pouvant elle aussi communiquer via les 196m2 que proposent les pièces principales inférieures.
 
Les infos complémentaires :
-Porte de sécurité + volet métallique
-Electricité refait sur la partie inférieure
-Grandes capacité de stockage intérieur et extérieur
-Possibilité de clôturer l’ensemble des 9.42 ares
 
Pour plus d’informations, n’hésitez pas à contacter Atome Immobilier.
Voir plus

Prêt immobilier

Vous souhaitez connaître votre capacité d’emprunt et trouver le meilleur crédit immobilier ?
Réaliser une simulation gratuite

Autre à MOUTIERS
Autre à MOUTIERS
Autre à MOUTIERS
Autre à MOUTIERS
Autre à MOUTIERS
Autre à MOUTIERS
Ce site est protégé par reCAPTCHA la Politique de confidentialité et les Conditions d’utilisation de Google s’appliquent.
Obtenir un prêt immobilier au meilleur taux ?

En poursuivant votre navigation sans modifier vos paramètres, vous acceptez l'utilisation de cookies susceptibles de réaliser des statistiques de visite. Cliquez ici pour plus d'informations