Appartement à vendre 3 pièces solenzara (20)

— Sari-Solenzara 20145 —
262 500 €
76 m²
3 pièces
parkingbalcon/terrasse

Appartement 3 pièces avec vue mer à Sari-Solenzara

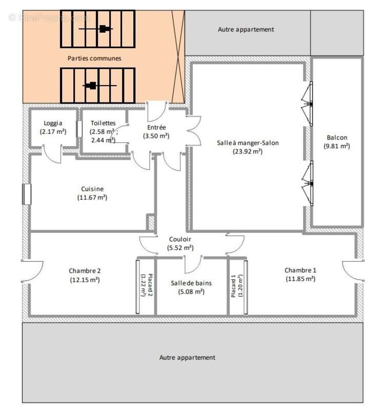
Situé dans la charmante commune de Sari-Solenzara, en Corse-du-Sud, cet appartement de 76 m² offre un cadre de vie agréable entre mer et montagne.
Composé de 3 pièces principales, dont 2 chambres, il dispose également d'une cave, d'une place de parking privative, et d'un balcon avec une belle vue sur la mer et la ville.

L'appartement bénéficie d'une belle luminosité naturelle grâce à une exposition est.
Il a déjà fait l'objet de plusieurs travaux récents : électricité, menuiseries, radiateurs et installation d'un cumulus thermodynamique, garantissant confort et performance énergétique. Prévoir une remise au goût du jour pour les sanitaires.

Le bien se situe à proximité immédiate des commodités : commerces, restaurants, accessibles à pied, sans être dans la rue très animée le soir.

La rivière, les plages et les sentiers de randonnée sont également tout proches, pour profiter pleinement de la nature environnante.

Un bien rare dans un environnement agréable, idéal en résidence principale, secondaire ou en investissement locatif. Nombre de lots de la copropriété : 87, Montant moyen annuel de la quote-part de charges (budget prévisionnel) : 1000€ soit 83€ par mois. Les honoraires sont à la charge du vendeur.
Les informations sur les risques auxquels ce bien est exposé sont disponibles sur le site Géorisques : www. georisques. gouv. fr.

Réseau Immobilier CAPIFRANCE - Votre agent commercial (RSAC N°893 274 019 - Greffe de AJACCIO) Christelle BILLON Entrepreneur Individuel [Coordonnées masquées] - Réf.911207
Voir plus

Référence: 340936523454
Bien en copropriété. Nombre de lots : 87. Charges de copropriété : 83 €.
Honoraires à la charge du vendeur.
DPE
A
B
C
D
E
F
G
GES
A
B
C
D
E
F
G

Prêt immobilier

Vous souhaitez connaître votre capacité d’emprunt et trouver le meilleur crédit immobilier ?
Réaliser une simulation gratuite

Appartement à SARI-SOLENZARA
Appartement à SARI-SOLENZARA
Appartement à SARI-SOLENZARA
Ce site est protégé par reCAPTCHA la Politique de confidentialité et les Conditions d’utilisation de Google s’appliquent.
Obtenir un prêt immobilier au meilleur taux ?

En poursuivant votre navigation sans modifier vos paramètres, vous acceptez l'utilisation de cookies susceptibles de réaliser des statistiques de visite. Cliquez ici pour plus d'informations