Bénéficiez des services de nos partenaires locaux soigneusement sélectionnés
pour vous accompagner dans votre parcours d'achat immobilier

Appartement 60m² à argeles-sur-mer

— Argeles-Sur-Mer 66700 —
289 000 €
60 m²
3 pièces
parkingbalcon/terrasseascenseuraccès handicapé

Nos partenaires locaux
À VENDRE : Appartement T3 Neuf à Argelès-sur-Mer - Un cadre de vie exceptionnel entre plage et village
Prix : 289 000 €
Surface habitable : 60,08 m² - Jardin privatif de 26,51 m²

Situé dans un environnement résidentiel calme et recherché à Argelès-sur-Mer, cet appartement T3 neuf est une opportunité rare qui combine qualité de vie, confort moderne et emplacement privilégié. Niché entre la mer et le cœur du village, cet appartement offre un cadre de vie serein tout en étant à proximité de toutes les commodités nécessaires à une vie quotidienne facilitée.

Un emplacement idéal pour vivre autrement
À seulement 4 minutes à vélo de la plage, vous pourrez profiter du sable fin qui s’étend jusqu’au port de plaisance, une destination idéale pour les amateurs de mer. La vie ici vous permet de vous déplacer facilement à vélo, tout en étant à proximité immédiate des commerces, des écoles, des équipements sportifs et culturels, ainsi que des transports municipaux.

Dans un cadre verdoyant et dynamique, la résidence se distingue par sa proximité avec les lieux essentiels, tout en offrant une atmosphère paisible, idéale pour une qualité de vie sans égale.

L’intérieur : une invitation à la détente et à la personnalisation
Cet appartement, conçu pour répondre aux attentes de ses futurs occupants, est un modèle d'agencement fonctionnel et contemporain.

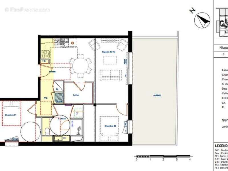
Espace de vie lumineux de 24,02 m², accueillant et convivial, avec une baie vitrée coulissante qui vous permettra de profiter pleinement de votre terrasse ou jardin privatif de 26,51 m².

Chambre 1 de 11,25 m² et Chambre 2 de 9,27 m², parfaitement agencées pour offrir à chaque membre de la famille ou invité un espace intime et confortable.

Salle d'eau moderne de 5,56 m², avec un receveur de douche extra-plat de 90 x 120 cm et des WC suspendus, combinant esthétisme et praticité.

Module 1 de 3,29 m², offrant la possibilité de créer un bureau ou un espace de rangement supplémentaire selon vos besoins.

Des rangements intégrés et des placards aménagés pour une organisation optimale des espaces, et une entrée de 1,20 m² pensée pour optimiser les flux.

La configuration de l'appartement est modulable, et vous aurez la possibilité de personnaliser votre intérieur grâce à des finitions au choix, parmi des matériaux de qualité et des fournisseurs renommés.

Des prestations de qualité pour un confort durable
Conçu pour allier modernité et performance énergétique, cet appartement est équipé d’une pompe à chaleur pour assurer un chauffage performant, un rafraîchissement de l’air optimal, ainsi qu'une production d’eau chaude. Une solution énergétique respectueuse de l’environnement et économique.

Les revêtements de sol en lames LVT de nouvelle génération apportent à la fois élégance et durabilité. La peinture lisse de l’ensemble des murs donne une touche contemporaine, tandis que les grandes baies vitrées apportent une luminosité naturelle, renforçant l’atmosphère agréable et aérée de l’appartement.

Un cadre de vie pratique et moderne
Vivre à Argelès-sur-Mer, c'est bénéficier d'un environnement à la fois calme, pratique et dynamique. Profitez des nombreux avantages d'une ville en bord de mer, avec toutes les infrastructures nécessaires à une vie agréable et sans contraintes. L’accès rapide à la plage, ainsi qu’à une multitude de services et équipements, garantit une qualité de vie optimale.

Ne manquez pas cette opportunité unique d’acquérir un bien immobilier neuf dans un cadre de vie privilégié à Argelès-sur-Mer.

Contactez dès aujourd’hui AGENCE IMMOBILIERE GEGB au [Coordonnées masquées] pour organiser une visite ou obtenir plus d'informations sur cette propriété. Nous nous ferons un plaisir de vous accompagner dans votre projet immobilier.

www.immo66-gegb.fr
'Les informations sur les risques auxquels ce bien est exposé sont disponibles sur le site Géorisques : www.georisques.gouv.fr'
Voir plus

Référence: 63
Bien en copropriété. Nombre de lots : 17.
Honoraires à la charge du vendeur.
DPE
A
B
C
D
E
F
G
GES
A
B
C
D
E
F
G

Prêt immobilier

Vous souhaitez connaître votre capacité d’emprunt et trouver le meilleur crédit immobilier ?
Réaliser une simulation gratuite

Appartement à ARGELES-SUR-MER
Appartement à ARGELES-SUR-MER
Appartement à ARGELES-SUR-MER
Appartement à ARGELES-SUR-MER
Ce site est protégé par reCAPTCHA la Politique de confidentialité et les Conditions d’utilisation de Google s’appliquent.
Obtenir un prêt immobilier au meilleur taux ?

En poursuivant votre navigation sans modifier vos paramètres, vous acceptez l'utilisation de cookies susceptibles de réaliser des statistiques de visite. Cliquez ici pour plus d'informations