Bénéficiez des services de nos partenaires locaux soigneusement sélectionnés
pour vous accompagner dans votre parcours d'achat immobilier

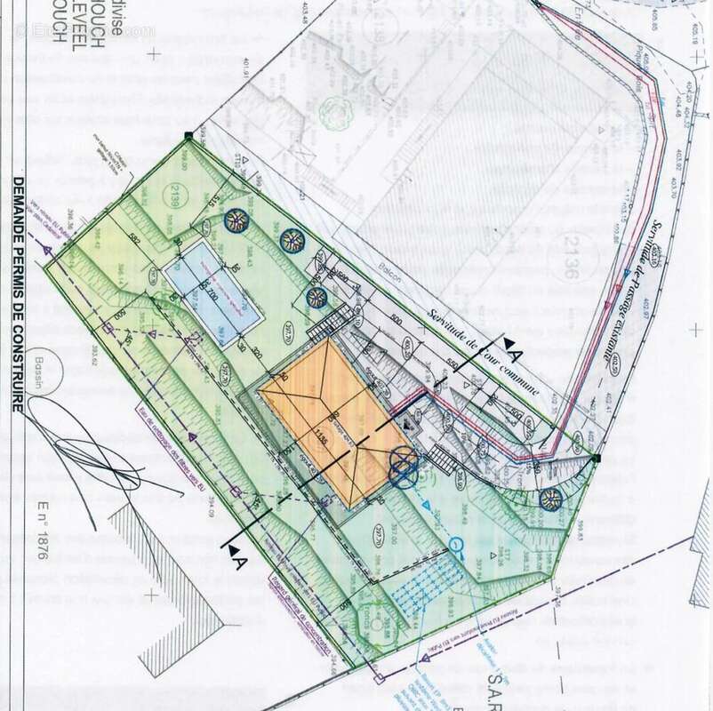
Terrain avec permis accepté

— Tourrette-Levens 06690 —
219 000 €
772 m²

Nos partenaires locaux
TERRAIN AVEC PERMIS accepté pour la construction d'une maison individuelle de type traditionnel avec une toiture à quatre pentes comprenant deux niveaux pour une surface de plancher de 119.90 m².

L'accès à la maison se fera par le R+1.

Le projet prévoit également un aménagement comprenant trois places de stationnement, ainsi qu'une piscine de 3.5 x 7 m.

D'un point de vue paysager, le projet est situé au nord-ouest du village historique, avec une vue sur ce dernier, sur un versant sud-est.

Situé dans un environnement calme et recherché, ce terrain offre une belle opportunité de concevoir un cadre de vie agréable.
Voir plus

Référence: 86121676
Terrain à TOURRETTE-LEVENS
Terrain à TOURRETTE-LEVENS
Terrain à TOURRETTE-LEVENS
Terrain à TOURRETTE-LEVENS
Géorisques

Les informations sur les risques auxquels ce bien est exposé sont disponibles sur le site Géorisques : www.georisques.gouv.fr

Ce site est protégé par hCaptcha Politique de confidentialité et Conditions d’utilisation s’appliquent.

En poursuivant votre navigation sans modifier vos paramètres, vous acceptez l'utilisation de cookies susceptibles de réaliser des statistiques de visite. Cliquez ici pour plus d'informations