Bénéficiez des services de nos partenaires locaux soigneusement sélectionnés
pour vous accompagner dans votre parcours d'achat immobilier

Maison 362m² à port-saint-louis-du-rhone

— Port-Saint-Louis-Du-Rhone 13230 —
300 000 €
362 m² / 290 m²
8 pièces
parkingjardin

Nos partenaires locaux
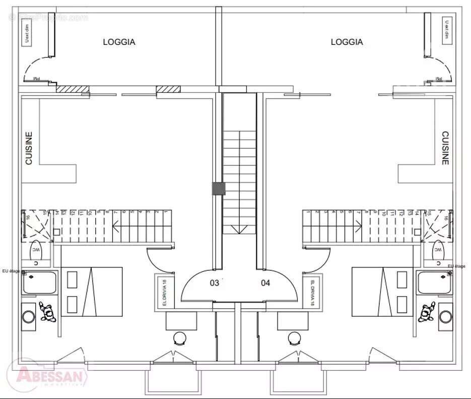
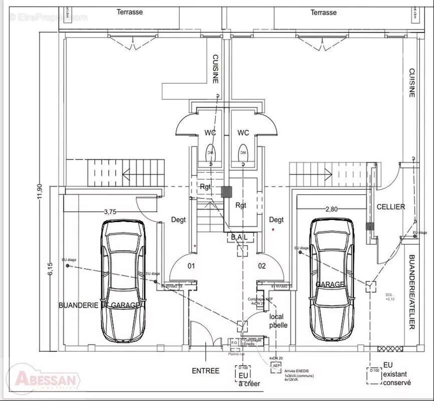
INVESTISSEMENT D'UN IMMEUBLE DE 362m2: 2 LOFTS AVEC GARAGES ET JARDINS PRIVATIFS, ET 2 DUPLEX AVEC TERRASSES.

Situé entre mer, et fleuve, Port-Saint-Louis-du-Rhône se positionne comme une destination d'investissement incontournable en Camargue. Implanté au coeur du quartier historique du faubourg Hardon, à quelques mètres du port de plaisance, ce projet allie charme de l'ancien et modernité. Transformez une bâtisse unique en 4 logements haut de gamme dans une ville en plein essor économique et touristique, offrant un marché locatif dynamique.

UN PROJET D'EXCEPTION AU COEUR DU FAUBOURG HARDON
C'est au coeur du quartier historique, que ce projet de rénovation ambitieux, avec un permis déja accepté, transforme une ancienne bâtisse en 2 lofts avec jardins privatifs, et 2 duplex avec terrasses:
- 2 Lofts spacieux avec jardins privatifs de 60m2 chacun, offrant confort et tranquilité.
- 2 Duplex modernes avec terrasses privatives, alliant charme ancien, et prestations contemporaines.

SURFACES
- Habitation - 362m2 (incluant les combles)
- Jardins privatifs - 120m2
- Terrasses - 26m2
- Garages 60m2

Un bien rare dans un secteur prisé, où modernité et histoire s'harmonisent parfaitement pour séduire locataires et acquéreurs. Avec un fort potentiel de rendement locatif et une valorisation patrimoniale assurée, ce projet représente une opportunité idéale pour les investisseurs en quête de rentabilité et de sécurité. Honoraires à la charge du vendeur - Reda JEGHI - Agent commercial - EI - RSAC TARASCON 808084610 - RCS 4[Coordonnées masquées]127 - Caisse de garantie QBE 500000 EUR
Voir plus

Référence: 86091257
Barème des honoraires

Prêt immobilier

Vous souhaitez connaître votre capacité d’emprunt et trouver le meilleur crédit immobilier ?
Réaliser une simulation gratuite

Maison à PORT-SAINT-LOUIS-DU-RHONE
Maison à PORT-SAINT-LOUIS-DU-RHONE
Maison à PORT-SAINT-LOUIS-DU-RHONE
Maison à PORT-SAINT-LOUIS-DU-RHONE
Maison à PORT-SAINT-LOUIS-DU-RHONE
Ce site est protégé par reCAPTCHA la Politique de confidentialité et les Conditions d’utilisation de Google s’appliquent.
Obtenir un prêt immobilier au meilleur taux ?

En poursuivant votre navigation sans modifier vos paramètres, vous acceptez l'utilisation de cookies susceptibles de réaliser des statistiques de visite. Cliquez ici pour plus d'informations