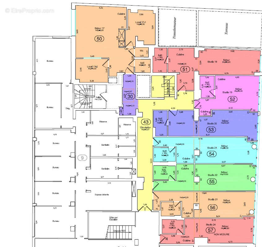
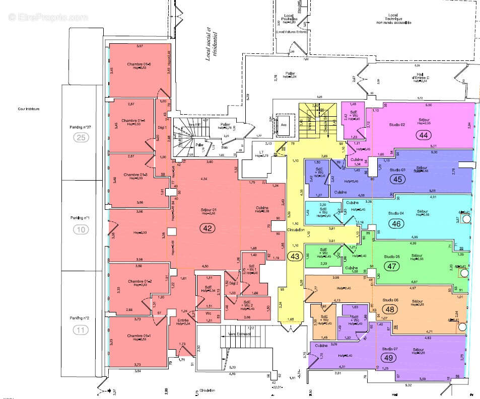
Ensemble immobilier de 309.65 m2

— Clichy 92110 —
2 463 900 €
310 m²

A VENDRE Idéalement situé proches de tous commerces et des transports, à 8 min à pied du Métro 13 station "Mairie Clichy" - Ensemble immobilier au sein d'une copropriété comprenant 8 logements du T1 au T4 entièrement meublés, situé à l' entresol du bâtiment. La surface habitable est de 309.65m2 loué sous bail commercial. Le locataire a informé oralement son intention de cesser son activité avant le 31/12/2025, mais aucun congé écrit n'a été transmis à ce jour. Des précisions sont attendues prochainement sur la suite donnée à cette démarche. Loyer de 112470 euros annuel Prix: 2463900 euros Frais d'agence inclus , honoraires charge vendeur. Possibilité d'acheter les appartements à la découpe. 16 autres appartements disponible également dans la même résidence. Diagnostics en cours. N'hésitez pas à nous contacter pour plus de renseignements ou une visite . AGENCE Gedira au TEL [Coordonnées masquées] ou au [Coordonnées masquées] Réf CLICHY32D Copropriété de 187 lots - dont 88 lots habitation.(Pas de procédure en cours).
Voir plus

Bien en copropriété. Nombre de lots : 187.
Honoraires à la charge du vendeur.
Barème des honoraires
DPE
A
B
C
D
E
F
G
GES
A
B
C
D
E
F
G

Prêt immobilier

Vous souhaitez connaître votre capacité d’emprunt et trouver le meilleur crédit immobilier ?
Réaliser une simulation gratuite

Appartement à CLICHY
Appartement à CLICHY
Appartement à CLICHY
Appartement à CLICHY
Appartement à CLICHY
Appartement à CLICHY
Appartement à CLICHY
Appartement à CLICHY
Appartement à CLICHY
Appartement à CLICHY
Appartement à CLICHY
Appartement à CLICHY
Appartement à CLICHY
Appartement à CLICHY
Appartement à CLICHY
Ce site est protégé par reCAPTCHA la Politique de confidentialité et les Conditions d’utilisation de Google s’appliquent.
Obtenir un prêt immobilier au meilleur taux ?

En poursuivant votre navigation sans modifier vos paramètres, vous acceptez l'utilisation de cookies susceptibles de réaliser des statistiques de visite. Cliquez ici pour plus d'informations