Maison neuve rocbaron 4 pièces 86.44 m2 sur 431m² de terrain

— Rocbaron 83136 —
350 000 €
86 m² / 431 m²
4 pièces
jardin

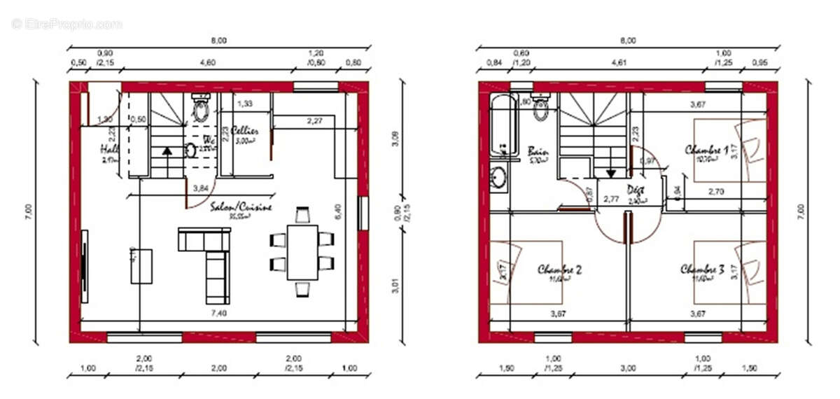
Rocbaron, à vendre villa neuve de 86m² sur un terrain de 431m² Elevée sur deux niveaux, cette villa offre en son rez de chaussée un hall d'entrée, un espace de vie climatisé avec cuisine ouverte, un cellier ainsi qu'un W.C. indépendant. L'étage consacré à l'espace nuit, propose trois belles chambres, une salle de bains avec W.C. Frais de notaire réduit, garantie Dommage Ouvrage. Deux places de parking privatives sont à disposition. La livraison est prévue en 2026. Laurent RENERIC (EI) Agent Commercial - Numéro RSAC : 940829732 - Draguignan.
Voir plus

Référence: 4091
Honoraires à la charge du vendeur.
Barème des honoraires

Prêt immobilier

Vous souhaitez connaître votre capacité d’emprunt et trouver le meilleur crédit immobilier ?
Réaliser une simulation gratuite

Maison à ROCBARON
Maison à ROCBARON
Maison à ROCBARON
Ce site est protégé par reCAPTCHA la Politique de confidentialité et les Conditions d’utilisation de Google s’appliquent.
Obtenir un prêt immobilier au meilleur taux ?

En poursuivant votre navigation sans modifier vos paramètres, vous acceptez l'utilisation de cookies susceptibles de réaliser des statistiques de visite. Cliquez ici pour plus d'informations